Id 159588

Звенигород, кп «Поречье» - 1632 кв. м. - Продажа / ОСЗ / ЗУ

адрес Звенигород, КП Поречье

Особняк/здание
Медицина
ЗУ

155 000 000 RUB | за все

(за 1 м2 — 94 975 RUB)

площадь 1 632.0 м2

QR код Qr код

Продается отдельно стоящее здание с земельным участком в коттеджном поселке «Поречье» (Звенигород).
Объект расположен в престижном Одинцовском районе с отличной транспортной доступностью: 3 минуты на автомобиле до ЦКАД, 12 минут до ж/д станции «Звенигород». Быстрый выезд на Можайское шоссе и удобная связь с Москвой. В шаговой доступности (3 мин. пешком) автобусная остановка «Дом отдыха Поречье».

Технические характеристики:
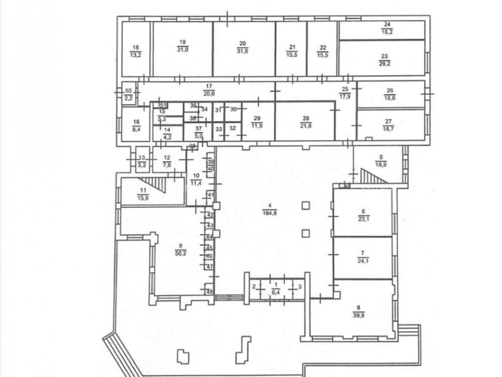
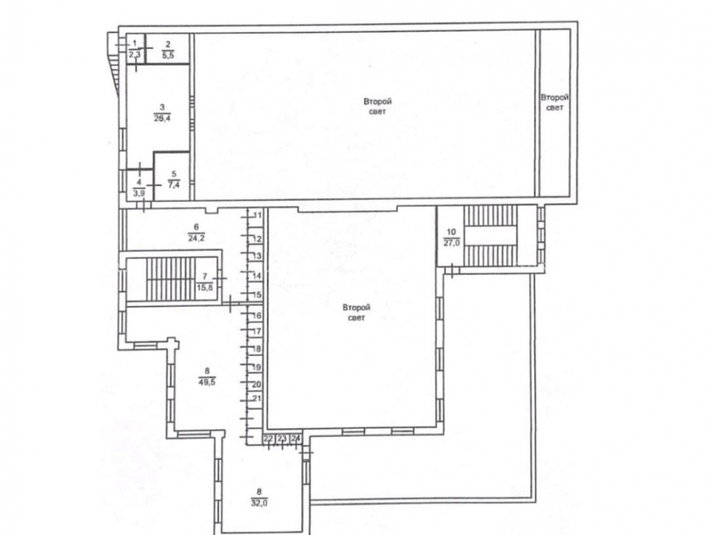
Общая площадь земельного участка (ЗУ): 3 175 кв. м.
Общая площадь здания: 1 632 кв. м.
Возможность выделения дополнительного земельного участка в аренду от 1 до 3 Га.
Полностью готовые коммуникации: Газовое отопление.
Выделенная электрическая мощность 80 кВт с возможностью увеличения.
Собственная скважина для водоснабжения.

Идеально подходит для ресторанного комплекса, медицинской клиники, SPA-отеля, частной резиденции или корпоративного офиса.

Коммерческие условия:
Стоимость объекта: 155 000 000 рублей.
Стоимость за 1 кв. м.: 94 975 рублей.

Технические характеристики

Тип здания: Особняк/здание,Медицина,ЗУ

Общая площадь: 1632  м2

Этаж: 1

Всего этажей: 1

Электрическая мощность: 80 кВт

Высота потолков: по запросу

Парковка: по запросу

Коммерческие условия

Цена за все: 155 000 000 RUB

ФОРМА ВЛАДЕНИЯ: по запросу

карта

Расположение

Адрес: Звенигород, КП Поречье

Близость метро: Тушинская

Транспортная доступность: транспортом

Окружение

Торговое окружение: развитая внутренняя инфраструктура

Адрес:

Звенигород, КП Поречье

Округ:

Близость метро:

Тушинская

Транспортная доступность:

транспортом

карта

Торговое окружение:

развитая внутренняя инфраструктура

Общая площадь:

1632  м2

Этаж:

1

Всего этажей:

1

Тип:

Особняк/здание,Медицина,ЗУ

Электрическая мощность:

80 кВт

Высота потолков:

по запросу

Парковка:

по запросу

ФОРМА ВЛАДЕНИЯ:

по запросу

Цена за все:

155 000 000 RUB

Планировка

Олег Байкин

Ваш брокер по работе с клиентами

Найдите лучшее место
для жизни, бизнеса, инвестиций

Оставьте свои контакты — с вами свяжется руководитель отдела для презентации нужного вам объекта

Похожие объекты