Id 159477

МО, Мытищи, 1й Стрелковый переулок, 5 - 110,4 кв.м. / Аренда ПСН

адрес ЖК Мытищи Парк

С отдельным входом
Торговая
Общепит
Жилой комплекс (мфк)
Новостройка

300 000 RUB | в месяц

(за 1 м2 — 2 727 RUB)

площадь 110.0 м2

QR код Qr код

В аренду предлагается помещение свободного назначения в ЖК «Мытищи Парк».
Адрес: МО, Мытищи, 1й Стрелковый переулок, 5.
«Мытищи Парк» расположен в МО. Расстояние до МКАД 10 мин на автомобиле. Ближайшая железнодорожная станция — Строитель, до нее можно дойти пешком за 25 минут или за 5 минут доехать на машине. В будущем Строитель станет частью МЦД-5. Помещение расположено в зоне с высоким пешеходным трафиком, центральная улица ЖК/центральный торговый коридор, главный пешеходный бульвар.

Технические характеристики:
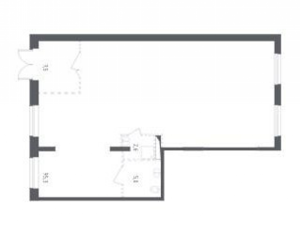
Помещение занимает Первый этаж стилобатная часть.
Входная группа со стороны пешеходного бульвара
Зальная планировка. Мокрая точка. Витринное остекление и место для размещения вывески.
Электрическая мощность 22 кВт. Высота потолков: первый этаж - 4 м.
Коммуникации центральные. Техническая вытяжка.

Коммерческие условия:
Общая площадь: 110,4 кв.м. ;
Стоимость в месяц - 300 000 рублей;
Стоимость в месяц за 1 кв.м. - 2 717 рублей.

Технические характеристики

Тип здания: С отдельным входом,Торговая,Общепит,Жилой комплекс (мфк),Новостройка

Общая площадь: 110  м2

Этаж: 1

Всего этажей: 1

Электрическая мощность: 22

Высота потолков: 4

Парковка: -

Коммерческие условия

Цена в месяц: 300 000 RUB

ФОРМА ВЛАДЕНИЯ: Собственность

карта

Расположение

Адрес: ЖК Мытищи Парк

Округ: Северо-Восточный административный округ

Близость метро: Медведково

Транспортная доступность: МКАД 10 мин, Ближайшая железнодорожная станция — Строитель, до нее можно дойти пешком за 25 минут

Окружение

Торговое окружение: развитое

Адрес:

ЖК Мытищи Парк

Округ:

Северо-Восточный административный округ

Близость метро:

Медведково

Транспортная доступность:

МКАД 10 мин, Ближайшая железнодорожная станция — Строитель, до нее можно дойти пешком за 25 минут

карта

Торговое окружение:

развитое

Общая площадь:

110  м2

Этаж:

1

Всего этажей:

1

Тип:

С отдельным входом,Торговая,Общепит,Жилой комплекс (мфк),Новостройка

Электрическая мощность:

22

Высота потолков:

4

Парковка:

-

ФОРМА ВЛАДЕНИЯ:

Собственность

Цена в месяц:

300 000 RUB

Планировка

Егор Дмитриев

Ваш брокер по работе с клиентами

Найдите лучшее место
для жизни, бизнеса, инвестиций

Оставьте свои контакты — с вами свяжется руководитель отдела для презентации нужного вам объекта

Похожие объекты