Id 159343

г .Москва, 1-я ул. Бухвостова, 2к3 - 118 М2 - Пренда ПСН / Общепит

адрес Москва, 1-я улица Бухвостова, 2к3

Многофункциональный
С отдельным входом
Торговая
Общепит

710 000 RUB | в месяц

(за 1 м2 — 6 017 RUB)

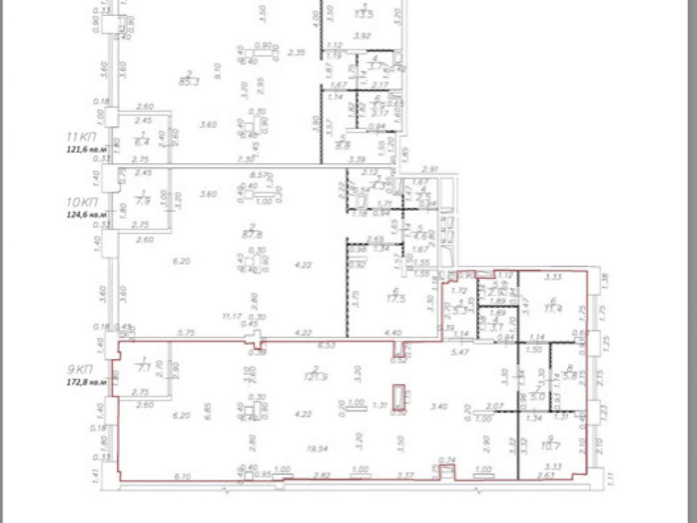
площадь 118.0 м2

QR код Qr код

Дом сдан. Аренда помещения свободного назначения на первой линии улицы - 1-я ул. Бухвостова, ЖК Преображенская. Прекрасная локация. ЖК премиум-класса. Этажность от 10-17 этажей, верхние этажи открывают прекрасные виды на панораму города.

Ближайшая станции: м. "Преображенская площадь" - 3 минуты пешком.
До Садового кольца можно доехать за 8 минут, до ТТК - за 7 минут. До центра - 25 минут езды на авто.

Торговое окружение:
Озон, Строймаркет, аптека, Serf Coffe, кафе " Здрасте".
Назначение помещения - Магазин, фитнесс, ресторан, кафе, детский центр.

Технические характеристики:
1-й этаж ,
-высота потолков - 4,18 м.,
-электрическая мощность - кВт.
- Витринное остекление,
-открытая планировка,
-возможность размещения вывески;
- нагрузка на пол - 400 кг/м2;
- Вентиляция - общедомовая;
- состояние помещения - Shell and core;
- Есть выводы под технологическую вытяжку для ресторана.
- возможно обьединение с соседними блоками.

Коммерческие условия:
Стоимость в месяц - 710 000 рублей;
Стоимость за м2 в месяц - 6 000 рублей.
Арендные каникулы - предоставляются.
Долгосрочный договор аренды.

Технические характеристики

Тип здания: Многофункциональный,С отдельным входом,Торговая,Общепит

Общая площадь: 118  м2

Этаж: 1

Всего этажей: 17

Электрическая мощность: 50 кВт (возможно увеличение)

Высота потолков: 4.18 метра

Парковка: Да / на улице рядом с помещением

Коммерческие условия

Цена в месяц: 710 000 RUB

ФОРМА ВЛАДЕНИЯ: ООО УСН

карта

Расположение

Адрес: Москва, 1-я улица Бухвостова, 2к3

Округ: Восточный административный округ

Близость метро: Преображенская площадь

Транспортная доступность: Ближайшая станции: м.

Окружение

Торговое окружение: Озон, Строймаркет, аптека, Serf Coffe, кафе

Адрес:

Москва, 1-я улица Бухвостова, 2к3

Округ:

Восточный административный округ

Близость метро:

Преображенская площадь

Транспортная доступность:

Ближайшая станции: м.

карта

Торговое окружение:

Озон, Строймаркет, аптека, Serf Coffe, кафе

Общая площадь:

118  м2

Этаж:

1

Всего этажей:

17

Тип:

Многофункциональный,С отдельным входом,Торговая,Общепит

Электрическая мощность:

50 кВт (возможно увеличение)

Высота потолков:

4.18 метра

Парковка:

Да / на улице рядом с помещением

ФОРМА ВЛАДЕНИЯ:

ООО УСН

Цена в месяц:

710 000 RUB

Планировка

Инна Васильева

Ваш брокер по работе с клиентами

Найдите лучшее место
для жизни, бизнеса, инвестиций

Оставьте свои контакты — с вами свяжется руководитель отдела для презентации нужного вам объекта

Похожие объекты