Id 158459

Большая Семёновская 49А - 180 кв.м. - Аренда Торгового помещения

адрес Большая Семёновская ул., 49А

Многофункциональный
С отдельным входом
Торговая

594 000 RUB | в месяц

(за 1 м2 — 3 300 RUB)

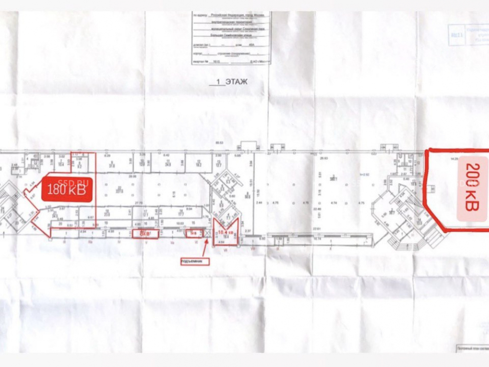
площадь 180.0 м2

QR код Qr код

Предлагается в аренду помещение на втором этаже в ТЦ "Семёновский пассаж".
Торговый комплекс состоит из 2-х этажей,общая площадь которого составляет 2732 м2, расположено в 5-ти минутах от метро Семеновская, в окружении жилых домов и бизнес-центров.
Торговое окружение: Пятерочка, Стильпарк, Яндекс Лавка, Мир обуви, Барбершоп, Фонбет

Технические характеристики:
Площадь 180 кв.м., 1 этаж, открытая планировка, с отделкой, витринное остекление, высота потолков 3 метра, эл.мощность по запросу, наличие парковки.
Центральные коммуникации, система кондиционирования, круглосуточное наблюдение.

Коммерческие условия:
Стоимость аренды - 594 000 рублей в месяц с НДС, дополнительно: коммунальные платежи
Стоимость за кв.м. - 3 300 рублей

Технические характеристики

Тип здания: Многофункциональный,С отдельным входом,Торговая

Общая площадь: 180  м2

Этаж: 1

Всего этажей: 2

Электрическая мощность: по запросу

Высота потолков: 3 м

Парковка: Наземная

Коммерческие условия

Цена в месяц: 594 000 RUB

ФОРМА ВЛАДЕНИЯ: Юр. лицо

карта

Расположение

Адрес: Большая Семёновская ул., 49А

Округ: Восточный административный округ

Близость метро: Семёновская

Транспортная доступность: -

Окружение

Торговое окружение: -

Адрес:

Большая Семёновская ул., 49А

Округ:

Восточный административный округ

Близость метро:

Семёновская

Транспортная доступность:

-

карта

Торговое окружение:

-

Общая площадь:

180  м2

Этаж:

1

Всего этажей:

2

Тип:

Многофункциональный,С отдельным входом,Торговая

Электрическая мощность:

по запросу

Высота потолков:

3 м

Парковка:

Наземная

ФОРМА ВЛАДЕНИЯ:

Юр. лицо

Цена в месяц:

594 000 RUB

Планировка

Евгений

Ваш брокер по работе с клиентами

Найдите лучшее место
для жизни, бизнеса, инвестиций

Оставьте свои контакты — с вами свяжется руководитель отдела для презентации нужного вам объекта

Похожие объекты