Id 158438

г. Люберцы, улица Красноармейская, дом 19 - 187,2 кв.м. / Продажа Готового Арендного Бизнеса

адрес Люберцы, Красноармейская улица, 19

Арендный бизнес
С отдельным входом

Окупаемость: 9.3 лет

Доходность:10.71%

40 000 000 RUB | за все

(за 1 м2 — 213 904 RUB)

площадь 187.0 м2

QR код Qr код

Продаётся Готовый Арендный Бизнес в ЖК «Пилот». Арендаторы: Ozon, wildberries, фотостудия, салон красоты, почтомат, кофемат, водомат.
Адрес: МО, г. Люберцы, Красноармейская ул., 19
Новый ЖК расположен в центре города Люберцы, который динамично развивается и демонстрирует устойчивый рост спроса на новостройки. Рядом строится такой же дом ЖК Пилот 2. Напротив начало стройки большого района от застройщика Брусника (Старт цен на коммерцию от 250к за м2, сдача 2027 год). Местоположение комплекса характеризуется близостью к метро и удобными транспортными развязками. Неподалеку находятся: железнодорожная станция Люберцы-1, метро Лермонтовский проспект, новая станция метро Некрасовская, метро Котельники.

Технические характеристики:
Помещение занимает Первый этаж жилого здания.
Отдельные два входа. Два сан узла.
Электрическая мощность 38 кВт. Высота потолков: первый этаж - 4 м.
Коммуникации центральные.

Коммерческие условия:
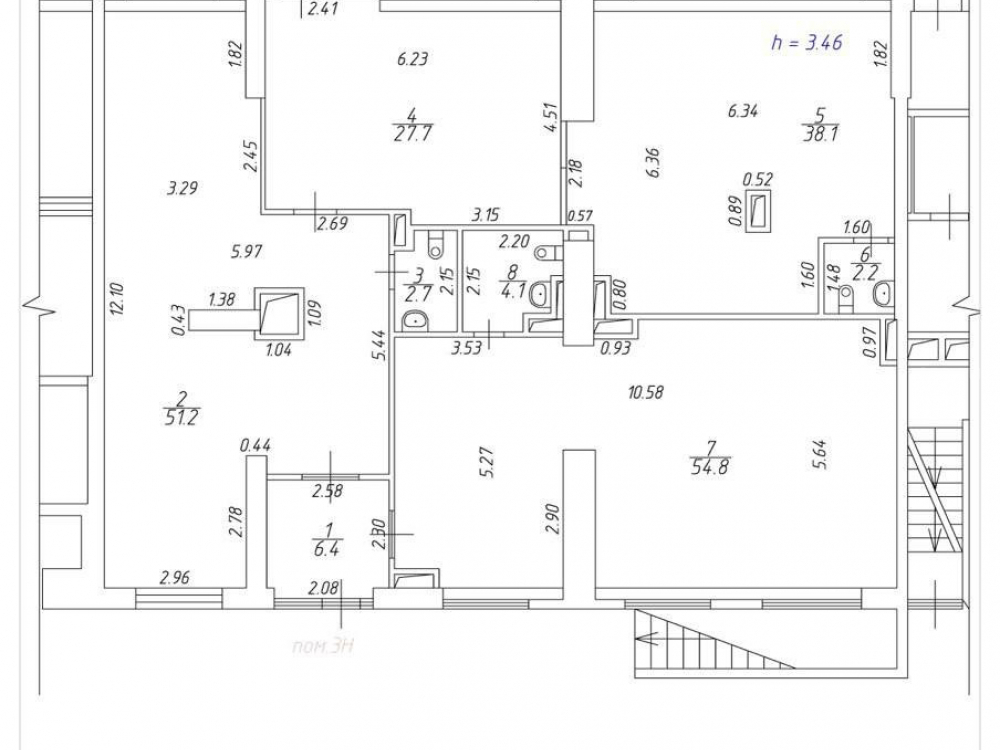
Общая площадь: 187,2 кв.м. ;
Арендатор - Ozon, wildberries, фотостудия, салон красоты, почтомат, кофемат, водомат;
МАП 290 000 рублей, ГАП 3 480 000 рублей, индексация 5%;
Окупаемость 8,3 лет;
Стоимость - 40 000 000 рублей;
Стоимость за 1 кв.м. - 213 675 рублей.

Технические характеристики

Тип здания: Арендный бизнес,С отдельным входом

Общая площадь: 187  м2

Этаж: 1

Всего этажей: 23

Электрическая мощность: 38

Высота потолков: 4

Парковка: Имеется

Коммерческие условия

Цена за все: 40 000 000 RUB

ФОРМА ВЛАДЕНИЯ: Собственность

Общий МАП: 290 000 RUB (данный МАП является минимальным, при оптимизации арендаторов арендный поток можно значительно увеличить)

Общий ГАП: 3 480 000 RUB

Окупаемость: 9.3 лет

Доходность: 10.71%

карта

Расположение

Адрес: Люберцы, Красноармейская улица, 19

Близость метро: Жулебино,Котельники,Лермонтовский проспект

Транспортная доступность: 10 минут от станции метро «Мцд Люберцы», «Котельники» - 20 мин пешком

Окружение

Торговое окружение: Дикси, салон красоты и т д.

Адрес:

Люберцы, Красноармейская улица, 19

Округ:

Близость метро:

Жулебино,Котельники,Лермонтовский проспект

Транспортная доступность:

10 минут от станции метро «Мцд Люберцы», «Котельники» - 20 мин пешком

карта

Торговое окружение:

Дикси, салон красоты и т д.

Общая площадь:

187  м2

Этаж:

1

Всего этажей:

23

Тип:

Арендный бизнес,С отдельным входом

Электрическая мощность:

38

Высота потолков:

4

Парковка:

Имеется

ФОРМА ВЛАДЕНИЯ:

Собственность

Цена за все:

40 000 000 RUB

Общий МАП: 290 000

(данный МАП является минимальным, при оптимизации арендаторов арендный поток можно значительно увеличить)

Общий ГАП:

3 480 000

Окупаемость:

9.3 лет

Доходность:

10.71%

Планировка

Егор Дмитриев

Ваш брокер по работе с клиентами

Найдите лучшее место
для жизни, бизнеса, инвестиций

Оставьте свои контакты — с вами свяжется руководитель отдела для презентации нужного вам объекта

Похожие объекты