Id 158381

Краснодарская 71/340м2/Аренда торгового помещения

адрес Москва, Краснодарская улица, 71

Торговая
ТЦ

1 360 000 RUB | в месяц

(за 1 м2 — 4 000 RUB)

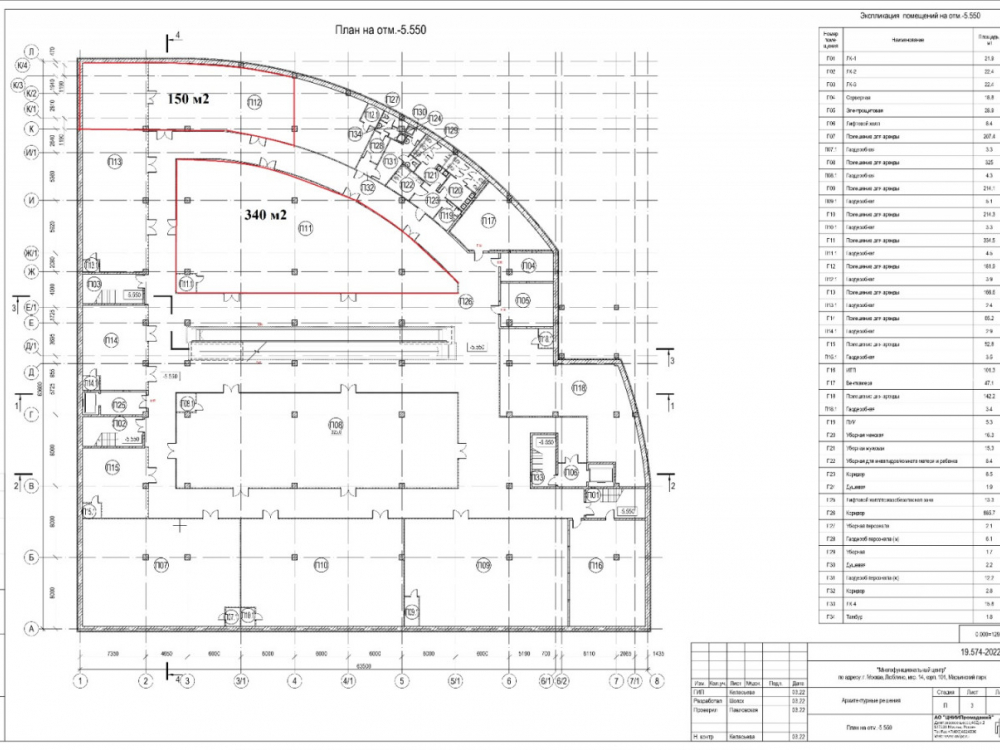
площадь 340.0 м2

QR код Qr код

Предлагается в аренду торговое помещение , расположенное на цокольном этаже ТЦ "Зернышко", расположенный по адресу: Краснодарская 71. Торговый центр располагается в центре жилого массива, не далеко от метро. Рядом остановка общественного транспорта. Интенсивный автомобильный и пешеходный трафик, вдоль помещения. 1 линия домов. Зона охвата 173201 жителей.
Арендаторы: Перекресток, Вкусно и Точка, Винлаб. и др.

Технические условия:
Общая площадь торгового центра 6700м2. Площадь помещения - 340м2; цокольный этаж. Высота потолка - 5,5м; Паркинг на 54м/м, грузовой лифт, панорамный лифт. Электрическая мощность по запросу.

Коммерческие условия:
Ставка в месяц - 1 360 000 рублей,
Ставка за м2/месяц. - 4 000 рублей;
Коммунальные платежи по счетчикам
НДС не облагается

Технические характеристики

Тип здания: Торговая,ТЦ

Общая площадь: 340  м2

Этаж: -1

Всего этажей: 2

Электрическая мощность: по запросу

Высота потолков: 6,5м

Парковка: 54м/м

Коммерческие условия

Цена в месяц: 1 360 000 RUB

ФОРМА ВЛАДЕНИЯ: НДС не облагается

карта

Расположение

Адрес: Москва, Краснодарская улица, 71

Округ: Юго-Восточный административный округ

Близость метро: Братиславская,Люблино,Марьино

Транспортная доступность: 10 минут на автомобиле от метро Братиславская

Окружение

Торговое окружение: Перекресток, Вкусно и Точка, Винлаб. и др

Адрес:

Москва, Краснодарская улица, 71

Округ:

Юго-Восточный административный округ

Близость метро:

Братиславская,Люблино,Марьино

Транспортная доступность:

10 минут на автомобиле от метро Братиславская

карта

Торговое окружение:

Перекресток, Вкусно и Точка, Винлаб. и др

Общая площадь:

340  м2

Этаж:

-1

Всего этажей:

2

Тип:

Торговая,ТЦ

Электрическая мощность:

по запросу

Высота потолков:

6,5м

Парковка:

54м/м

ФОРМА ВЛАДЕНИЯ:

НДС не облагается

Цена в месяц:

1 360 000 RUB

Планировка

Александр Невский

Ваш брокер по работе с клиентами

Найдите лучшее место
для жизни, бизнеса, инвестиций

Оставьте свои контакты — с вами свяжется руководитель отдела для презентации нужного вам объекта

Похожие объекты