Id 158169

ЮАО, Москва, ул. проспект Лихачёва, 20 ЖК Nagatino i-Land, корп 1 / 177,7 м2 / Продажа ПСН в новом ЖК

адрес ЮАО, Москва, ул. проспект Лихачёва, 20

С отдельным входом
Торговая
Общепит
Жилой комплекс (мфк)
Новостройка

86 579 704 RUB | за все

(за 1 м2 — 487 224 RUB)

площадь 177.7 м2

QR код Qr код

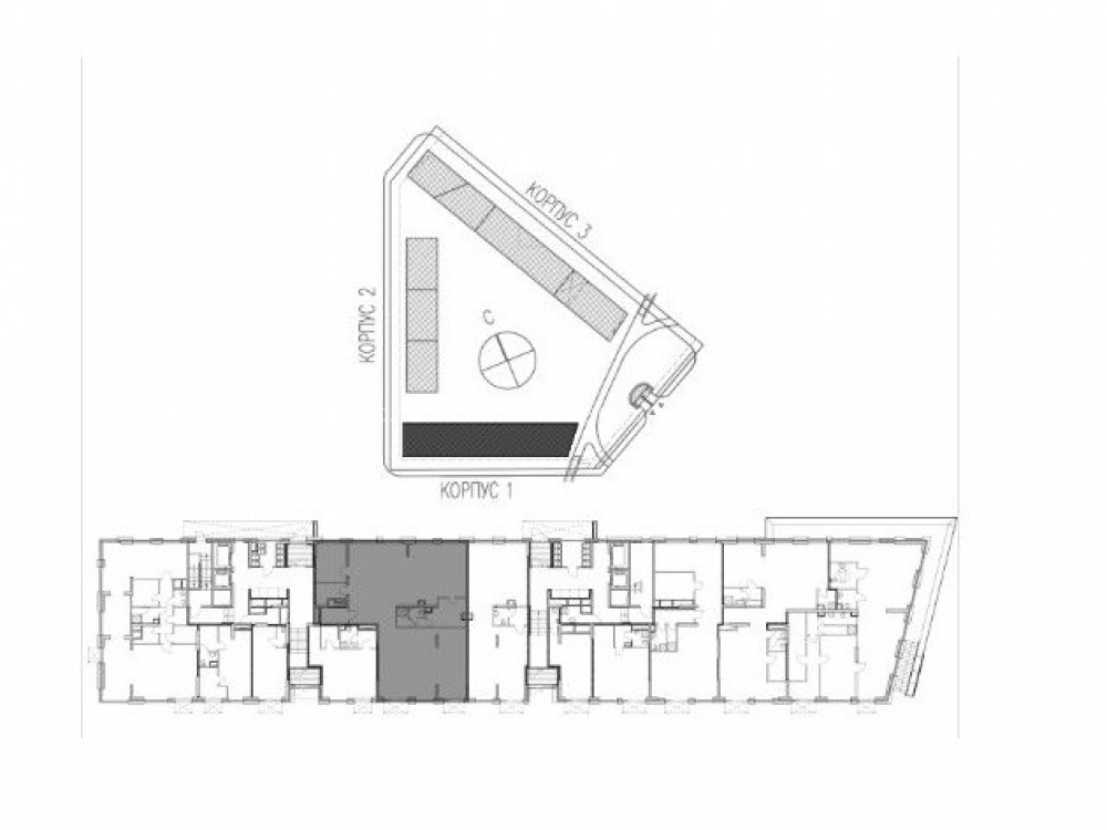
Предлагается в продажу нежилое помещение свободного назначения в ЮАО по адресу: Москва, ул. проспект Лихачёва, 22, площадью 177,7 м2, помещение находится в корпусе 1 высотой 18 этажей, этажность корпусов 5-35 этажей ЖК бизнес-класса. От метро Технопарк 5 мин. пешком.

Технические характеристики: площадь 177,7 кв.м. открытая планировка • потолки 5,1 м. (есть возможность создать Антресоль) • электроэнергия 0,2 кВт/м2 (есть техническая возможность для увеличения) • витринное остекление в пол • высокий рекламный потенциал. • 2 отдельных входа с видом на первую линию • мокрая точка • есть возможность установить вытяжку повышенной мощности • зона разгрузки • помещение в бетоне.

Ввод в эксплуатацию дом готов.
458 Квартир на один дом 1145 жителей чистовая отделка (быстрое заселение)
Всего в ЖК 12 корпусов ~15 000 жителей, также рядом находятся еще три ЖК
паркинг на 1691м/м

Инфраструктура:
11 Государственных и 9 частных детских садов
10 Государственных и 2 частные школы
3 Поликлинники
Больше 20 медицинских учреждений
Больше 10 торговых и развлекательных центров, включая ТЦ «РИВЬЕРА», «НОРА» и «МЕГАПОЛИС»
Бизнес-кластер NAGATINO I-LAND

Коммерческие условия:
• стоимость объекта 86 579 704 рублей
• стоимость объекта за м2 487 224 рублей
• собственник юр. лицо

Технические характеристики

Тип здания: С отдельным входом,Торговая,Общепит,Жилой комплекс (мфк),Новостройка

Общая площадь: 177.7  м2

Этаж: 1

Всего этажей: 18

Электрическая мощность: 37

Высота потолков: 5,1

Парковка: наземная и подземная

Коммерческие условия

Цена за все: 86 579 704 RUB

ФОРМА ВЛАДЕНИЯ: в собственности у юр лица

карта

Расположение

Адрес: ЮАО, Москва, ул. проспект Лихачёва, 20

Округ: Южный административный округ

Близость метро: Автозаводская (Замоскворецкая),Автозаводская (МЦК),ЗИЛ,Коломенская,Технопарк,Тульская

Транспортная доступность: в 5 мин пешком до м Технопарк

Окружение

Торговое окружение: ТЦ, ЖК, парк, офисные центры

Адрес:

ЮАО, Москва, ул. проспект Лихачёва, 20

Округ:

Южный административный округ

Близость метро:

Автозаводская (Замоскворецкая),Автозаводская (МЦК),ЗИЛ,Коломенская,Технопарк,Тульская

Транспортная доступность:

в 5 мин пешком до м Технопарк

карта

Торговое окружение:

ТЦ, ЖК, парк, офисные центры

Общая площадь:

177.7  м2

Этаж:

1

Всего этажей:

18

Тип:

С отдельным входом,Торговая,Общепит,Жилой комплекс (мфк),Новостройка

Электрическая мощность:

37

Высота потолков:

5,1

Парковка:

наземная и подземная

ФОРМА ВЛАДЕНИЯ:

в собственности у юр лица

Цена за все:

86 579 704 RUB

Александр Невский

Ваш брокер по работе с клиентами

Найдите лучшее место
для жизни, бизнеса, инвестиций

Оставьте свои контакты — с вами свяжется руководитель отдела для презентации нужного вам объекта

Похожие объекты