Id 158164

Волоколамское шоссе, 124 - 1600 кв. м. - Аренда / ОСЗ / ТЦ / Австосалон / Австосервис / Супермаркет

адрес Москва, Волоколамское шоссе, 124

Многофункциональный
Особняк/здание
С отдельным входом
Торговая
Проект
Медицина
Автобизнес
Отель/Хостел
Склад

4 800 000 RUB | в месяц

(за 1 м2 — 3 000 RUB)

площадь 1 600.0 м2

QR код Qr код

Предлагается в аренду двухэтажное здание с эксплуатируемой кровлей, со своей территорией и парковкой.
Адрес: г. Москва, СЗАО, Покровское-Стрешнево, Волоколамское шоссе, 124. Первая линия Волоколамского шоссе — высокая видимость и проходимость. Ближайшие станции метро: «Трикотажная» и "Тушинская" в 5 мин. пеш. Остановки общественного транспорта в непосредственной близости. Район отличается развитой социальной и коммерческой инфраструктурой. Рядом ЖК CITY BAY , образовательные учреждения: школы и детские сады. Медицинские учреждения и поликлиники.

Технические характеристики:
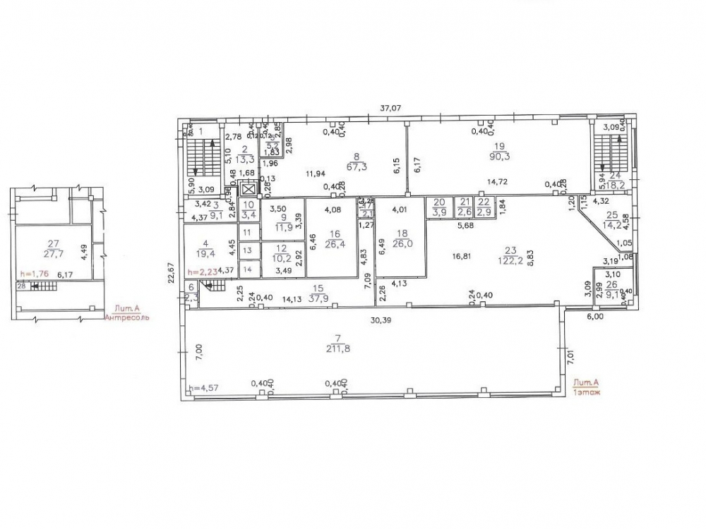
Общая площадь: 1600 кв. м. Этажность: 2 этажа + эксплуатируемая кровля.
Планировка:
1-й этаж – 800 кв.м., ночной клуб . Высота потолка - 4.57 м.
2-й этаж - 800 кв.м., ресторан/банкетный зал. Высота потолков: 3,36 м.
Эксплуатируемая кровля, возможность надстройки третьего этажа.
Состояние: дизайнерский ремонт. Коммуникации: электрическая мощность: 180 кВт, центральное отопление и кондиционирование, приточная вентиляция, порошковая система пожаротушения. Собственный комплекс очистных сооружений. Отдельный въезд с Волоколамского шоссе. Своя парковка на 30 машин.
Участок 25 сот. в аренде у города до 2058 г.

Помещение идеально подойдет для размещения ресторана, ночного клуба, торгового центра, супермаркета, автосалона или многофункционального бизнес-центра.

Коммерческие условия:
Арендная ставка: 4 800 000 руб. в мес.
Ставка за 1 кв. м.: 3 000 руб. в мес.
Ставка за 1 кв. м.: 36 000 руб. в год.

Технические характеристики

Тип здания: Многофункциональный,Особняк/здание,С отдельным входом,Торговая,Проект,Медицина,Автобизнес,Отель/Хостел,Склад

Общая площадь: 1600  м2

Этаж: 1

Всего этажей: 2

Электрическая мощность: 180 кВт

Высота потолков: 3,5 м

Парковка: своя парковка на 30 машин

Коммерческие условия

Цена в месяц: 4 800 000 RUB

ФОРМА ВЛАДЕНИЯ: ООО

карта

Расположение

Адрес: Москва, Волоколамское шоссе, 124

Округ: Северо-Западный административный округ

Близость метро: Трикотажная,Тушинская

Транспортная доступность: в пешей доступности

Окружение

Торговое окружение: развитое торговое окружение

Адрес:

Москва, Волоколамское шоссе, 124

Округ:

Северо-Западный административный округ

Близость метро:

Трикотажная,Тушинская

Транспортная доступность:

в пешей доступности

карта

Торговое окружение:

развитое торговое окружение

Общая площадь:

1600  м2

Этаж:

1

Всего этажей:

2

Тип:

Многофункциональный,Особняк/здание,С отдельным входом,Торговая,Проект,Медицина,Автобизнес,Отель/Хостел,Склад

Электрическая мощность:

180 кВт

Высота потолков:

3,5 м

Парковка:

своя парковка на 30 машин

ФОРМА ВЛАДЕНИЯ:

ООО

Цена в месяц:

4 800 000 RUB

Планировка

Петр Соловьев

Ваш брокер по работе с клиентами

Найдите лучшее место
для жизни, бизнеса, инвестиций

Оставьте свои контакты — с вами свяжется руководитель отдела для презентации нужного вам объекта

Похожие объекты