Id 157517

Москва, Электродная, 2/7 / 2619.8 кв.м /Продажа Здания/ГАБ

адрес Москва, Электродная улица, 2с7

Арендный бизнес
Особняк/здание
С отдельным входом

Окупаемость: 7.6 лет

Доходность:13.19%

314 376 000 RUB | за все

(за 1 м2 — 120 000 RUB)

площадь 2 619.8 м2

QR код Qr код

В продажу предлагается отдельно стоящее нежилое здание площадью 2619.8 кв.м. по адресу: г.Москва, СВАО, Электродная, 2 стр.7.
Здание расположено в 500 метрах от метро Шоссе Энтузиастов. Въезд на территорию осуществляется с Электродной ул. Объект находится на круглосуточно охраняемой огороженной территории и обладает просторным паркингом.

Технические характеристики:
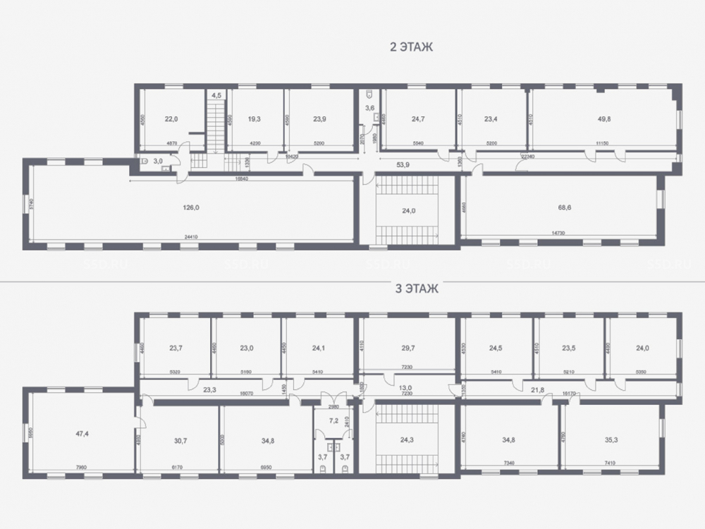
Здание общей площадью – 2619.8 кв. м., 5 этажей + 1 подземный, семь отдельных входов, зона разгрузки, кабинетная планировка, высота потолков – 2.8 м. Эл. мощность – 150 кВт., парковка на 10м/м.

Коммерческие условия:
Стоимость здания с НДС: 314 376 000 рублей.
Стоимость за кв.м с НДС: 120 000 рублей.
МАП: 3 493 000 руб.
ГАП: 41 920 000 руб.
Арендаторы: ООО, ИП

Технические характеристики

Тип здания: Арендный бизнес,Особняк/здание,С отдельным входом

Общая площадь: 2619.8  м2

Этаж: 1

Всего этажей: 6

Электрическая мощность: 150 кВт

Высота потолков: 2.8 м.

Парковка: На территории

Коммерческие условия

Цена за все: 314 376 000 RUB

ФОРМА ВЛАДЕНИЯ: Юр. Лицо

Окупаемость: 7.6 лет

Доходность: 13.19%

карта

Расположение

Адрес: Москва, Электродная улица, 2с7

Округ: Северо-Восточный административный округ

Близость метро: Шоссе Энтузиастов

Транспортная доступность: В 300 метрах от метро Шоссе Энтузиастов

Окружение

Торговое окружение: более 300 компаний на территории бизнес-парка и производственно-складского комплекса

Адрес:

Москва, Электродная улица, 2с7

Округ:

Северо-Восточный административный округ

Близость метро:

Шоссе Энтузиастов

Транспортная доступность:

В 300 метрах от метро Шоссе Энтузиастов

карта

Торговое окружение:

более 300 компаний на территории бизнес-парка и производственно-складского комплекса

Общая площадь:

2619.8  м2

Этаж:

1

Всего этажей:

6

Тип:

Арендный бизнес,Особняк/здание,С отдельным входом

Электрическая мощность:

150 кВт

Высота потолков:

2.8 м.

Парковка:

На территории

ФОРМА ВЛАДЕНИЯ:

Юр. Лицо

Цена за все:

314 376 000 RUB

Окупаемость:

7.6 лет

Доходность:

13.19%

Планировка

Евгений Артемьев

Ваш брокер по работе с клиентами

Найдите лучшее место
для жизни, бизнеса, инвестиций

Оставьте свои контакты — с вами свяжется руководитель отдела для презентации нужного вам объекта

Похожие объекты