Id 156422

Москва, ЮЗАО, Профсоюзная ул., 152К1 / Продажа / Готовый арендный бизнес / 40 кв.м.

адрес Москва, Профсоюзная улица, 152к1

Арендный бизнес
С отдельным входом
Торговая

Окупаемость: 11.1 лет

Доходность:9.02%

39 600 000 RUB | за все

(за 1 м2 — 990 000 RUB)

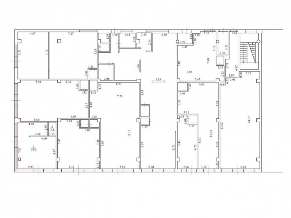
площадь 40.0 м2

QR код Qr код

Предлагается к продаже торговое помещение с арендатором на первой линии домов улицы Профсоюзной на выходе из метро "Теплый стан", общей площадью 40 кв.м. Рядом две остановки общественного транспорта. Активный пешеходный. Крупный жилой массив. Прямая видимость от метро. Большой рекламный потенциал, хорошая визуализация объекта.

Технические характеристики:
Отдельный вход с первой линии. Мощность электроэнергии - 20 кВт. Высота потолков - 3.4 метра. Большие витрины. Помещение и здание после ремонта, в отличном состоянии.

Коммерческие условия:
Стоимость: 39 600 000 рублей.

Арендатор: кафе-Пекарня 24 часа
МАП: 300 000 рублей.
ГАП: 3 600 000 рублей.
Срок договора: на 11 мес. от 17.07.2025
Индексация: 5 % безусловно
Окупаемость: 11 лет.

Технические характеристики

Тип здания: Арендный бизнес,С отдельным входом,Торговая

Общая площадь: 40  м2

Этаж: 1

Всего этажей: 1

Электрическая мощность: 20 кВт.

Высота потолков: 3.4 м.

Парковка: Есть.

Коммерческие условия

Цена за все: 39 600 000 RUB

ФОРМА ВЛАДЕНИЯ: ИП.

Общий МАП: 300 000 RUB (данный МАП является минимальным, при оптимизации арендаторов арендный поток можно значительно увеличить)

Общий ГАП: 3 600 000 RUB

Окупаемость: 11.1 лет

Доходность: 9.02%

карта

Расположение

Адрес: Москва, Профсоюзная улица, 152к1

Округ: Юго-Западный административный округ

Близость метро: Генерала Тюленева,Коньково,Тёплый стан

Транспортная доступность: Метро

Окружение

Торговое окружение: Почта России, Wildberries, Ароматный Мир, СДЭК, ДоДо Пицца, Аптека Фармленд, супермаркет Пятерочка, Аптека Горздрав, супермаркет ЧИЖИК.

Адрес:

Москва, Профсоюзная улица, 152к1

Округ:

Юго-Западный административный округ

Близость метро:

Генерала Тюленева,Коньково,Тёплый стан

Транспортная доступность:

Метро

карта

Торговое окружение:

Почта России, Wildberries, Ароматный Мир, СДЭК, ДоДо Пицца, Аптека Фармленд, супермаркет Пятерочка, Аптека Горздрав, супермаркет ЧИЖИК.

Общая площадь:

40  м2

Этаж:

1

Всего этажей:

1

Тип:

Арендный бизнес,С отдельным входом,Торговая

Электрическая мощность:

20 кВт.

Высота потолков:

3.4 м.

Парковка:

Есть.

ФОРМА ВЛАДЕНИЯ:

ИП.

Цена за все:

39 600 000 RUB

Общий МАП: 300 000

(данный МАП является минимальным, при оптимизации арендаторов арендный поток можно значительно увеличить)

Общий ГАП:

3 600 000

Окупаемость:

11.1 лет

Доходность:

9.02%

Планировка

Павел

Ваш брокер по работе с клиентами

Найдите лучшее место
для жизни, бизнеса, инвестиций

Оставьте свои контакты — с вами свяжется руководитель отдела для презентации нужного вам объекта

Похожие объекты