Id 156187

Шмитовский пр-д, 39к6 - 131 м² / Аренда торгового помещения / ПСН

адрес Москва, Шмитовский проезд, 39к6

Москва-Сити
С отдельным входом
Торговая
Новостройка

630 000 RUB | в месяц

(за 1 м2 — 4 802 RUB)

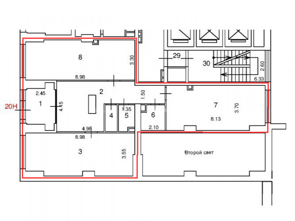
площадь 131.2 м2

QR код Qr код

Аренда торгового помещения. Адрес: Москва, ЦАО, Пресненский район, Шмитовский проезд, дом 39, корпус 6. Три минуты пешком от МЦК Шелепиха и МЦД-D3. Территория большого сити. 10 корпусов переменной этажности, рассчитанных на 9,5 тысяч жителей. Развитая торговая инфраструктура. Пешая доступность делового центра.
Торговое окружение: ВкусВилл, CMD, Invitro, кофейни, аптеки, барбершопы.

Технические характеристики:
Первый этаж 51-этажного жилого дома. Общая площадь: 131,25 м². Состояние отделки: shell&core. Электрическая мощность: 49 кВт. Высота потолков: 3 метра, витринное остекление,

Коммерческие условия:
Стоимость аренды: 630 000 руб/мес. - на 1 год; со второго года = 721 600 рублей.
Ставка аренды за 1 м²: 4 800 руб/мес. - 1 год; со второго года аренды = 5 500 рублей в месяц.
Ставка аренды за 1 м²: 57 600 руб/год.- 1 год; со второго года аренды = 66 000 рублей в месяц.
Депозит - 1 месяц.
Арендные каникулы для ремонтных работ.
УСН

Технические характеристики

Тип здания: Москва-Сити,С отдельным входом,Торговая,Новостройка

Общая площадь: 131.2  м2

Этаж: 1

Всего этажей: 51

Электрическая мощность: 49 кВт

Высота потолков: 3 метра

Парковка: подземная

Коммерческие условия

Цена в месяц: 630 000 RUB

ФОРМА ВЛАДЕНИЯ: ИП (УСН)

карта

Расположение

Адрес: Москва, Шмитовский проезд, 39к6

Округ: Центральный административный округ

Близость метро: Шелепиха

Транспортная доступность: 3 минуты пешком от МЦК и МЦД-D3

Окружение

Торговое окружение: ВкусВилл, CMD, Invitro, кофейни, аптеки, барбершопы.

Адрес:

Москва, Шмитовский проезд, 39к6

Округ:

Центральный административный округ

Близость метро:

Шелепиха

Транспортная доступность:

3 минуты пешком от МЦК и МЦД-D3

карта

Торговое окружение:

ВкусВилл, CMD, Invitro, кофейни, аптеки, барбершопы.

Общая площадь:

131.2  м2

Этаж:

1

Всего этажей:

51

Тип:

Москва-Сити,С отдельным входом,Торговая,Новостройка

Электрическая мощность:

49 кВт

Высота потолков:

3 метра

Парковка:

подземная

ФОРМА ВЛАДЕНИЯ:

ИП (УСН)

Цена в месяц:

630 000 RUB

Планировка

Дмитриев Александр

Ваш брокер по работе с клиентами

Найдите лучшее место
для жизни, бизнеса, инвестиций

Оставьте свои контакты — с вами свяжется руководитель отдела для презентации нужного вам объекта

Похожие объекты