Id 156052

Москва, Электродная, 2/ 12 / 2600 кв.м / Продажа под Автосервис/Склад

адрес Москва, Электродная улица, 2с14

С отдельным входом
Автобизнес
Склад

353 685 000 RUB | за все

(за 1 м2 — 133 315 RUB)

площадь 2 653.0 м2

QR код Qr код

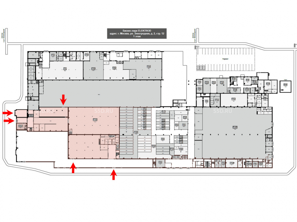
В продажу предлагается помещение 2653 кв.м. по адресу: г.Москва, СВАО, Электродная, 2/ 12
Комплекс расположен в 500 метрах от метро Шоссе Энтузиастов. Общая площадь здания - 40 000 кв.м Въезд на территорию
осуществляется с Электродной ул. Объект находится на круглосуточно охраняемой огороженной территории и обладает просторным паркингом.
Отлично подойдет под автосервис(ранее располагался, склад, производство)

Технические характеристики:
Помещение общей площадью – 2653 кв. м., два отдельных въезда, три отдельных входа, первый этаж. Зальная планировка. Высота потолков – 6 м. Электрическая мощность – 150 кВт. (1 мегаватт в резерве)

Коммерческие условия:
Стоимость с НДС: 353 685 000 рублей.
Стоимость за кв.м с НДС: 133 320 рублей.

Технические характеристики

Тип здания: С отдельным входом,Автобизнес,Склад

Общая площадь: 2653  м2

Этаж: 1

Всего этажей: 1

Электрическая мощность: 150 кВт

Высота потолков: 6 м.

Парковка: На территории

Коммерческие условия

Цена за все: 353 685 000 RUB

ФОРМА ВЛАДЕНИЯ: Юр. Лицо

карта

Расположение

Адрес: Москва, Электродная улица, 2с14

Округ: Северо-Восточный административный округ

Близость метро: Шоссе Энтузиастов

Транспортная доступность: В 300 метрах от метро Шоссе Энтузиастов

Окружение

Торговое окружение: более 300 компаний на территории бизнес-парка и производственно-складского комплекса

Адрес:

Москва, Электродная улица, 2с14

Округ:

Северо-Восточный административный округ

Близость метро:

Шоссе Энтузиастов

Транспортная доступность:

В 300 метрах от метро Шоссе Энтузиастов

карта

Торговое окружение:

более 300 компаний на территории бизнес-парка и производственно-складского комплекса

Общая площадь:

2653  м2

Этаж:

1

Всего этажей:

1

Тип:

С отдельным входом,Автобизнес,Склад

Электрическая мощность:

150 кВт

Высота потолков:

6 м.

Парковка:

На территории

ФОРМА ВЛАДЕНИЯ:

Юр. Лицо

Цена за все:

353 685 000 RUB

Планировка

Александр Невский

Ваш брокер по работе с клиентами

Найдите лучшее место
для жизни, бизнеса, инвестиций

Оставьте свои контакты — с вами свяжется руководитель отдела для презентации нужного вам объекта

Похожие объекты