Id 155705

Продажа помещения свободного назначения ЖК «Лучи»/ 72 м2./ Производственная к. 15 с. 10, м. Солнечная.

адрес Москва, Производственная улица, вл15

Жилой комплекс (мфк)

29 613 292 RUB | за все

(за 1 м2 — 411 296 RUB)

площадь 72.0 м2

QR код Qr код

Вашему вниманию предлагается в продажу помещение, общей площадью 72 квадратных метров, расположенное в семейном, новом ЖК "Лучи", на улице Производственная к 15 с .10, м. Солнцево. Развитая инфраструктура. Интенсивный пешеходный и автомобильный трафик.

Транспортная доступность: В 300 метрах от жилых корпусов "Лучи" расположена станция метро "Солнцево". Рядом находится станция "Боровское шоссе" этой же линии метрополитена. Через район проходит множество маршрутов наземного общественного транспорта: за 15 минут на автобусе можно добраться до станции метро "Саларьево", а за 30 - до "Юго-Западной". Также рядом с "Лучами" - железнодорожные станции МЦД-4 «Солнечная» и «Новопеределкино».

Технические характеристики:
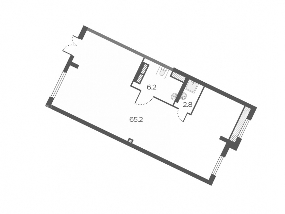
Общая площадь: 72 квадратных метров. 1 этаж.
Высота потолков: 4.5 м.
Выделенная электрическая мощность: 14.84 кВт.
Витринное остекленение.
Без стен.
Приточно-вытяжная система вентиляции.
Центральная система кондиционирования.
Высокий рекламный потенциал.
Есть наземный паркинг.

Коммерческие условия:
Стоимость объекта: 29 613 292 рублей.
Стоимость объекта за м2: 406 775 рублей.
Договор: ДДУ.
Условия обсуждаются на переговорах.

Технические характеристики

Тип здания: Жилой комплекс (мфк)

Общая площадь: 72  м2

Этаж: 1

Всего этажей: 5

Электрическая мощность: 14.84 кВт.

Высота потолков: 4.5

Парковка: есть

Коммерческие условия

Цена за все: 29 613 292 RUB

ФОРМА ВЛАДЕНИЯ: собственность

карта

Расположение

Адрес: Москва, Производственная улица, вл15

Округ: Западный административный округ

Близость метро: Солнечная

Транспортная доступность: отличная

Окружение

Торговое окружение: развитое

Адрес:

Москва, Производственная улица, вл15

Округ:

Западный административный округ

Близость метро:

Солнечная

Транспортная доступность:

отличная

карта

Торговое окружение:

развитое

Общая площадь:

72  м2

Этаж:

1

Всего этажей:

5

Тип:

Жилой комплекс (мфк)

Электрическая мощность:

14.84 кВт.

Высота потолков:

4.5

Парковка:

есть

ФОРМА ВЛАДЕНИЯ:

собственность

Цена за все:

29 613 292 RUB

Планировка

Шаклеина Юлия

Ваш брокер по работе с клиентами

Найдите лучшее место
для жизни, бизнеса, инвестиций

Оставьте свои контакты — с вами свяжется руководитель отдела для презентации нужного вам объекта

Похожие объекты