Id 155588

ул. Двинцев, 3, БЦ Stone Савёловская – 202.5 м2 – Продажа помещения под ресторан

адрес Москва, улица Двинцев, 3

Торговая

250 087 500 RUB | за все

(за 1 м2 — 1 235 000 RUB)

площадь 202.5 м2

QR код Qr код

Продажа торгового помещения с технологией для размещения ресторана в БЦ Stone Савеловская по адресу улица Двинцев, 3.
Станция метро "Савеловская" — в 5 мин. ходьбы.
Метро "Марьина Роща" — 13 мин. пешком. ТТК — 500 м.
Активно развивающийся район с современной деловой и жилой функцией: 5 600 — численность населения в новых жилых комплексах в ближайшем окружении и 10 000 сотрудников в новом бизнес-центре.
Суточный пассажиропоток ТПУ «Савеловская» — 98 тыс. человек.
Сейчас в бизнес-центре STONE Савеловская продолжаются фасадные работы, работы по внутренним инженерным системам, черновой и чистовой отделке мест общего пользования, а также по благоустройству. Срок сдачи объекта: конец 2025 года. Выдача ключей в 1 квартале 2026.

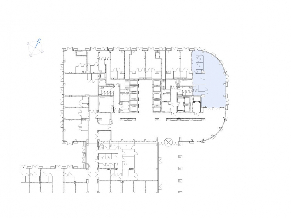
Технические характеристики: Угловое помещение, общей площадью 202.5 кв.м. в одном уровне. Три отдельных входа с улицы. Высота потолков более 4 метров. Технологическая вытяжка. Витринное остекление, место для размещения вывески. Летняя терраса. Все центральные коммуникации. Профессиональная УК.

Коммерческие условия:
Стоимость продажи: 250 087 500 рублей с НДС.
Стоимость 1 кв. метра - 1 235 000 рублей с НДС.
Возможно приобретение в рассрочку без процентов.

Технические характеристики

Тип здания: Торговая

Общая площадь: 202.5  м2

Этаж: 1

Всего этажей: 24

Электрическая мощность: по запросу

Высота потолков: от 4,1 м

Парковка: есть

Коммерческие условия

Цена за все: 250 087 500 RUB

ФОРМА ВЛАДЕНИЯ: -

карта

Расположение

Адрес: Москва, улица Двинцев, 3

Округ: Северо-Западный административный округ

Близость метро: Марьина роща,Савеловская

Транспортная доступность: Станция метро Савеловская — в 5 мин. ходьбы, Марьина Роща — 13 мин. ТТК — 500 м.

Окружение

Торговое окружение: развитое

Адрес:

Москва, улица Двинцев, 3

Округ:

Северо-Западный административный округ

Близость метро:

Марьина роща,Савеловская

Транспортная доступность:

Станция метро Савеловская — в 5 мин. ходьбы, Марьина Роща — 13 мин. ТТК — 500 м.

карта

Торговое окружение:

развитое

Общая площадь:

202.5  м2

Этаж:

1

Всего этажей:

24

Тип:

Торговая

Электрическая мощность:

по запросу

Высота потолков:

от 4,1 м

Парковка:

есть

ФОРМА ВЛАДЕНИЯ:

-

Цена за все:

250 087 500 RUB

Планировка

Гервас Ксения

Ваш брокер по работе с клиентами

Найдите лучшее место
для жизни, бизнеса, инвестиций

Оставьте свои контакты — с вами свяжется руководитель отдела для презентации нужного вам объекта

Похожие объекты