Id 155127

г. Мытищи, Комарова ул, 17А / 74,66 м2. / Продажа помещения свободного назначения.

адрес Московская обл. ,г.Мытищи, Комарова 2к1

Многофункциональный
С отдельным входом
Торговая

23 690 000 RUB | за все

(за 1 м2 — 320 135 RUB)

площадь 74.0 м2

QR код Qr код

Продажа помещения по адресу: г.Мытищи, ул.Комарова 17А , 74,66 м2., от станции ж/д Мытищи 15-17 мин. пешком. ЖК " Страна. Парковая", Дом Перов . Познакомьтесь с новым кварталом в живописном районе на северо-востоке Москвы. Внутри проекта — целый бульвар с площадками для игр и спорта, гамаками и шезлонгами в зоне отдыха. А еще сад с цветущими травами и парк камней. Живите в балансе с природой. В шаговой доступности от жилого комплекса находится несколько природных зон: парки Мира, Яуза, Перловский, Тайнинский, парк им. Стрекалова и Мытищинский лесопарк. Интенсивный трафик, обеспечивается зоной отдыха, пешеходным переходом. В окрестностях ЖК «Страна.Парковая» — магазины, три школы, пять детских садов, несколько поликлиник и бесконечное количество досуговых локаций. А для того, чтобы слиться с активным ритмом столицы, можно за 20 минут доехать до ВДНХ.

Торговое окружение: Ozon, Сбербанк

Технические характеристики:
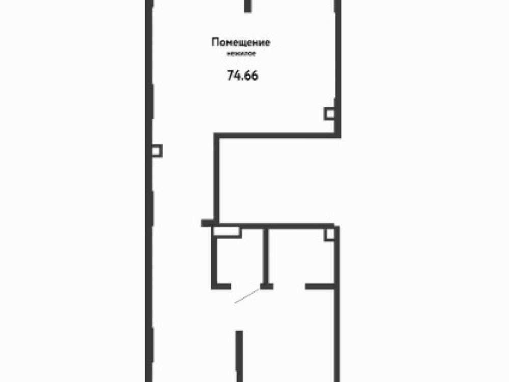
Площадь -74,66 м2., располагается на 1 этаже, отдельный вход со стороны двора, высота потолков - 4,2 м.

Коммерческие условия:
Стоимость объекта - 23 690 000 руб.
Стоимость за 1 кв.м - 317 305 руб.
Ввод по договору III кв. 2026

Технические характеристики

Тип здания: Многофункциональный,С отдельным входом,Торговая

Общая площадь: 74  м2

Этаж: 1

Всего этажей: 27

Электрическая мощность: -

Высота потолков: -

Парковка: -

Коммерческие условия

Цена за все: 23 690 000 RUB

ФОРМА ВЛАДЕНИЯ: -

карта

Расположение

Адрес: Московская обл. ,г.Мытищи, Комарова 2к1

Округ: Северо-Восточный административный округ

Близость метро: Медведково

Транспортная доступность: -

Окружение

Торговое окружение: -

Адрес:

Московская обл. ,г.Мытищи, Комарова 2к1

Округ:

Северо-Восточный административный округ

Близость метро:

Медведково

Транспортная доступность:

-

карта

Торговое окружение:

-

Общая площадь:

74  м2

Этаж:

1

Всего этажей:

27

Тип:

Многофункциональный,С отдельным входом,Торговая

Электрическая мощность:

-

Высота потолков:

-

Парковка:

-

ФОРМА ВЛАДЕНИЯ:

-

Цена за все:

23 690 000 RUB

Планировка

Шаклеина Юлия

Ваш брокер по работе с клиентами

Найдите лучшее место
для жизни, бизнеса, инвестиций

Оставьте свои контакты — с вами свяжется руководитель отдела для презентации нужного вам объекта

Похожие объекты