Id 154707

Москва, ул. Багрицкого, д. 3 корп. 1/ 89 м2/Продажа АБ

адрес Москва, ЗАО, ул. Багрицкого, д. 3, корп. 1

Арендный бизнес
С отдельным входом
Торговая

Окупаемость: 12 лет

Доходность:8.33%

41 500 000 RUB | за все

(за 1 м2 — 465 247 RUB)

площадь 89.2 м2

QR код Qr код

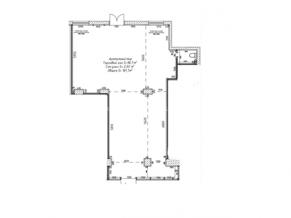
Продажа нежилого помещения свободного назначения по адресу: ЗАО, Москва, ул. Багрицкого, д. 3 корп. 1, площадью 89.2 м2. Объект расположен в первой линии густонаселенного жилого массива со сложившейся инфраструктурой. Ближайшее метро «Кунцевская».

Торговое окружение: супермаркет "Пятерочка", ВкусВилл.

Технические параметры: 1 этаж 9-ти этажного жилого дома, общей площадью 89.2 м2. Вход с первой линии, отдельная входная группа, высота потолков 3.35 м. Городские коммуникации. Выделенная электрическая мощность 22 кВт, возможность увеличения.

Коммерческие условия:
Стоимость объекта 41 500 000 рублей.
Стоимость объекта за м2: 465 246 рублей.

Арендатор: Ароматный мир
МАП 290 000 рублей, коммунальные платежи оплачиваются отдельно
ГАП: 3 480 000 рублей.
Индексация: 4%
Окупаемость: 12 лет.

Продажа по ДКП. Быстрый выход на сделку.

Технические характеристики

Тип здания: Арендный бизнес,С отдельным входом,Торговая

Общая площадь: 89.2  м2

Этаж: 1

Всего этажей: 9

Электрическая мощность: 22 кВт, можно увеличить.

Высота потолков: 3.35 м.

Парковка: Есть

Коммерческие условия

Цена за все: 41 500 000 RUB

ФОРМА ВЛАДЕНИЯ: Юр. лицо без НДС

Общий МАП: 290 000 RUB (данный МАП является минимальным, при оптимизации арендаторов арендный поток можно значительно увеличить)

Общий ГАП: 3 480 000 RUB

Окупаемость: 12 лет

Доходность: 8.33%

карта

Расположение

Адрес: Москва, ЗАО, ул. Багрицкого, д. 3, корп. 1

Округ: Западный административный округ

Близость метро: Давыдково,Кунцевская,Рабочий поселок

Транспортная доступность: Ближайшее метро «Кунцевская».

Окружение

Торговое окружение: супермаркет

Адрес:

Москва, ЗАО, ул. Багрицкого, д. 3, корп. 1

Округ:

Западный административный округ

Близость метро:

Давыдково,Кунцевская,Рабочий поселок

Транспортная доступность:

Ближайшее метро «Кунцевская».

карта

Торговое окружение:

супермаркет

Общая площадь:

89.2  м2

Этаж:

1

Всего этажей:

9

Тип:

Арендный бизнес,С отдельным входом,Торговая

Электрическая мощность:

22 кВт, можно увеличить.

Высота потолков:

3.35 м.

Парковка:

Есть

ФОРМА ВЛАДЕНИЯ:

Юр. лицо без НДС

Цена за все:

41 500 000 RUB

Общий МАП: 290 000

(данный МАП является минимальным, при оптимизации арендаторов арендный поток можно значительно увеличить)

Общий ГАП:

3 480 000

Окупаемость:

12 лет

Доходность:

8.33%

Планировка

Александр Невский

Ваш брокер по работе с клиентами

Найдите лучшее место
для жизни, бизнеса, инвестиций

Оставьте свои контакты — с вами свяжется руководитель отдела для презентации нужного вам объекта

Похожие объекты