Id 154364

Москва, Крузенштерна, д.4 - 102,9 кв.м. - Продажа ПСН

адрес Москва, Крузенштерна, д.4

С отдельным входом
Торговая

65 000 000 RUB | за все

(за 1 м2 — 631 068 RUB)

площадь 103.0 м2

QR код Qr код

Предлагается на продажу помещение свободного назначения в ЖК Бизнес-класса "Символ", по адресу: Москва, ул. Крузенштерна, д. 4, расположенное на первой линии на въезде в жилой микрорайон, хорошо просматривается с дороги, в 10 минутах ходьбы от метро Площадь Ильича/Римская. Жилой квартал Символ рассчитанн на 19 000 жителей, активно развивающаяся локация.
Помещение расположено напротив сетевого арендатора Пятерочка, слева от помещения - салон красоты Soda.

Технические характеристики:
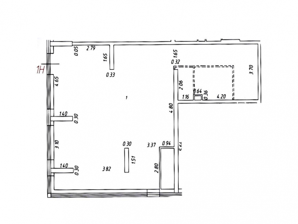
Общая площадь - 102,9 кв.м., первый этаж 22-ух этажного жилого дома, отдельный вход, открытая планировка, витринные окна, высота потолков - 5,3 м., электрическая мощность - 19 кВт., вытяжка общедомовая.

Коммерческие условия:
Стоимость объекта: 65 000 000 рублей.
Стоимость объекта за м2: 631 681 рублей.

Технические характеристики

Тип здания: С отдельным входом,Торговая

Общая площадь: 103  м2

Этаж: 1

Всего этажей: 10

Электрическая мощность: 19 кВт

Высота потолков: 5,3 м.

Парковка: -

Коммерческие условия

Цена за все: 65 000 000 RUB

ФОРМА ВЛАДЕНИЯ: Юр. лицо

карта

Расположение

Адрес: Москва, Крузенштерна, д.4

Близость метро: Площадь Ильича,Римская

Транспортная доступность: -

Окружение

Торговое окружение: -

Адрес:

Москва, Крузенштерна, д.4

Округ:

Близость метро:

Площадь Ильича,Римская

Транспортная доступность:

-

карта

Торговое окружение:

-

Общая площадь:

103  м2

Этаж:

1

Всего этажей:

10

Тип:

С отдельным входом,Торговая

Электрическая мощность:

19 кВт

Высота потолков:

5,3 м.

Парковка:

-

ФОРМА ВЛАДЕНИЯ:

Юр. лицо

Цена за все:

65 000 000 RUB

Планировка

Александр Невский

Ваш брокер по работе с клиентами

Найдите лучшее место
для жизни, бизнеса, инвестиций

Оставьте свои контакты — с вами свяжется руководитель отдела для презентации нужного вам объекта

Похожие объекты