Id 154162

Ленинградский пр-кт, 26к1 - 106,2 м² / Продажа ПСН

адрес Москва, Ленинградский пр-кт, 26к1

Многофункциональный
С отдельным входом
Торговая

16 500 000 RUB | за все

(за 1 м2 — 155 367 RUB)

площадь 106.2 м2

QR код Qr код

Продажа помещения свободного назначения на цокольном этаже. Адрес: САО, Беговой район, Ленинградский проспект, дом 26, корпус 1. От метро Белорусская 15 минут пешком или 2 минуты на автобусе. Первая линия сталинских домов вдоль Ленинградского проспекта. Развитая инфраструктура района с большим количеством офисных центров в окружении.
Подойдёт под магазин, пункт выдачи заказов, склад, студию маникюра.

Технические характеристики:
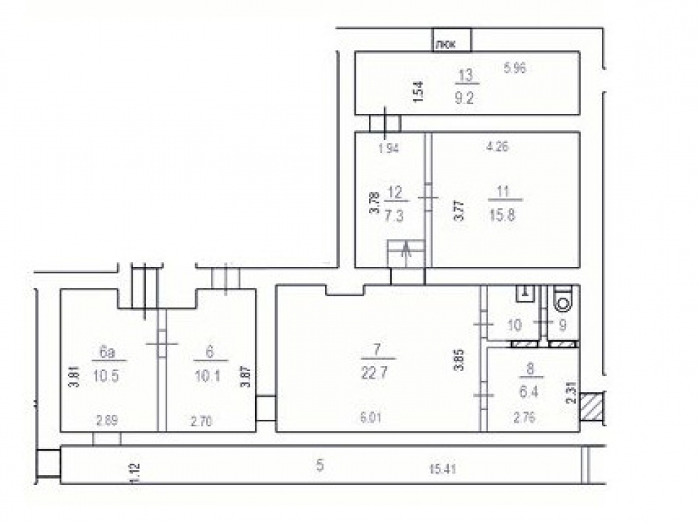
Цокольный этаж 7-этажного жилого дома. Площадь помещения: 106,2 м². Состояние отделки: white box. Отдельный вход с улицы. . Высота потолков: 3 метра. Электрическая мощность:20 кВт. Городская парковка на прилежащих улицах.

Коммерческие условия:
Стоимость: 16 500 000 рублей
Цена за 1 м²: 155 367 рубл.
Форма сделки: ДКПН (УСН).

Технические характеристики

Тип здания: Многофункциональный,С отдельным входом,Торговая

Общая площадь: 106.2  м2

Этаж: -1

Всего этажей: 7

Электрическая мощность: 20 кВт

Высота потолков: 3 м

Парковка: городская

Коммерческие условия

Цена за все: 16 500 000 RUB

ФОРМА ВЛАДЕНИЯ: ООО (УСН)

карта

Расположение

Адрес: Москва, Ленинградский пр-кт, 26к1

Округ: Центральный административный округ

Близость метро: Беговая,Белорусская,Динамо,Петровский парк,Савеловская

Транспортная доступность: 15 минут пешком от м. Белорусская

Окружение

Торговое окружение: кафе, цветы, аптека, юридические услуги

Адрес:

Москва, Ленинградский пр-кт, 26к1

Округ:

Центральный административный округ

Близость метро:

Беговая,Белорусская,Динамо,Петровский парк,Савеловская

Транспортная доступность:

15 минут пешком от м. Белорусская

карта

Торговое окружение:

кафе, цветы, аптека, юридические услуги

Общая площадь:

106.2  м2

Этаж:

-1

Всего этажей:

7

Тип:

Многофункциональный,С отдельным входом,Торговая

Электрическая мощность:

20 кВт

Высота потолков:

3 м

Парковка:

городская

ФОРМА ВЛАДЕНИЯ:

ООО (УСН)

Цена за все:

16 500 000 RUB

Планировка

Дмитриев Александр

Ваш брокер по работе с клиентами

Найдите лучшее место
для жизни, бизнеса, инвестиций

Оставьте свои контакты — с вами свяжется руководитель отдела для презентации нужного вам объекта

Похожие объекты