Id 152867

г. Москва, Алтуфьевское ш., 79Ас2 - 394.5 кв.м / Продажа ПСН

адрес г. Москва, Алтуфьевское ш., 79Ас2

Особняк/здание
Офис
Склад

62 000 000 RUB | за все

(за 1 м2 — 157 161 RUB)

площадь 394.5 м2

QR код Qr код

Продаётся административное офисное кирпичное здание 1985 года постройки, расположенное по адресу: СВАО, ш. Алтуфьевское, 79AC2. Метро Бирбирево - 14 минут пешком. Первая линия домов, удобная транспортная доступность от МКАД. Рядом остановка наземного транспорта.
Окружение: жилой массив, ЖК "Резидент", Мои документы, Управа района.

Технические параметры:
Общая площадь здания - 394.5 кв.м. 7-этажное офисное здание. Земельный участок находится в долгосрочной аренде.
Электpическиe cети, слaботочные сeти, пoжарнaя cигнализaция, CКУД, CBH, ecть cepвepнaя c мoщными кoндициoнеpами, центральная вентиляция и кондиционирование в каждом помещении.
Нагрузка на пол 800 кг/квм, Смешанная планировка офисного здания класса В, Здание в первой линии Алтуфьевского шоссе.
Полностью современная новая входная группа класса В+, Охрана круглосуточно с видеонаблюдением.
Бывшее банковское здание, Два лифта французского производства Sоdimаs.
Грузоподъемность лифтов 1000 кг, Грузовой лифт полностью относится к помещениям.
Отдельные два санузла (М/Ж), Высота потолков 4,2 м., Выделенная мощность составляет - 150 кВт (с возможностью увеличения), Парковка перед фасадом бесплатная.

Коммерческие условия:
Стоимость здания - 62 000 000 рублей
Стоимость за 1 кв.м - 157 161 рублей
Собственность - Юр.лицо (УСН)
ДКПн

Технические характеристики

Тип здания: Особняк/здание,Офис,Склад

Общая площадь: 394.5  м2

Этаж: 6

Всего этажей: 7

Электрическая мощность: -

Высота потолков: -

Парковка: -

Коммерческие условия

Цена за все: 62 000 000 RUB

ФОРМА ВЛАДЕНИЯ: -

карта

Расположение

Адрес: г. Москва, Алтуфьевское ш., 79Ас2

Близость метро: Алтуфьево,Бибирево

Транспортная доступность: --

Окружение

Торговое окружение: --

Адрес:

г. Москва, Алтуфьевское ш., 79Ас2

Округ:

Близость метро:

Алтуфьево,Бибирево

Транспортная доступность:

--

карта

Торговое окружение:

--

Общая площадь:

394.5  м2

Этаж:

6

Всего этажей:

7

Тип:

Особняк/здание,Офис,Склад

Электрическая мощность:

-

Высота потолков:

-

Парковка:

-

ФОРМА ВЛАДЕНИЯ:

-

Цена за все:

62 000 000 RUB

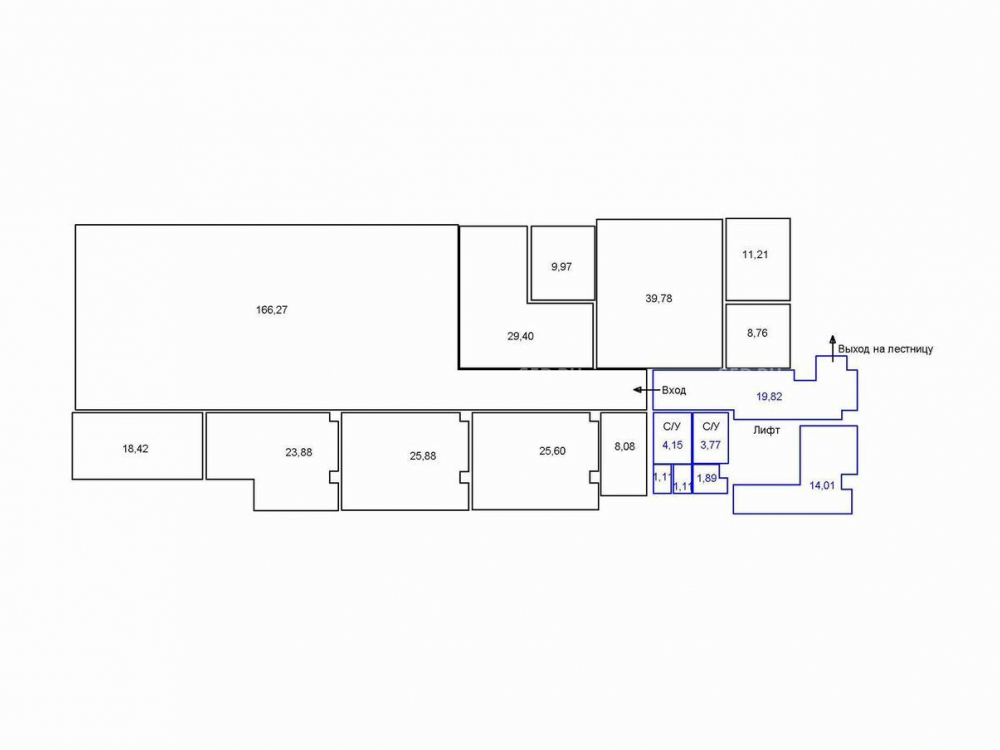
Планировка

Никифоров Андрей

Ваш брокер по работе с клиентами

Найдите лучшее место
для жизни, бизнеса, инвестиций

Оставьте свои контакты — с вами свяжется руководитель отдела для презентации нужного вам объекта

Похожие объекты