Id 152787

ЮАО, просп. Андропова, 11к7 /Аренда/ ОСЗ 4709м2

адрес Москва, проспект Андропова, 11к7

Многофункциональный
С отдельным входом
Торговая
Офис
Общепит
Автобизнес

10 377 250 RUB | в месяц

(за 1 м2 — 2 204 RUB)

площадь 4 709.0 м2

QR код Qr код

Аренда отдельно стоящего здания.
Адрес: г. Москва, Проспект Андропова 11, корпус 7.
Комплекс зданий расположен в районе Нагатинский Затон г. Москвы. В непосредственной близости находятся транспортные дороги: проспект Андропова и ТТК. В пешей доступности станции метро: Кожуховская, Автозаводская, Нагатинский Затон. В 200 м располагается культурно-развлекательный парк "Остров Мечты".

Технические характеристики:
-Панорамное остекление
-Отдельные входные группы с зонами разгрузки,
-Высота потолков 6 м,
-Места под вывески на фасаде,
- Балконы на 2 и 3 этажах
-Уличное пространство для летней веранды.
- Отделка Shell&Core
-Лобби с лифтом и турникетами, су и рецепцией
-Эл. мощность 400 кВт

Общая площадь здания 4709 м2+Подвал 587 м2
потолки 1,75 - 3 м (возможно использовать под усиление нагрузки 1 этажа)
Площади в аренду:

1 этаж 1137 м2, возможно деление/объединение в иные блоки (127 м2, 175 м2, 190 м2,190 м2, 205 м2, 250 м2.
2 этаж 1281,4 м2 – М О П и СУ в дизайнерской отделке
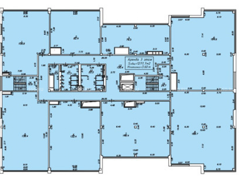
3 этаж 1277,7 м2 – М О П и СУ в дизайнерской отделке

Коммерческие условия:
Арендная ставка 1 этаж 3500 руб./м2 (вкл НДС 20% ) и/или 15% от ТО, но не менее фикс ставки
2 этаж 2500 руб/м2 (вкл НДС 20%)
Ку по счётчикам
Каникулы обсуждаются.

блоки объекта

ЮАО, просп. Андропова, 11с3 /Аренда/ ПСН в ОСЗ 1137м2

1137.0 м2

3 979 500 руб в месяц

ЮАО, просп. Андропова, 11с3 /Аренда/ ПСН в ОСЗ 205м2

205.0 м2

717 500 руб в месяц

ЮАО, просп. Андропова, 11с3 /Аренда/ ПСН в ОСЗ 175м2

175.0 м2

612 500 руб в месяц

ЮАО, просп. Андропова, 11с3 /Аренда/ ПСН в ОСЗ 250м2

250.0 м2

875 000 руб за м2 в год

ЮАО, просп. Андропова, 11с3 /Аренда/ ПСН в ОСЗ 127м2

127.0 м2

44 500 руб в месяц

ЮАО, просп. Андропова, 11с3 /Аренда/ ПСН в ОСЗ 190м2

190.0 м2

665 000 руб в месяц

Технические характеристики

Тип здания: Многофункциональный,С отдельным входом,Торговая,Офис,Общепит,Автобизнес

Общая площадь: 2084  м2

Этаж: 1

Всего этажей: 3

Электрическая мощность: 400

Высота потолков: 6

Парковка: Есть

Коммерческие условия

Цена в месяц: 10 377 250 RUB

ФОРМА ВЛАДЕНИЯ: Собственность

карта

Расположение

Адрес: Москва, проспект Андропова, 11к7

Округ: Южный административный округ

Близость метро: Технопарк

Транспортная доступность: Отличная

Окружение

Торговое окружение: Магазины, рестораны, предприятия сферы обслуживания

Адрес:

Москва, проспект Андропова, 11к7

Округ:

Южный административный округ

Близость метро:

Технопарк

Транспортная доступность:

Отличная

карта

Торговое окружение:

Магазины, рестораны, предприятия сферы обслуживания

Общая площадь:

2084  м2

Этаж:

1

Всего этажей:

3

Тип:

Многофункциональный,С отдельным входом,Торговая,Офис,Общепит,Автобизнес

Электрическая мощность:

400

Высота потолков:

6

Парковка:

Есть

ФОРМА ВЛАДЕНИЯ:

Собственность

Цена в месяц:

10 377 250 RUB

Планировка

Олеся Шайхисламова

Ваш брокер по работе с клиентами

Найдите лучшее место
для жизни, бизнеса, инвестиций

Оставьте свои контакты — с вами свяжется руководитель отдела для презентации нужного вам объекта

Похожие объекты