Id 152460

Краснобогатырская ул., 38 - 352 м2 / Общепит / ПСН

адрес Краснобогатырская улица, 40

С отдельным входом
Торговая
Общепит
Медицина

100 000 000 RUB | за все

(за 1 м2 — 284 010 RUB)

площадь 352.1 м2

QR код Qr код

Продажа помещения в ЖК бизнес-класса "Большая Семерка", Москва, ул. Краснобогатырская, 40к7. Ближайшая станция метро Преображенская площадь - 15 минут пешком. ЖК на 808 квартир на 2000 жильцов, состоит из 7 монолитных корпусов на стилобате с нежилыми помещениями и подземной автостоянкой. ЖК веден в эксплуатацию в 2024 году.
Торговое окружение: Пятёрочка, Супер Лента, Пальчики, Аптека, ОЗОН, Wildberries, Ветклиника, Фитнес клуб и другие.

Технические характеристики:
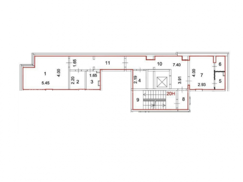
1-й этаж 17-этажного жилого дома. Общая площадь помещения - 352.1 м2 из которых на первом этаже 147,4 м2, цоколь 91,9 м2 и склад/погрузка в паркинге - 112,9 м2. Есть подъемник. Два отдельных входа. Свободная планировка, состояние помещения без отделки, в бетоне. Высота до потолка 3,5м. Большие витринные окна со стороны фасада и со стороны торца. Форматное помещение с технологической вытяжкой и большой выделенной мощностью.

Коммерческие условия:
Цена помещения: 100 000 000 руб с НДС.
Стоимость за 1 кв.м: 284 000 руб

Технические характеристики

Тип здания: С отдельным входом,Торговая,Общепит,Медицина

Общая площадь: 352.1  м2

Этаж: 1

Всего этажей: 17

Электрическая мощность: -

Высота потолков: 3.5

Парковка: наземная и подземная

Коммерческие условия

Цена за все: 100 000 000 RUB

ФОРМА ВЛАДЕНИЯ: ООО с НДС

карта

Расположение

Адрес: Краснобогатырская улица, 40

Округ: Восточный административный округ

Близость метро: Преображенская площадь

Транспортная доступность: Ближайшая станция метро Преображенская площадь - 15 минут пешком

Окружение

Торговое окружение: Пятёрочка, Супер Лента, Пальчики, Аптека, ОЗОН, Wildberries, Ветклиника, Фитнес клуб и другие

Адрес:

Краснобогатырская улица, 40

Округ:

Восточный административный округ

Близость метро:

Преображенская площадь

Транспортная доступность:

Ближайшая станция метро Преображенская площадь - 15 минут пешком

карта

Торговое окружение:

Пятёрочка, Супер Лента, Пальчики, Аптека, ОЗОН, Wildberries, Ветклиника, Фитнес клуб и другие

Общая площадь:

352.1  м2

Этаж:

1

Всего этажей:

17

Тип:

С отдельным входом,Торговая,Общепит,Медицина

Электрическая мощность:

-

Высота потолков:

3.5

Парковка:

наземная и подземная

ФОРМА ВЛАДЕНИЯ:

ООО с НДС

Цена за все:

100 000 000 RUB

Планировка

Шагитов Марат

Ваш брокер по работе с клиентами

Найдите лучшее место
для жизни, бизнеса, инвестиций

Оставьте свои контакты — с вами свяжется руководитель отдела для презентации нужного вам объекта

Похожие объекты