Id 15229

Хоромный тупик 2/6 - Арендный бизнес/продажа торгового помещения 95кв

адрес Москва, Хоромный тупик 2/6

Арендный бизнес
Многофункциональный
С отдельным входом
Торговая
Общепит

Окупаемость: 24.9 года

Доходность:4.01%

166 000 000 RUB | за все

(за 1 м2 — 1 747 368 RUB)

площадь 95.0 м2

QR код Qr код

Продажа торгового помещения с арендатором , по адресу: Москва, ул. Хоромный тупик 2/6. Ближайшая станция метро - Красные ворота, 1 минута пешком. Помещение расположенного на 1 этаже 6-этажного жилого дома, первая линия. Интенсивный пешеходный трафик сосредоточен у помещения. Отличная визуализация. Возможность размещения вывески.

Параметры помещения:
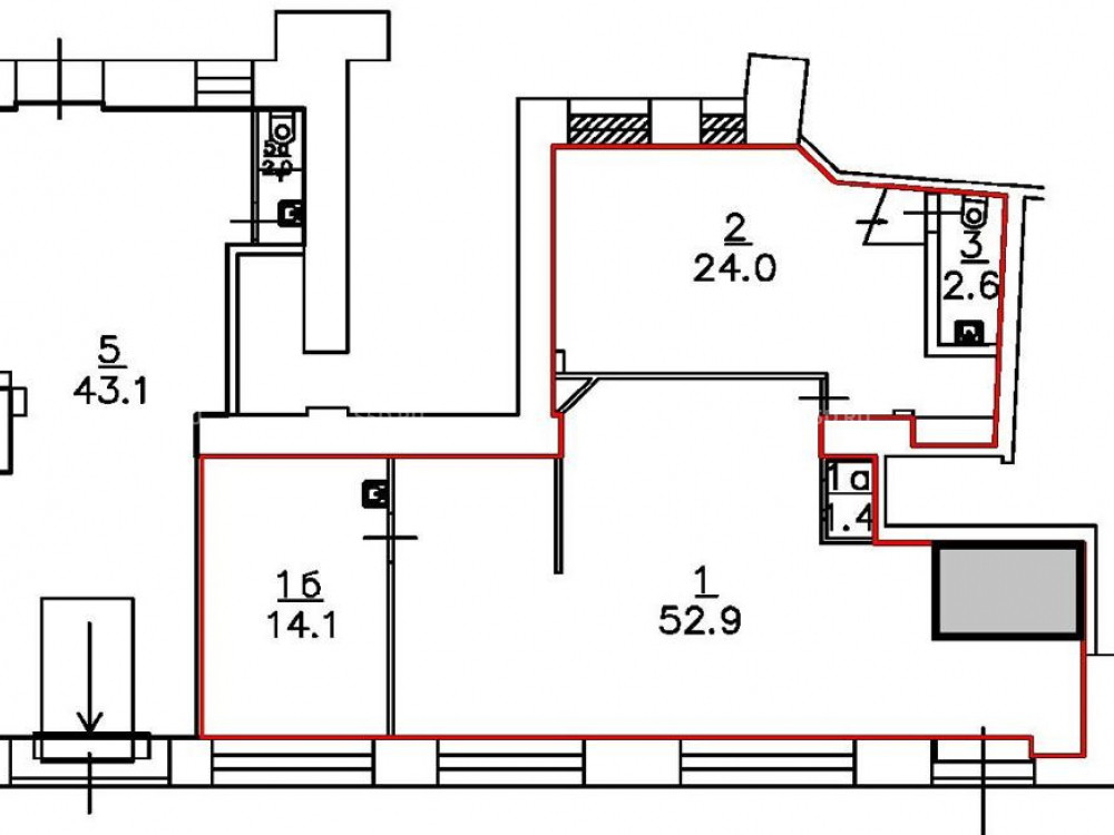
Торговое помещение площадью 95 кв.м;
Открытая планировка, отдельный вход;
Высота потолков 3.2 м;
Подключены все центральные коммуникации;
Выделенная мощность электроэнергии 44 КВт (возможно увеличение).
Доступ в здание 24/7(свободный).

Коммерческие условия:
Стоимость объекта - 166 000 000 руб.;
Арендатор - Ортопедические салоны"Ортека" (долгосрочный договор );
МАП -556 000 руб.
ГАП - 6 672 000 руб с ежегодной индексацией 5%.(по договоренности)

Технические характеристики

Тип здания: Арендный бизнес,Многофункциональный,С отдельным входом,Торговая,Общепит

Общая площадь: 95  м2

Этаж: 1

Всего этажей: 6

Электрическая мощность: 44кВт

Высота потолков: 3.2м

Парковка: -

Коммерческие условия

Цена за все: 166 000 000 RUB

ФОРМА ВЛАДЕНИЯ: УСН

Общий МАП: 556 000 RUB (данный МАП является минимальным, при оптимизации арендаторов арендный поток можно значительно увеличить)

Общий ГАП: 6 672 000 RUB

Окупаемость: 24.9 года

Доходность: 4.01%

карта

Расположение

Адрес: Москва, Хоромный тупик 2/6

Близость метро: Красные ворота

Транспортная доступность: Ближайшая станция метро - Красные ворота, 1 минута пешком

Окружение

Торговое окружение: -

Адрес:

Москва, Хоромный тупик 2/6

Округ:

Близость метро:

Красные ворота

Транспортная доступность:

Ближайшая станция метро - Красные ворота, 1 минута пешком

карта

Торговое окружение:

-

Общая площадь:

95  м2

Этаж:

1

Всего этажей:

6

Тип:

Арендный бизнес,Многофункциональный,С отдельным входом,Торговая,Общепит

Электрическая мощность:

44кВт

Высота потолков:

3.2м

Парковка:

-

ФОРМА ВЛАДЕНИЯ:

УСН

Цена за все:

166 000 000 RUB

Общий МАП: 556 000

(данный МАП является минимальным, при оптимизации арендаторов арендный поток можно значительно увеличить)

Общий ГАП:

6 672 000

Окупаемость:

24.9 года

Доходность:

4.01%

Планировка

Назарова Олеся

Ваш брокер по работе с клиентами

Найдите лучшее место
для жизни, бизнеса, инвестиций

Оставьте свои контакты — с вами свяжется руководитель отдела для презентации нужного вам объекта

Похожие объекты