Id 152083

Краснопресненская наб. , 14Ак2 / 688 кв.м. / Аренда ПСН

адрес Краснопресненская набережная, 14Ак2

Многофункциональный
Москва-Сити
С отдельным входом
Торговая
Общепит

4 590 000 RUB | в месяц

(за 1 м2 — 6 672 RUB)

площадь 688.0 м2

QR код Qr код

Предлагается в аренду коммерческое помещение на первой линии в ЖК Capital Towers, общей площадью 688 кв.м. Объект расположен в Центральном административном округе на берегу Москвы-реки по адресу: Краснопресненская наб., 14Ак2. Комплекс состоит из трех башен высотой 295 метров в которых расположены 837 квартир. Большие витринные окна имеют прекрасную визуализацию с Краснопресненской набережной. Сверхинтенсивный пешеходный и автомобильный трафик вдоль помещения обеспечит Ваш бизнес высоким рекламным и маркетинговым потенциалом. До станции метро Деловой центр 500 метров.

Торговое окружение: Москва-Сити, Афимол Сити, Банки, магазины и рестораны.

Характеристики объекта:
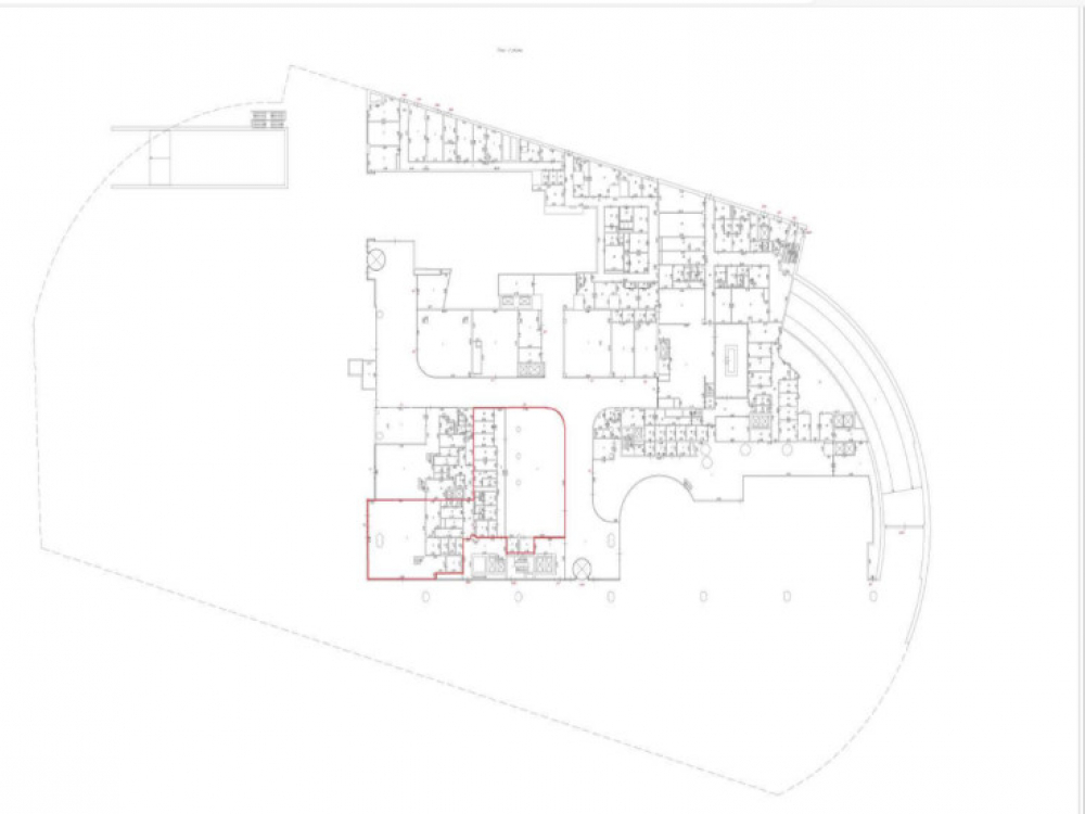
1-ый этаж 70-ти этажного жилого комплекса. Два блока общей площадью 688 кв.м. ( 1-й блок 331,4 кв.м. и 2-й блок 356,6 кв.м.) Возможна аренда каждого блока по отдельности. Блок 1 - имеет отдельный вход с улицы. Блок 2 - через общий вход в здание. Свободная планировка ( без ремонта). Высокие потолки 7 метров. Мощность электроэнергии ( Блок 1 - 142 кВт., Блок 2 - 63 кВт). Большие витринные окна. Место для рекламы на фасаде. Все центральные коммуникации.

Видео и планировку предоставляем по запросу.

Коммерческие характеристики:
Ставка аренды 4 590 000 рублей/месяц
Ставка аренды 6 671 рублей за кв.м./месяц
Ставка аренды 80 058 рублей за кв.м/год
Возможна аренда каждого блока отдельно.
Блок 1 - 331,4 кв.м. за 2 211 000 рублей в месяц.
Блок 2 - 356,6 кв.м. за 2 379 000 рублей в месяц.
Форма сделки: долгосрочный договор аренды.
Коммунальные услуги оплачиваются по факту потребления.

Технические характеристики

Тип здания: Многофункциональный,Москва-Сити,С отдельным входом,Торговая,Общепит

Общая площадь: 688  м2

Этаж: 1

Всего этажей: 70

Электрическая мощность: -

Высота потолков: -

Парковка: -

Коммерческие условия

Цена в месяц: 4 590 000 RUB

ФОРМА ВЛАДЕНИЯ: -

карта

Расположение

Адрес: Краснопресненская набережная, 14Ак2

Округ: Центральный административный округ

Близость метро: Деловой центр

Транспортная доступность: -

Окружение

Торговое окружение: -

Адрес:

Краснопресненская набережная, 14Ак2

Округ:

Центральный административный округ

Близость метро:

Деловой центр

Транспортная доступность:

-

карта

Торговое окружение:

-

Общая площадь:

688  м2

Этаж:

1

Всего этажей:

70

Тип:

Многофункциональный,Москва-Сити,С отдельным входом,Торговая,Общепит

Электрическая мощность:

-

Высота потолков:

-

Парковка:

-

ФОРМА ВЛАДЕНИЯ:

-

Цена в месяц:

4 590 000 RUB

Планировка

Степанов Анатолий

Ваш брокер по работе с клиентами

Найдите лучшее место
для жизни, бизнеса, инвестиций

Оставьте свои контакты — с вами свяжется руководитель отдела для презентации нужного вам объекта

Похожие объекты