Id 150400

ЖК «Южная Битца», Южный бул. 6 - 200 кв. м. / Аренда ПСН

адрес ЖК «Южная Битца», Южный бул. 6

С отдельным входом
Торговая
Новостройка

300 000 RUB | в месяц

(за 1 м2 — 1 500 RUB)

площадь 200.0 м2

QR код Qr код

Предлагается в аренду помещение свободного назначения в ЖК «Южная Битца» по адресу: МО, Ленинский городской округ, пос. Битца., Южный бульвар 6. Ближайшие станции метро: улица Старокачаловская и Бульвар Дмитрия Донского – 12 мин. транспортом. Жилой развивающийся район. На территории 62 га строится 12 многоквартирных новостроек переменной этажности (17-25 этажей) и собственные объекты инфраструктуры.. Плотный жилой массив вокруг. Соседи - федеральные арендаторы с высокой арендной ставкой.

Торговое окружение:
Рядом расположены ВИНлаб, Бристоль, кафе Здрасте, Пиццерия, Озон, Горздрав, Пятерочка,медицинская лаборатория Гемотест, магазин цветов Зайчиха Цветочница, салон красоты бьюти Лав, магазин продуктов Авокадо, пункт выдачи Яндекс Маркет, пекарня Буханка, магазин табака и курительных принадлежностей Табак 24, ателье, дом быта, строительный магазин ДомСтрой, ногтевая студия Лу Лу. Напротив помещения находится Пятерочка и Вкусвилл, очень высокий пешеходный трафик.

Технические характеристики:
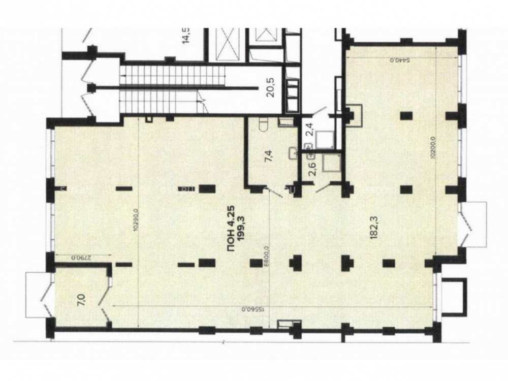
Помещение 200 в. м., 1 этаж. Отдельный вход. Панорамные витринные окна. Потолки 4.7 метров, ремонт. Открытая планировка. Электрическая мощность – 40 кВт. Напротив

Коммерческие условия:
Стоимость аренды помещения - 300 000 рублей.
Стоимость аренды за 1 кв. м. – 1500 рублей

Технические характеристики

Тип здания: С отдельным входом,Торговая,Новостройка

Общая площадь: 200  м2

Этаж: 1

Всего этажей: 22

Электрическая мощность: -

Высота потолков: -

Парковка: -

Коммерческие условия

Цена в месяц: 300 000 RUB

ФОРМА ВЛАДЕНИЯ: --

карта

Расположение

Адрес: ЖК «Южная Битца», Южный бул. 6

Округ: Южный административный округ

Близость метро: Аннино,Улица Старокачаловская

Транспортная доступность: -

Окружение

Торговое окружение: -

Адрес:

ЖК «Южная Битца», Южный бул. 6

Округ:

Южный административный округ

Близость метро:

Аннино,Улица Старокачаловская

Транспортная доступность:

-

карта

Торговое окружение:

-

Общая площадь:

200  м2

Этаж:

1

Всего этажей:

22

Тип:

С отдельным входом,Торговая,Новостройка

Электрическая мощность:

-

Высота потолков:

-

Парковка:

-

ФОРМА ВЛАДЕНИЯ:

--

Цена в месяц:

300 000 RUB

Планировка

Никифоров Андрей

Ваш брокер по работе с клиентами

Найдите лучшее место
для жизни, бизнеса, инвестиций

Оставьте свои контакты — с вами свяжется руководитель отдела для презентации нужного вам объекта

Похожие объекты