Id 149647

Хорошевское шоссе, 25 - 121,5 кв.м. - Аренда / Торговое помещение

адрес Москва, Хорошевское шоссе, 25

Многофункциональный
С отдельным входом
Торговая
Жилой комплекс (мфк)

700 000 RUB | в месяц

(за 1 м2 — 5 761 RUB)

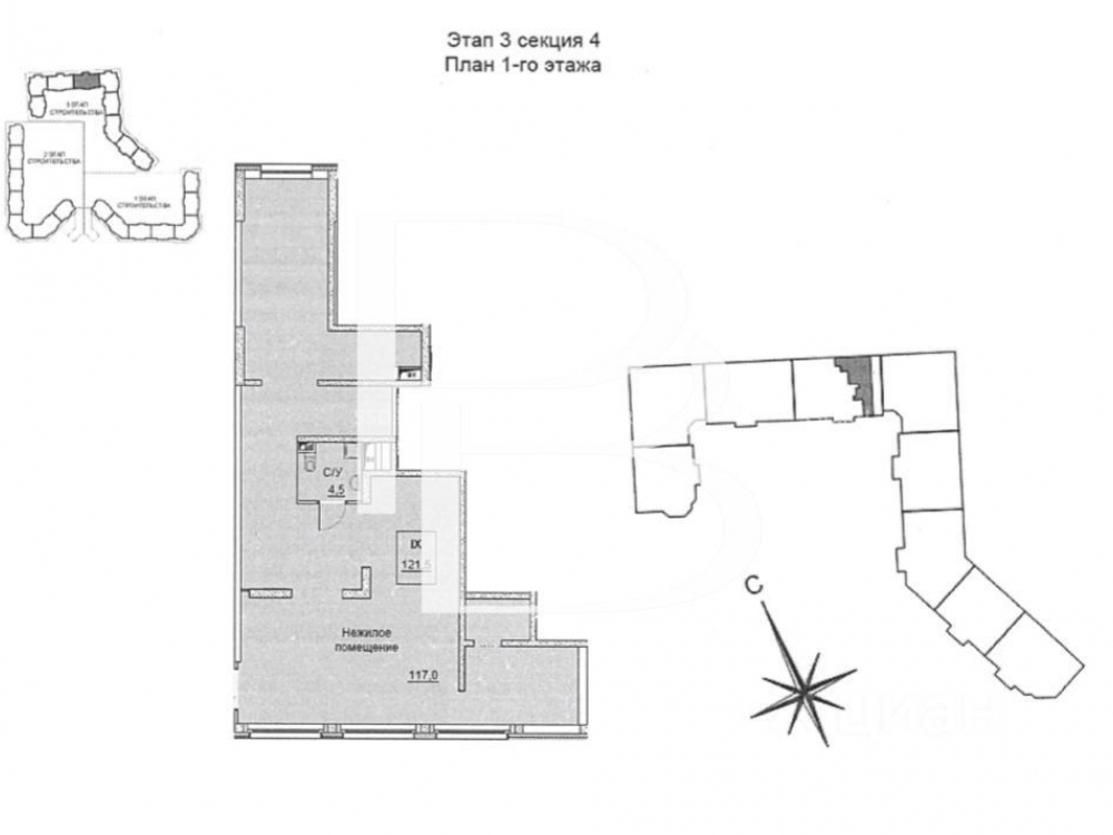
площадь 121.5 м2

QR код Qr код

Аренда помещение свободного назначения в ЖК бизнес-класса Династия по адресу: г.Москва, САО, р-н Хорошево-Мневники, Хорошевское шоссе, 25. В шаговой доступности станции метро: Полежаевская - 5 мин. пешком и Хорошевская. Престижное расположение. ЖК с премиальной архитектурой. Проект включает 3 высотных дома с благоустроенной территорией, подземными парковками и собственной инфраструктурой от застройщика Sezar Group.
Торговое окружение: салон красоты Mone, кофейня ЧАО Какао, магазин цветов Nos Flowers, аптека Неофарм, магазин парфюмерии и косметики Подружка, рыбный магазин Икорный, Ozon и Lamoda, табак, ногтевая студия 4hands, Ароматный мир, салон красоты I`Doll Studio, магазин одежды и др.

Технические характеристики:
Общая площадь – 121,5 кв.м., 1 этаж. Отдельный вход (общий тамбур с арендаторами салон красоты и цветы). Витринное остекление. Высокие потолки – 3.2 м. Выделенная электрическая мощность – 24,3 кВт. Парковка. Помещение с ремонтом, за выездом арендатора.

Коммерческие условия:
Арендная ставка – 700 000 руб. в мес.
Ставка за 1 кв. м. – 5 761 руб. в мес.
Возможен долгосрочный договор.
Прямая аренда.

Технические характеристики

Тип здания: Многофункциональный,С отдельным входом,Торговая,Жилой комплекс (мфк)

Общая площадь: 121.5  м2

Этаж: 1

Всего этажей: 26

Электрическая мощность: 24 кВт

Высота потолков:

Парковка: городская

Коммерческие условия

Цена в месяц: 700 000 RUB

ФОРМА ВЛАДЕНИЯ: ИП

карта

Расположение

Адрес: Москва, Хорошевское шоссе, 25

Округ: Северный административный округ

Близость метро: Полежаевская,Хорошевская

Транспортная доступность: 3 минуты пешком от м.Хорошевская

Окружение

Торговое окружение: салон красоты Mone, кофейня ЧАО Какао, магазин цветов Nos Flowers, аптека Неофарм, магазин парфюмерии и косметики Подружка, рыбный магазин Икорный, Ozon и Lamoda, табак, ногтевая студия 4hands, Ароматный мир, салон красоты I`Doll Studio, магазин одежды и др.

Адрес:

Москва, Хорошевское шоссе, 25

Округ:

Северный административный округ

Близость метро:

Полежаевская,Хорошевская

Транспортная доступность:

3 минуты пешком от м.Хорошевская

карта

Торговое окружение:

салон красоты Mone, кофейня ЧАО Какао, магазин цветов Nos Flowers, аптека Неофарм, магазин парфюмерии и косметики Подружка, рыбный магазин Икорный, Ozon и Lamoda, табак, ногтевая студия 4hands, Ароматный мир, салон красоты I`Doll Studio, магазин одежды и др.

Общая площадь:

121.5  м2

Этаж:

1

Всего этажей:

26

Тип:

Многофункциональный,С отдельным входом,Торговая,Жилой комплекс (мфк)

Электрическая мощность:

24 кВт

Высота потолков:

Парковка:

городская

ФОРМА ВЛАДЕНИЯ:

ИП

Цена в месяц:

700 000 RUB

Планировка

Воробьев Алексей

Ваш брокер по работе с клиентами

Найдите лучшее место
для жизни, бизнеса, инвестиций

Оставьте свои контакты — с вами свяжется руководитель отдела для презентации нужного вам объекта

Похожие объекты