Id 149262

Москва, ул. Коминтерна, 15- 121 кв.м / Аренда торгового помещения

адрес улица Коминтерна, 15

Многофункциональный
С отдельным входом
Торговая
Общепит

363 000 RUB | в месяц

(за 1 м2 — 3 000 RUB)

площадь 121.0 м2

QR код Qr код

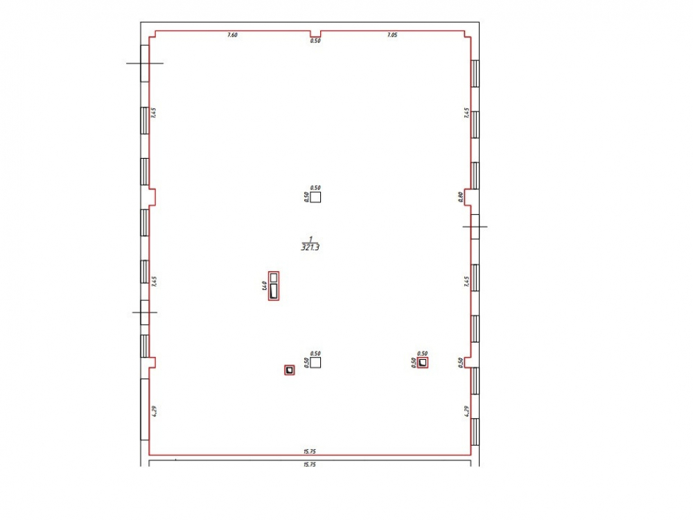
Предлагается в аренду помещение в новом ЖК "Ты и Я" по адресу: Москва, СВАО, ул. Коминтерна, 15 площадью 121 м2.
Ближайшие станции метро Бабушкинская находится в 15 минутах пешком.
Помещение находится на против магазина Пятерочка.
Возможно деление помещения на блоки.

Технические параметры:
Площадь 121 м2 в 1 уровне (1 этаж).Возможно арендовать площадь больше.
Отдельная входная группа. Свободная планировка. Высота потолков - 4.6 м.
Витринное остекление. Состояние помещения - за выездом арендатора.
Мощность - 70 кВт. Технологическая вытяжка.

Коммерческие условия:
Ставка - 363 000 рублей за все помещение.
Ставка за 1 кв.м. - 3 000 рублей.
Обеспечительный платеж - 1 МАП.
Собственник - физ.лицо. УСН. Прямая аренда.

Технические характеристики

Тип здания: Многофункциональный,С отдельным входом,Торговая,Общепит

Общая площадь: 121  м2

Этаж: 1

Всего этажей: 20

Электрическая мощность: 40

Высота потолков: 4.6

Парковка: Нет

Коммерческие условия

Цена в месяц: 363 000 RUB

ФОРМА ВЛАДЕНИЯ: Собственность

карта

Расположение

Адрес: улица Коминтерна, 15

Округ: Северо-Восточный административный округ

Близость метро: Бабушкинская

Транспортная доступность: Метро Бабушкинская

Окружение

Торговое окружение: Пятерочка,Красное Белое ,Аптека

Адрес:

улица Коминтерна, 15

Округ:

Северо-Восточный административный округ

Близость метро:

Бабушкинская

Транспортная доступность:

Метро Бабушкинская

карта

Торговое окружение:

Пятерочка,Красное Белое ,Аптека

Общая площадь:

121  м2

Этаж:

1

Всего этажей:

20

Тип:

Многофункциональный,С отдельным входом,Торговая,Общепит

Электрическая мощность:

40

Высота потолков:

4.6

Парковка:

Нет

ФОРМА ВЛАДЕНИЯ:

Собственность

Цена в месяц:

363 000 RUB

Планировка

Гринь Алексей

Ваш брокер по работе с клиентами

Найдите лучшее место
для жизни, бизнеса, инвестиций

Оставьте свои контакты — с вами свяжется руководитель отдела для презентации нужного вам объекта

Похожие объекты