Id 149092

Нижняя Красносельская, 5 стр. 1 - 241 кв.м. / Продажа ПСН

адрес Нижняя Красносельская, 5 стр. 1

Многофункциональный
С отдельным входом
Общепит

170 000 000 RUB | за все

(за 1 м2 — 705 394 RUB)

площадь 241.0 м2

QR код Qr код

Продажа помещения в свободного назначения на первой линии улицы Красносельская в 2-х минутах пешком от метро. Помещение в окружении Бизнес центров, рядом Площадь Трех Вокзалов.

Технические характеристики:
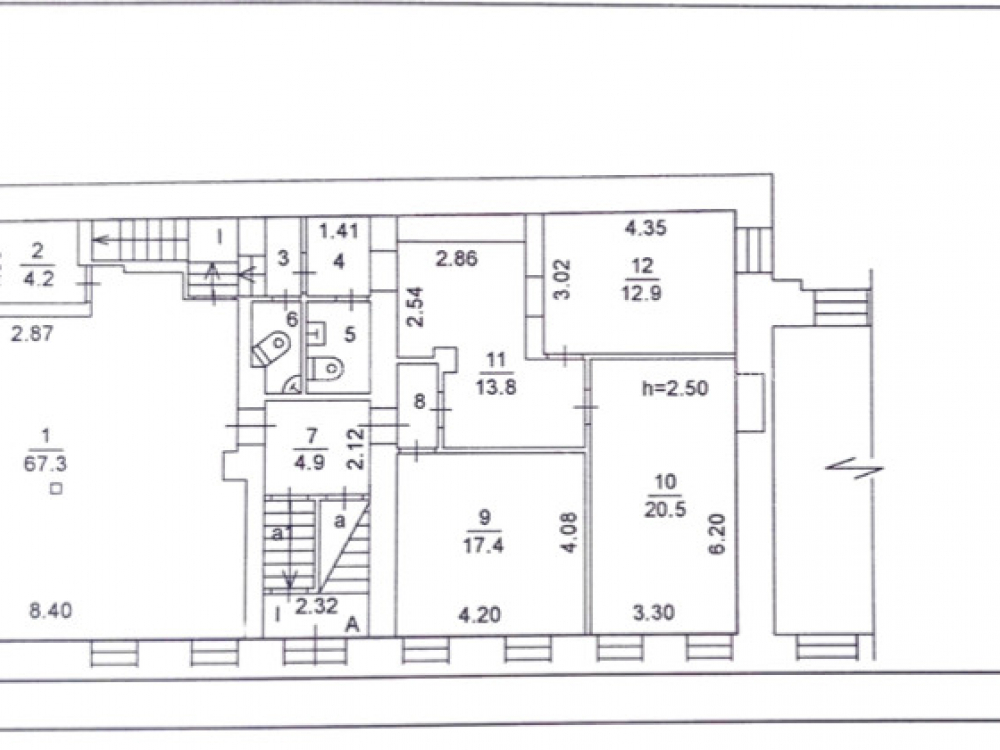
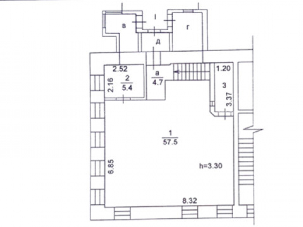
Площадь помещения - 241м2; на 1 этаже - 69м2; цоколь - 156м2. Также 2 павильона при входе площадью. 4м2 и 5м2. Не жилое здание. Открытая планировка, окна, парковка рядом с помещением. Высота потолков 3,3м выделенная электрическая мощность - 50 кВт. Помещение в двух уровнях.

Назначение помещения: ПСН, Общепит , торговое.

Коммерческие условия:
Стоимость - 170 000 000 рублей;
Стоимость за 1 кв.м.- 705 400 рублей;
Форма сделки ДКП
Условия сделки обсуждаются на переговорах.

Технические характеристики

Тип здания: Многофункциональный,С отдельным входом,Общепит

Общая площадь: 241  м2

Этаж: 1

Всего этажей: 3

Электрическая мощность: 50кВт

Высота потолков: 4-5м

Парковка: рядом с помещением

Коммерческие условия

Цена за все: 170 000 000 RUB

ФОРМА ВЛАДЕНИЯ: УСН

карта

Расположение

Адрес: Нижняя Красносельская, 5 стр. 1

Округ: Центральный административный округ

Близость метро: Красносельская

Транспортная доступность: 1 минута пешком от метро Красносельская

Окружение

Торговое окружение: Инфраструктура, включающая в себя банки, рестораны, кофейни;

Адрес:

Нижняя Красносельская, 5 стр. 1

Округ:

Центральный административный округ

Близость метро:

Красносельская

Транспортная доступность:

1 минута пешком от метро Красносельская

карта

Торговое окружение:

Инфраструктура, включающая в себя банки, рестораны, кофейни;

Общая площадь:

241  м2

Этаж:

1

Всего этажей:

3

Тип:

Многофункциональный,С отдельным входом,Общепит

Электрическая мощность:

50кВт

Высота потолков:

4-5м

Парковка:

рядом с помещением

ФОРМА ВЛАДЕНИЯ:

УСН

Цена за все:

170 000 000 RUB

Планировка

Назарова Олеся

Ваш брокер по работе с клиентами

Найдите лучшее место
для жизни, бизнеса, инвестиций

Оставьте свои контакты — с вами свяжется руководитель отдела для презентации нужного вам объекта

Похожие объекты