Id 148354

Проспект Мира ул. д. 222к4 - 865.7 кв.м. - Продажа / ПСН в новостройке

адрес Москва, СВАО, Проспект Мира 222

С отдельным входом
Торговая
Жилой комплекс (мфк)
Новостройка

346 280 000 RUB | за все

(за 1 м2 — 400 000 RUB)

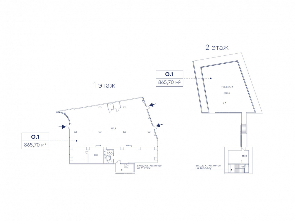
площадь 865.7 м2

QR код Qr код

Продажа помещения свободного назначения в новом многофункциональном ЖК бизнес-класса по адресу: Москва, Проспект Мира д. 222к4. СВАО, район Ярославский. Ближайшая станция метро (МЦК) Ростокино 3 мин. пешком. ЖК Мираполис состоит из 4 жилых башен 33-35 этажей с подземным паркингом. И расположен рядом с ТПУ Ростокино, где сосредоточены потоки транспорта и пешеходов, пересадка с МЦД на МЦК. Ежедневный пассажиропоток через станцию МЦК Ростокино 64 тыс. человек (по данным Метростат).
Торговое окружение: ТРЦ Европолис, гипермаркет Metro, автосалон Атлант-М, Антикор центр.
Ввод в эксплуатацию - 2 квартал 2026г.

Технические характеристики:
Площадь 865.7 кв.м. 1 этаж. Первая линия, отдельный вход. 3 отдельных входа с разных сторон. Витражное остекление. Открытая удобная планировка с большим залом 520,3 кв.м. Состояние помещения в бетоне. Высота потолков 5 м. Центральные коммуникации. Приточно-вытяжная система вентиляции, центральное кондиционирование, система пожаротушения, сигнализация. Выделенная мощность электроэнергии 0.2 Вт на 1 кв.м (с возможностью увеличения). Наличие эксплуатируемой кровли. Городской и подземный паркинг.

Коммерческие условия:
Стоимость объекта: 346 280 000 руб.
Стоимость за 1 кв.м.: 400 000 руб.
Форма собственности: продажа от застройщика.
Форма продажи: по ДДУ.

Технические характеристики

Тип здания: С отдельным входом,Торговая,Жилой комплекс (мфк),Новостройка

Общая площадь: 865.7  м2

Этаж: 1

Всего этажей: 33

Электрическая мощность: 0.2 Вт на 1 кв.м

Высота потолков:

Парковка: городская

Коммерческие условия

Цена за все: 346 280 000 RUB

ФОРМА ВЛАДЕНИЯ: ООО

карта

Расположение

Адрес: Москва, СВАО, Проспект Мира 222

Округ: Северо-Восточный административный округ

Близость метро: ВДНХ,Ростокино

Транспортная доступность: Ближайшая станция метро (МЦК) Ростокино 3 мин. пешком

Окружение

Торговое окружение: ТРЦ Европолис, гипермаркет Metro, автосалон Атлант-М, Антикор центр.

Адрес:

Москва, СВАО, Проспект Мира 222

Округ:

Северо-Восточный административный округ

Близость метро:

ВДНХ,Ростокино

Транспортная доступность:

Ближайшая станция метро (МЦК) Ростокино 3 мин. пешком

карта

Торговое окружение:

ТРЦ Европолис, гипермаркет Metro, автосалон Атлант-М, Антикор центр.

Общая площадь:

865.7  м2

Этаж:

1

Всего этажей:

33

Тип:

С отдельным входом,Торговая,Жилой комплекс (мфк),Новостройка

Электрическая мощность:

0.2 Вт на 1 кв.м

Высота потолков:

Парковка:

городская

ФОРМА ВЛАДЕНИЯ:

ООО

Цена за все:

346 280 000 RUB

Планировка

Воробьев Алексей

Ваш брокер по работе с клиентами

Найдите лучшее место
для жизни, бизнеса, инвестиций

Оставьте свои контакты — с вами свяжется руководитель отдела для презентации нужного вам объекта

Похожие объекты