Id 145792

Москва, САО, Ходынский бульвар, 6/2 (STONE Ходынка 1, Башня H3) - 49.2м2 / Продажа помещения свободного назначения с НДС

адрес Москва, Ходынский бульвар, 6/2

Бизнес центр
С отдельным входом
Торговая

98 892 000 RUB | за все

(за 1 м2 — 2 010 000 RUB)

площадь 49.2 м2

QR код Qr код

Предлагается в продажу помещение свободного назначения в САО по адресу: Москва, Ходынский бульвар, 6/2 (STONE Ходынка 1, Башня H3)
Метро «ЦСКА» и ТЦ «Авиапарк» в 1 минуте пешком.
Офисный квартал состоит из 3 башен высотой от 13 до 23 этажей.
Все основные потоки жителей района, сотрудников бизнес центров, посетителей парков и спортивных арен проходят через
STONE Ходынка-1 и составляют более 72 000 чел./сутки.

Июль 2024 года – получение разрешения на строительство
III кв. 2027 года – строительная готовность

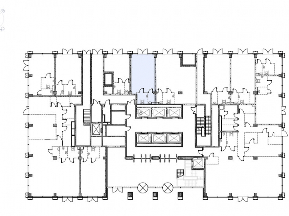
Технические характеристики: помещение площадью 49.2 кв.м., находится на 1 этаже 13-х этажного бизнес центра класса А. Открытая планировка (есть возможность объединения), потолки 4.7м., электроэнергия 0.2 кВт/м2 (есть техническая возможность для увеличения).

Коммерческие условия:
• стоимость объекта: 98 892 000 рублей с НДС
• стоимость объекта за м2: 2 010 000 рублей
• продажа по ДДУ есть рассрочка с первоначальным взносом 10% и более
• собственник юр. лицо продажа с НДС

Технические характеристики

Тип здания: Бизнес центр,С отдельным входом,Торговая

Общая площадь: 49.2  м2

Этаж: 1

Всего этажей: 13

Электрическая мощность: 0,2 кВт на м2

Высота потолков: 4.7м

Парковка: открытая, общая

Коммерческие условия

Цена за все: 98 892 000 RUB

ФОРМА ВЛАДЕНИЯ: ДДУ

карта

Расположение

Адрес: Москва, Ходынский бульвар, 6/2

Близость метро: ЦСКА

Транспортная доступность: Метро «ЦСКА» и ТЦ «Авиапарк» в 1 минуте пешком.

Окружение

Торговое окружение: --

Адрес:

Москва, Ходынский бульвар, 6/2

Округ:

Близость метро:

ЦСКА

Транспортная доступность:

Метро «ЦСКА» и ТЦ «Авиапарк» в 1 минуте пешком.

карта

Торговое окружение:

--

Общая площадь:

49.2  м2

Этаж:

1

Всего этажей:

13

Тип:

Бизнес центр,С отдельным входом,Торговая

Электрическая мощность:

0,2 кВт на м2

Высота потолков:

4.7м

Парковка:

открытая, общая

ФОРМА ВЛАДЕНИЯ:

ДДУ

Цена за все:

98 892 000 RUB

Планировка

Александр Невский

Ваш брокер по работе с клиентами

Найдите лучшее место
для жизни, бизнеса, инвестиций

Оставьте свои контакты — с вами свяжется руководитель отдела для презентации нужного вам объекта

Похожие объекты