Id 145780

Москва, САО, Ходынский бульвар, 6/2 (STONE Ходынка 1, Башня H2) - 47.98м2 / Продажа ПСН с НДС

адрес Ходынский бульвар, 10

Бизнес центр
С отдельным входом
Торговая

105 859 000 RUB | за все

(за 1 м2 — 2 210 000 RUB)

площадь 47.9 м2

QR код Qr код

Предлагается в продажу ПСН в САО по адресу: Москва, Ходынский бульвар, 6/2 (STONE Ходынка 1, Башня H2)
Метро «ЦСКА» и ТЦ «Авиапарк» в 1 минуте пешком.
Офисный квартал состоит из 3 башен высотой от 13 до 23 этажей.
Все основные потоки жителей района, сотрудников бизнес центров, посетителей парков и спортивных арен проходят через
STONE Ходынка-1 и составляют более 72 000 чел./сутки.

Июль 2024 года – получение разрешения на строительство
III кв. 2027 года – строительная готовность

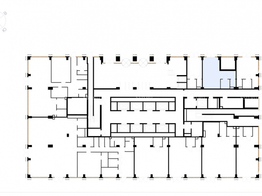
Технические характеристики: помещение площадью 47.9 кв.м., находится на 1 этаже 18-х этажного бизнес центра класса А, отдельный вход с фасада, по левую руку от центрального входа в лобби БЦ. Открытая планировка (есть возможность объединения), потолки 4.6м., электроэнергия 0.2 кВт/м2 (есть техническая возможность для увеличения).

Коммерческие условия:
• стоимость объекта: 105 859 000 рублей
• стоимость объекта за м2: 2 210 000 рублей
• продажа по ДДУ есть рассрочка с первоначальным взносом 10% и более
• собственник юр. лицо, продажа с НДС

Технические характеристики

Тип здания: Бизнес центр,С отдельным входом,Торговая

Общая площадь: 47.9  м2

Этаж: 1

Всего этажей: 18

Электрическая мощность: 0,2 кВт на м2

Высота потолков: 4.6м

Парковка: открытая, общая

Коммерческие условия

Цена за все: 105 859 000 RUB

ФОРМА ВЛАДЕНИЯ: ДДУ

карта

Расположение

Адрес: Ходынский бульвар, 10

Близость метро: ЦСКА

Транспортная доступность: Метро «ЦСКА» и ТЦ «Авиапарк» в 1 минуте пешком.

Окружение

Торговое окружение: -

Адрес:

Ходынский бульвар, 10

Округ:

Близость метро:

ЦСКА

Транспортная доступность:

Метро «ЦСКА» и ТЦ «Авиапарк» в 1 минуте пешком.

карта

Торговое окружение:

-

Общая площадь:

47.9  м2

Этаж:

1

Всего этажей:

18

Тип:

Бизнес центр,С отдельным входом,Торговая

Электрическая мощность:

0,2 кВт на м2

Высота потолков:

4.6м

Парковка:

открытая, общая

ФОРМА ВЛАДЕНИЯ:

ДДУ

Цена за все:

105 859 000 RUB

Планировка

Никифоров Андрей

Ваш брокер по работе с клиентами

Найдите лучшее место
для жизни, бизнеса, инвестиций

Оставьте свои контакты — с вами свяжется руководитель отдела для презентации нужного вам объекта

Похожие объекты