Id 143893

Москва, ул. Барклая 6/ 192.5 м2/ Продажа ПСН

адрес Москва, ЗАО, улица Барклая, 6Ак1

С отдельным входом
Торговая

129 000 000 RUB | за все

(за 1 м2 — 670 130 RUB)

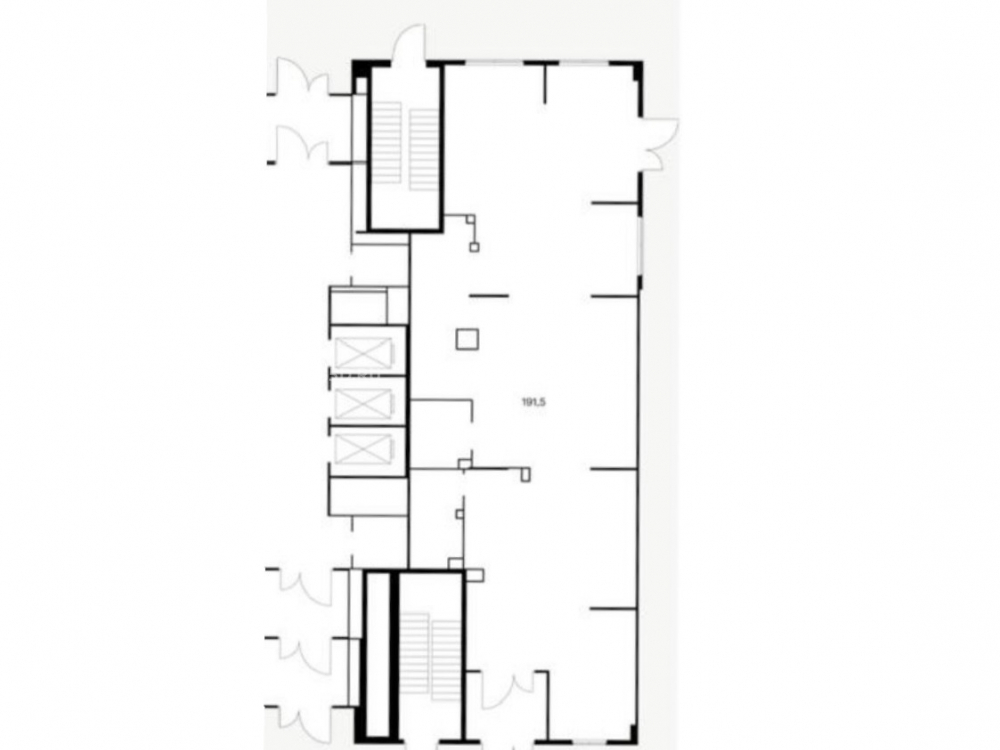
площадь 192.5 м2

QR код Qr код

Продажа нежилого помещения в ЖК "Барклая 6", расположенного по адресу: Москва, ул. Барклая, 6А, корп. 1, площадью 192.5 м2. Престижный ЗАО. Доступность всеми видами транспорта. Метро Багратионовская в шаговой доступности, Парк Победы - 10 минут пешком. Окружение - жилые комплексы бизнес-класса, бизнес центры класса , огромный спальный массив района "Фили". ЖК комфорт класса "Барклая 6" - количество квартир 1720. Дом введен в эксплуатацию.
Технические параметры:
1 этаж, площадью 192.5 м2, отдельный вход с первой линии, дополнительный со двора. Высота потолков 4 м, витринные окна, количество электроэнергии 40 кВт. Под помещением технические помещения, не паркинг.

Коммерческие условия:
Стоимость объекта: 129 000 000 рублей, УСН.
Стоимость объекта за м2: 671 875 рублей.

Технические характеристики

Тип здания: С отдельным входом,Торговая

Общая площадь: 192.5  м2

Этаж: 1

Всего этажей: 24

Электрическая мощность: 40

Высота потолков: 4

Парковка: -

Коммерческие условия

Цена за все: 129 000 000 RUB

ФОРМА ВЛАДЕНИЯ: -

карта

Расположение

Адрес: Москва, ЗАО, улица Барклая, 6Ак1

Округ: Западный административный округ

Близость метро: Багратионовская

Транспортная доступность: -

Окружение

Торговое окружение: -

Адрес:

Москва, ЗАО, улица Барклая, 6Ак1

Округ:

Западный административный округ

Близость метро:

Багратионовская

Транспортная доступность:

-

карта

Торговое окружение:

-

Общая площадь:

192.5  м2

Этаж:

1

Всего этажей:

24

Тип:

С отдельным входом,Торговая

Электрическая мощность:

40

Высота потолков:

4

Парковка:

-

ФОРМА ВЛАДЕНИЯ:

-

Цена за все:

129 000 000 RUB

Планировка

Инна Васильева

Ваш брокер по работе с клиентами

Найдите лучшее место
для жизни, бизнеса, инвестиций

Оставьте свои контакты — с вами свяжется руководитель отдела для презентации нужного вам объекта

Похожие объекты