Id 143551

г. Москва, Скандинавский бульвар, 23к1 - 96.7 кв. м. - Продажа ПСН.

адрес Скандинавский бульвар, 23к1

Многофункциональный
С отдельным входом
Торговая

20 000 000 RUB | за все

(за 1 м2 — 206 825 RUB)

площадь 96.7 м2

QR код Qr код

В продажу предлагается помещение свободного назначения по адресу: г. Москва, НАО, поселение Сосенское, Скандинавский бульвар, 23к1. Рядом открытие новой станции метро - Потапово, от которой 15 минут пешком. Густонаселенный район ЖК «Скандинавия», большой пешеходный трафик. Дом полностью заселен.
Торговое окружение: В этом доме находится магазин продуктов Магнит, Магнит-Косметик, пункт выдачи Ozon, Яндекс Маркет, пиццерия Pizza Done, суши – бар Bandzai, супермаркет ВкусВилл, магазин цветов Фиалка, магазин алкогольных напитков Красное&Белое, магазин пива Крышечка, кофейня Coffee Moose, магазин посуды.

Торговое окружение:
КБ, Магнит Косметик.

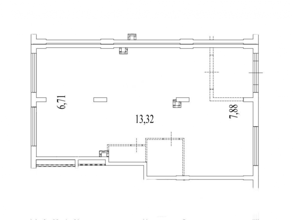
Технические характеристики: Помещение общей площадью – 96.7 кв. м., 1 этаж, отдельный вход, витринное остекление, высокие потолки – 5,7 м., электрическая мощность – 18 кВт. Все центральные коммуникации. Место для рекламной вывески. Парковка.

Коммерческие условия:
Стоимость объекта – 20 00 000 рублей.
Стоимость за 1 кв.м. - 208 333 рублей.

Технические характеристики

Тип здания: Многофункциональный,С отдельным входом,Торговая

Общая площадь: 96.7  м2

Этаж: 1

Всего этажей: 14

Электрическая мощность: 15 кВт

Высота потолков: 5,7

Парковка: Наземная

Коммерческие условия

Цена за все: 20 000 000 RUB

ФОРМА ВЛАДЕНИЯ: Физ. лицо

карта

Расположение

Адрес: Скандинавский бульвар, 23к1

Близость метро: Бульвар Адмирала Ушакова,Бунинская аллея,Улица Горчакова

Транспортная доступность: -

Окружение

Торговое окружение: -

Адрес:

Скандинавский бульвар, 23к1

Округ:

Близость метро:

Бульвар Адмирала Ушакова,Бунинская аллея,Улица Горчакова

Транспортная доступность:

-

карта

Торговое окружение:

-

Общая площадь:

96.7  м2

Этаж:

1

Всего этажей:

14

Тип:

Многофункциональный,С отдельным входом,Торговая

Электрическая мощность:

15 кВт

Высота потолков:

5,7

Парковка:

Наземная

ФОРМА ВЛАДЕНИЯ:

Физ. лицо

Цена за все:

20 000 000 RUB

Планировка

Шаклеина Юлия

Ваш брокер по работе с клиентами

Найдите лучшее место
для жизни, бизнеса, инвестиций

Оставьте свои контакты — с вами свяжется руководитель отдела для презентации нужного вам объекта

Похожие объекты