Id 142809

Проезд Шелихова, д. 1к2 – 181.4 кв.м – Аренда / Помещение под общепит

адрес Москва, проезд Шелихова, 1к2

С отдельным входом
Торговая
Общепит

650 000 RUB | в месяц

(за 1 м2 — 3 583 RUB)

площадь 181.4 м2

QR код Qr код

Аренда торгового помещения под общепит по адресу: г.Москва, Проезд Шелихова, 1к2. ЮВАО, район Лефортово. Ближайшая станция метро Площадь Ильича и ЖД платформа Серп и молот - 5 минут пешком. Жилой квартал Символ, один из масштабных проектов в истории компании ДОНСТРОЙ и представляет собой большой современный городской квартал. ЖК находится на границе с ЦАО, в проекте строительства 24 корпуса, этажностью от 3 до 28 этажей.
Торговое окружение: ДоДо пицца, Азбука вкуса, аптека 36.6, пекарня.

Технические характеристики:
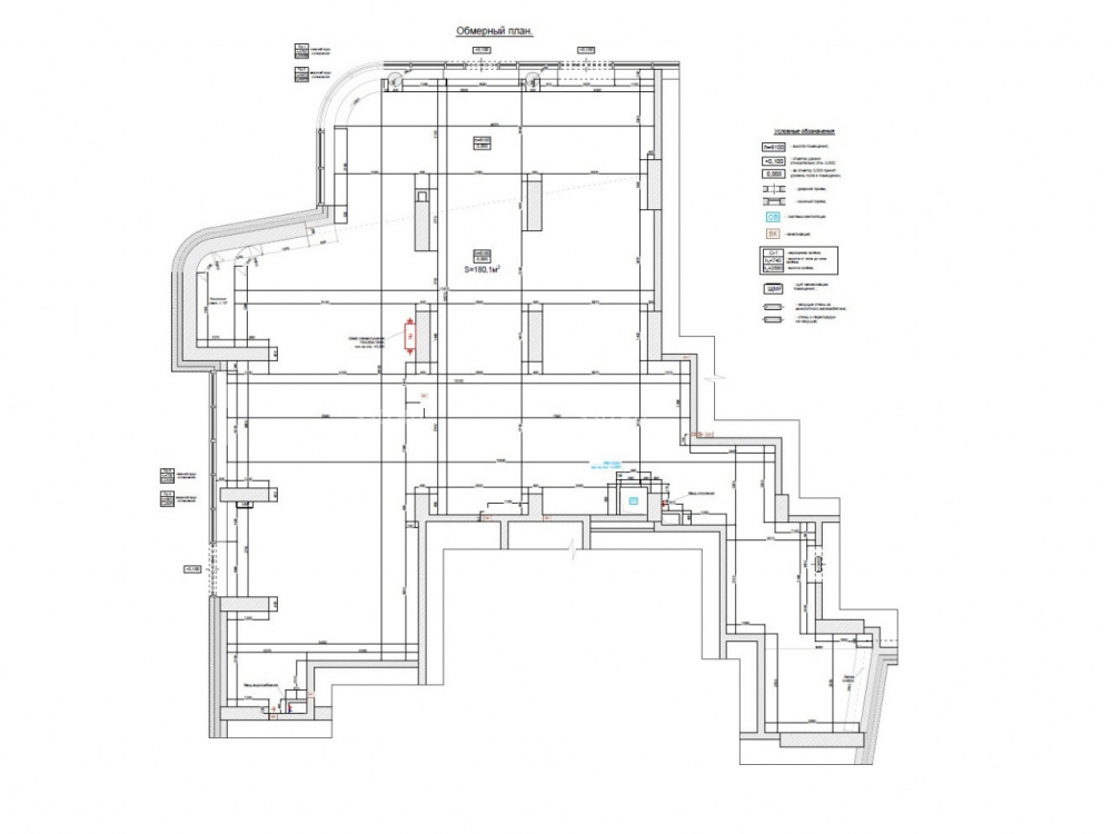
Общая площадь 181.4 кв.м. Техническое назначение помещения под "КАФЕ". 1 этaж, 13-этажной секции жилого дoмa. Помещение в одном уровне. 3 отдельных входа (одно с внутреннего двора, остальные два с лицевой стороны здания). Открытая планировка, угловое. Панорамное остекление. Потолки 6м (возможно сделать полноценный 2-й этаж или антресоль). Состояние помещения в бетоне. Все инженерные коммуникации центральные. Технологическая вытяжка под общепит. Выделенная мощность электроэнергии 115 кВт. Все коммуникации центральные.

Коммерческие условия:
Ставка аренды в месяц - 650 000 руб. с НДС
Ставка за 1 кв.м в месяц- 3 583 руб.
Коммунальные и эксплуатационные платежи оплачиваются отдельно.
Прямая аренда. Долгосрочный договор.

Технические характеристики

Тип здания: С отдельным входом,Торговая,Общепит

Общая площадь: 181.4  м2

Этаж: 1

Всего этажей: 9

Электрическая мощность: 100 кВт

Высота потолков:

Парковка: Городская

Коммерческие условия

Цена в месяц: 650 000 RUB

ФОРМА ВЛАДЕНИЯ: ИП

карта

Расположение

Адрес: Москва, проезд Шелихова, 1к2

Округ: Юго-Восточный административный округ

Близость метро: Площадь Ильича,Римская

Транспортная доступность: 5 минут пешком от м.Площадь Ильича

Окружение

Торговое окружение: ДоДо пицца, Азбука вкуса, аптека 36.6, пекарня.

Адрес:

Москва, проезд Шелихова, 1к2

Округ:

Юго-Восточный административный округ

Близость метро:

Площадь Ильича,Римская

Транспортная доступность:

5 минут пешком от м.Площадь Ильича

карта

Торговое окружение:

ДоДо пицца, Азбука вкуса, аптека 36.6, пекарня.

Общая площадь:

181.4  м2

Этаж:

1

Всего этажей:

9

Тип:

С отдельным входом,Торговая,Общепит

Электрическая мощность:

100 кВт

Высота потолков:

Парковка:

Городская

ФОРМА ВЛАДЕНИЯ:

ИП

Цена в месяц:

650 000 RUB

Планировка

Воробьев Алексей

Ваш брокер по работе с клиентами

Найдите лучшее место
для жизни, бизнеса, инвестиций

Оставьте свои контакты — с вами свяжется руководитель отдела для презентации нужного вам объекта

Похожие объекты