Id 139437

Виктора Маслова ул., д. 2к6 - 142.4 кв.м. - Аренда / Торговое помещение под общепит

адрес Москва, улица Виктора Маслова, 2

С отдельным входом
Торговая
Общепит
Жилой комплекс (мфк)

490 000 RUB | в месяц

(за 1 м2 — 3 441 RUB)

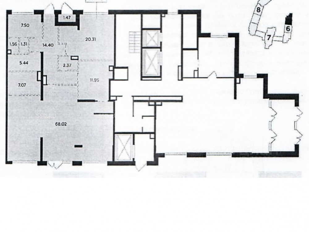
площадь 142.4 м2

QR код Qr код

Аренда торгового помещения под общепит, в новом ЖК бизнес-класса RiverSky по адресу: Москва, Виктора Маслова ул., д. 2к6. ЮАО, район Даниловский. ЖК RiverSky, расположен на набережной Москвы-реки, состоит из 8 корпусов переменной этажности до 27 этажей. Современная архитектура квартала, с видами на набережную и панораму Москвы. Сдан, заселён в 2023 г.
Окружение: ЖК Foriver, культурный центр ЗИЛ, ТЦ Оранж парк, ТЦ Roomer, бизнес-центры: Симонов плаза, Слободской, Омега-плаза, напротив заканчивается строительство стадиона Торпедо (им. Стрельцова).
Торговое окружение: Магнит, аптека Ригла, 4hands, PandaClub, Стойхозмаг, Яндек маркет, Доктор бьюти, Озон, WB.

Технические характеристики:
Общая площадь 142.4 кв.м. 1 этаж, 21 этажной секции жилого дома. 2 отдельных входа (с улицы и с закрытого двора). Витринное остекление. Открытая планировка. Состояние помещения за выездом арендатора. Высота потолков 5.6 м. Возможно увеличение площади до 200 кв.м за счет возведения антресоли. Назначение помещения - кафе. Технологическая вытяжка под общепит, установлена система жироуловителя, место под вывеску на фасаде. Выделенная мощность электроэнергии 43 кВт. Гостевой и городской паркинг.

Коммерческие условия:
Ставка аренды в месяц - 490 000 руб.
Ставка за 1 кв.м в мес. - 3 451 руб.
Коммунальные платежи оплачиваются арендатором отдельно.
Обеспечительный платеж 1 месяц.
Арендные каникулы по договоренности.
Прямой долгосрочный договор.

Технические характеристики

Тип здания: С отдельным входом,Торговая,Общепит,Жилой комплекс (мфк)

Общая площадь: 142.4  м2

Этаж: 1

Всего этажей: 27

Электрическая мощность: 43 кВт

Высота потолков: 5.6м

Парковка: Городская

Коммерческие условия

Цена в месяц: 490 000 RUB

ФОРМА ВЛАДЕНИЯ: ИП

карта

Расположение

Адрес: Москва, улица Виктора Маслова, 2

Округ: Южный административный округ

Близость метро: Автозаводская (Замоскворецкая),Автозаводская (МЦК)

Транспортная доступность: 10 мин. пешком от м.Автозаводская

Окружение

Торговое окружение: Магнит, аптека Ригла, 4hands, PandaClub, Стойхозмаг, Яндек маркет, Доктор бьюти, Озон, WB.

Адрес:

Москва, улица Виктора Маслова, 2

Округ:

Южный административный округ

Близость метро:

Автозаводская (Замоскворецкая),Автозаводская (МЦК)

Транспортная доступность:

10 мин. пешком от м.Автозаводская

карта

Торговое окружение:

Магнит, аптека Ригла, 4hands, PandaClub, Стойхозмаг, Яндек маркет, Доктор бьюти, Озон, WB.

Общая площадь:

142.4  м2

Этаж:

1

Всего этажей:

27

Тип:

С отдельным входом,Торговая,Общепит,Жилой комплекс (мфк)

Электрическая мощность:

43 кВт

Высота потолков:

5.6м

Парковка:

Городская

ФОРМА ВЛАДЕНИЯ:

ИП

Цена в месяц:

490 000 RUB

Планировка

Воробьев Алексей

Ваш брокер по работе с клиентами

Найдите лучшее место
для жизни, бизнеса, инвестиций

Оставьте свои контакты — с вами свяжется руководитель отдела для презентации нужного вам объекта

Похожие объекты