Id 136313

г. Королев, Академика Легостаева, 8 / 309 м² / Арендный бизнес - Фикс Прайс

адрес Королёв, улица Академика Легостаева, 8

Арендный бизнес
Торговая

Окупаемость: 11.3 лет

Доходность:8.82%

29 900 000 RUB | за все

(за 1 м2 — 96 514 RUB)

площадь 309.8 м2

QR код Qr код

Продажа помещения с арендатором Смешные цены, расположенного по адресу: МО, г. Королев Академика Легостаева 8 в элитном ЖК Парад планет.
Все дома заселены. Богатая инфраструктура. Имеется парковка для покупателей. Высокий трафик обеспечивается близость к учебным заведениям, пешеходным переходам, зоне отдыха.

Торговое окружение:
Яндекс Маркет, Четыре лапы.


Технические характеристики:
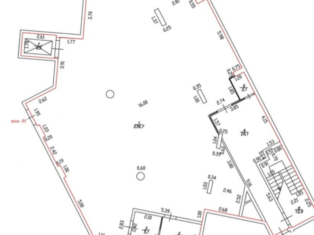
Помещение 309,8 м², расположено на 1 этаже торговой галереи 11-этажного жилого дома. Высота потолка 3,2 м., свободная планировка, место для вывески, высокий рекламный потенциал и посещаемость. Эл. мощность 93,7 кВт. Первая линия, отдельный вход, парковка для покупателей. Вентиляция, кондиционирование, пожарная сигнализация.

Коммерческие условия:
Стоимость объекта 29 900 000 рублей, НДС не облагается (УСН);
Цена за 1 м² 96 793 рублей, НДС не облагается (УСН);
МАП 220 400 рублей / ГАП 2 644 800 рублей;
Окупаемость 11,3 лет / Доходность 8,37 % годовых.

Технические характеристики

Тип здания: Арендный бизнес,Торговая

Общая площадь: 309.8  м2

Этаж: -1

Всего этажей: 11

Электрическая мощность: 95

Высота потолков: 3.2

Парковка: Городская

Коммерческие условия

Цена за все: 29 900 000 RUB

ФОРМА ВЛАДЕНИЯ: Юр. лицо

Общий МАП: 220 400 RUB (данный МАП является минимальным, при оптимизации арендаторов арендный поток можно значительно увеличить)

Общий ГАП: 2 644 800 RUB

Окупаемость: 11.3 лет

Доходность: 8.82%

карта

Расположение

Адрес: Королёв, улица Академика Легостаева, 8

Округ: Юго-Восточный административный округ

Близость метро: Выхино

Транспортная доступность: Развитая транспортная инфраструктура

Окружение

Торговое окружение: Сложившееся

Адрес:

Королёв, улица Академика Легостаева, 8

Округ:

Юго-Восточный административный округ

Близость метро:

Выхино

Транспортная доступность:

Развитая транспортная инфраструктура

карта

Торговое окружение:

Сложившееся

Общая площадь:

309.8  м2

Этаж:

-1

Всего этажей:

11

Тип:

Арендный бизнес,Торговая

Электрическая мощность:

95

Высота потолков:

3.2

Парковка:

Городская

ФОРМА ВЛАДЕНИЯ:

Юр. лицо

Цена за все:

29 900 000 RUB

Общий МАП: 220 400

(данный МАП является минимальным, при оптимизации арендаторов арендный поток можно значительно увеличить)

Общий ГАП:

2 644 800

Окупаемость:

11.3 лет

Доходность:

8.82%

Планировка

Шаклеина Юлия

Ваш брокер по работе с клиентами

Найдите лучшее место
для жизни, бизнеса, инвестиций

Оставьте свои контакты — с вами свяжется руководитель отдела для презентации нужного вам объекта

Похожие объекты