Id 20920

Проспект Мира, 57 - 363.9 кв.м / Продажа Готового Арендного Бизнеса

адрес Москва, Проспект Мира, 57с1

Арендный бизнес
С отдельным входом
Торговая

Окупаемость: 16.8 лет

Доходность:5.97%

180 000 000 RUB | за все

(за 1 м2 — 494 641 RUB)

площадь 363.9 м2

QR код Qr код

Предлагается Готовый Арендный Бизнес. Арендатор - сеть продуктовых магазинов "Магнолия". Торговое помещение расположено в 7-ти минутах ходьбы (350 метров по прямой) от метро Проспект Мира.
Первая линия домов, высокий пешеходный и автомобильный трафики. Жилой массив с высокой покупательской способностью. Развитая инфраструктура района. Удобная транспортная доступность: с Садового кольца и ТТК.

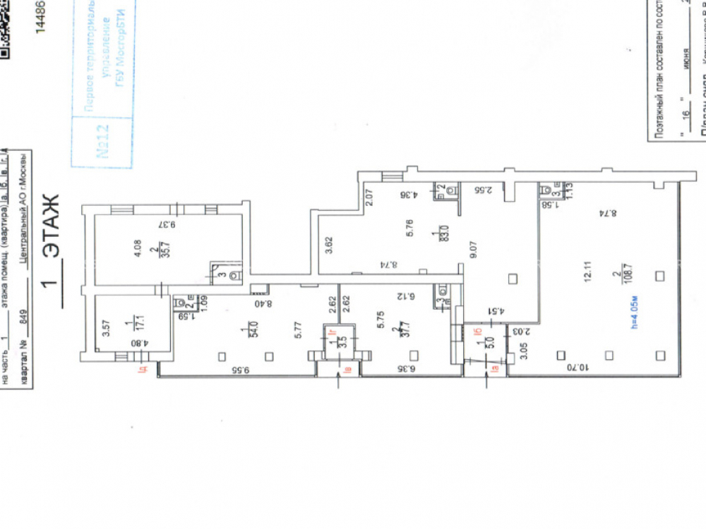
Технические характеристики помещения: 1-й этаж 9-ти этажного жилого дома. Общая площадь - 363.9 кв.м. (в одном уровне).
Три фасадных входа. Дополнительные входы со двора. Несколько мокрых точек.
Витринное остекление во всю высоту фасада. Место для рекламной вывески. Помещение отлично визуализируется с пешеходного тротуара и проезжей части.
Зальная планировка. Высота потолков - 4 м. Центральные коммуникации. Электрическая мощность 100 кВт.

Действующий арендатор - Магнолия. Алкогольная лицензия получена.
Долгосрочный договор от 29.11.2021 г. на 8 лет. МАП 8% от ТО, но не менее 900 000 рублей.

Коммерческие условия:
Стоимость - 180 000 000 рублей;
Стоимость за 1 кв.м. - 494 641 рубль;
Коммунальные услуги арендатором оплачиваются отдельно;
Форма собственности юр. лицо, УСН.

Технические характеристики

Тип здания: Арендный бизнес,С отдельным входом,Торговая

Общая площадь: 363.9  м2

Этаж: 1

Всего этажей: 9

Электрическая мощность: 100 кВт

Высота потолков: 4 м

Парковка: Стихийная

Коммерческие условия

Цена за все: 180 000 000 RUB

ФОРМА ВЛАДЕНИЯ: Частная

Общий МАП: 900 000 RUB (данный МАП является минимальным, при оптимизации арендаторов арендный поток можно значительно увеличить)

Общий ГАП: 10 800 000 RUB

Окупаемость: 16.8 лет

Доходность: 5.97%

карта

Расположение

Адрес: Москва, Проспект Мира, 57с1

Округ: Центральный административный округ

Близость метро: Проспект Мира

Транспортная доступность: в 7-ти минутах ходьбы (350 метров по прямой) от метро Проспект Мира.

Окружение

Торговое окружение: развитое торговое окружение

Адрес:

Москва, Проспект Мира, 57с1

Округ:

Центральный административный округ

Близость метро:

Проспект Мира

Транспортная доступность:

в 7-ти минутах ходьбы (350 метров по прямой) от метро Проспект Мира.

карта

Торговое окружение:

развитое торговое окружение

Общая площадь:

363.9  м2

Этаж:

1

Всего этажей:

9

Тип:

Арендный бизнес,С отдельным входом,Торговая

Электрическая мощность:

100 кВт

Высота потолков:

4 м

Парковка:

Стихийная

ФОРМА ВЛАДЕНИЯ:

Частная

Цена за все:

180 000 000 RUB

Общий МАП: 900 000

(данный МАП является минимальным, при оптимизации арендаторов арендный поток можно значительно увеличить)

Общий ГАП:

10 800 000

Окупаемость:

16.8 лет

Доходность:

5.97%

Планировка

Николай

Ваш брокер по работе с клиентами

Найдите лучшее место
для жизни, бизнеса, инвестиций

Оставьте свои контакты — с вами свяжется руководитель отдела для презентации нужного вам объекта

Похожие объекты