Id 19325

Средний Каретный переулок д. 7 - 950.6 м² - Продажа особняка с арендатором

адрес Москва, Средний Каретный пер, д 7

Арендный бизнес
Многофункциональный
Особняк/здание
Офис
Общепит

Окупаемость: 11.9 лет

Доходность:8.39%

500 000 000 RUB | за все

(за 1 м2 — 525 984 RUB)

площадь 950.6 м2

QR код Qr код

Здание расположено в Тверском районе Центрального административного округа города Москвы. Станции метро Цветной Бульвар, Чеховская и Трубная находятся в пешей доступности от особняка. Ближайшая остановка наземного общественного транспорта "Сад Эрмитаж". Удобная транспортная доступность: рядом пролегают улица Каретный Ряд, Средний Каретный переулок и Большой Каретный переулок. Развитая инфраструктура вокруг, все необходимое в шаговой доступности. Удобное расположение особняка, в 7 минутах пешком от м. Цветной бульвар. Участок 7.5 соток, аренда на 49 лет с 2021 года. Капительный ремонт 2022 г.

Технические параметры:
Общая площадь - 950.6 кв. м.
Особняк свободного назначения, подходит под представительский офис, мед клинику, банк ,ресторан и т.д.
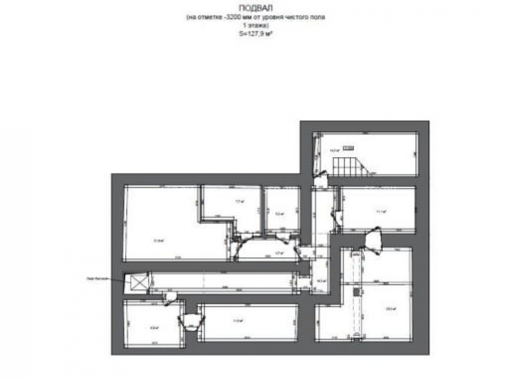
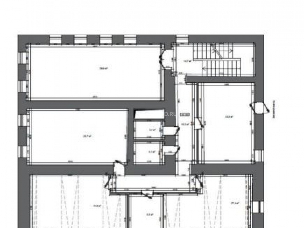
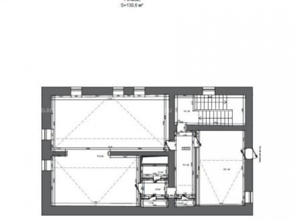
Особняк включает в себя 4 этажа, а также подвал с помещением с противопожарной дверью.
Система вентиляции приточно-вытяжная
Система кондиционирования сплит-система
Система видеонаблюдения круглосуточная
Высота потолков 2,8 м
Имеет кабинетную планировку, open space, кабинет руководителя с личным с/у, душевой и зоной отдыха; сан/узлы на каждом этаже, душевые, произведен демонтаж прошлой отделки.
Интернет провайдер: Мосинтер Билайн Мегафон МГТС
Внутренний двор на 6 машиномест
Подвал имеет функциональное назначение: кухня с мокрой точкой , тепловой пункт и вся система вентиляции.

Коммерческие условия:
Стоимость объекта - 500 000 000 рублей с НДС
Стоимость за кв. м. - 525 983 рублей с НДС
МАП: 3 500 000 рублей . Арендатор гос. компания.
Условия сделки обсуждаются на переговорах.

Технические характеристики

Тип здания: Арендный бизнес,Многофункциональный,Особняк/здание,Офис,Общепит

Общая площадь: 950.6  м2

Этаж: 1

Всего этажей: 4

Электрическая мощность: 50

Высота потолков: 3-4

Парковка: да

Коммерческие условия

Цена за все: 500 000 000 RUB

ФОРМА ВЛАДЕНИЯ: 000

Общий МАП: 3 500 000 RUB (данный МАП является минимальным, при оптимизации арендаторов арендный поток можно значительно увеличить)

Общий ГАП: 42 000 000 RUB

Окупаемость: 11.9 лет

Доходность: 8.39%

карта

Расположение

Адрес: Москва, Средний Каретный пер, д 7

Округ: Центральный административный округ

Близость метро: Трубная,Цветной бульвар,Чеховская

Транспортная доступность: да

Окружение

Торговое окружение: да

Адрес:

Москва, Средний Каретный пер, д 7

Округ:

Центральный административный округ

Близость метро:

Трубная,Цветной бульвар,Чеховская

Транспортная доступность:

да

карта

Торговое окружение:

да

Общая площадь:

950.6  м2

Этаж:

1

Всего этажей:

4

Тип:

Арендный бизнес,Многофункциональный,Особняк/здание,Офис,Общепит

Электрическая мощность:

50

Высота потолков:

3-4

Парковка:

да

ФОРМА ВЛАДЕНИЯ:

000

Цена за все:

500 000 000 RUB

Общий МАП: 3 500 000

(данный МАП является минимальным, при оптимизации арендаторов арендный поток можно значительно увеличить)

Общий ГАП:

42 000 000

Окупаемость:

11.9 лет

Доходность:

8.39%

Планировка

Инна Васильева

Ваш брокер по работе с клиентами

Найдите лучшее место
для жизни, бизнеса, инвестиций

Оставьте свои контакты — с вами свяжется руководитель отдела для презентации нужного вам объекта

Похожие объекты