Id 17250

г. Мсоква, ул. Академика Виноградова, 4к1/ 68 кв.м./ Продажа торгового помещения с арендаторами ОЗОН,Wildberries

адрес Москва, Академика Виноградова, 4к1

Арендный бизнес
С отдельным входом
Торговая

Окупаемость: 10.3 лет

Доходность:9.68%

27 270 000 RUB | за все

(за 1 м2 — 401 029 RUB)

площадь 68.0 м2

QR код Qr код

Предлагается в продажу торговое помещение с арендаторами, общей площадью: 68 м2, в ЮЗАО г. Москве по адресу: Академика Виноградова, 4к1.
Густонаселенный район.

Ближайшие станции метро: м. "Теплый Стан"- 10 минут на транспорте, м. "Тропарёво"

Технические характеристики:
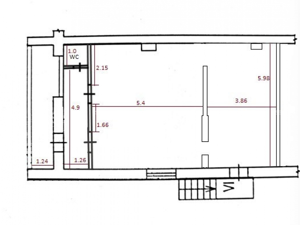
Общая площадь: 68 м2.
Высота потолков: 2.65 м.
Выделенная электрическая мощность: 15 кВт.
1-й этаж 14-ти этажного жилого дома.
Отдельный вход.
Окна по фасаду, отличный рекламный потенциал.
Парковка стихийная.

Коммерческие условия:
Стоимость продажи: 27 270 000 рублей.
МАП 220 000 рублей/ ГАП 2 640 000 рублей
Окупаемость: 10,3 года
Арендаторы: Озон, Wildberries (франшиза), договор аренды на 3 года от марта 2025 года
Безусловная индексация арендной ставки 10% в год
Продажа по ДКПН от физ лица

Технические характеристики

Тип здания: Арендный бизнес,С отдельным входом,Торговая

Общая площадь: 68  м2

Этаж: 1

Всего этажей: 14

Электрическая мощность: 15 кВт

Высота потолков: 2.65

Парковка: есть

Коммерческие условия

Цена за все: 27 270 000 RUB

ФОРМА ВЛАДЕНИЯ: собственность

Окупаемость: 10.3 лет

Доходность: 9.68%

карта

Расположение

Адрес: Москва, Академика Виноградова, 4к1

Округ: Юго-Западный административный округ

Близость метро: Генерала Тюленева,Тёплый стан,Тропарёво

Транспортная доступность: отличная

Окружение

Торговое окружение: развитое

Адрес:

Москва, Академика Виноградова, 4к1

Округ:

Юго-Западный административный округ

Близость метро:

Генерала Тюленева,Тёплый стан,Тропарёво

Транспортная доступность:

отличная

карта

Торговое окружение:

развитое

Общая площадь:

68  м2

Этаж:

1

Всего этажей:

14

Тип:

Арендный бизнес,С отдельным входом,Торговая

Электрическая мощность:

15 кВт

Высота потолков:

2.65

Парковка:

есть

ФОРМА ВЛАДЕНИЯ:

собственность

Цена за все:

27 270 000 RUB

Окупаемость:

10.3 лет

Доходность:

9.68%

Планировка

Александр Невский

Ваш брокер по работе с клиентами

Найдите лучшее место
для жизни, бизнеса, инвестиций

Оставьте свои контакты — с вами свяжется руководитель отдела для презентации нужного вам объекта

Похожие объекты