Id 16923

Пожарский пер., 15с2 / 286 кв. м. / Продается Здание.

адрес Москва, Пожарский переулок 15с2

Особняк/здание

650 000 000 RUB | за все

(за 1 м2 — 2 272 727 RUB)

площадь 286.0 м2

QR код Qr код

Продаётся 2-х этажный особняк на первой линии Пожарского переулка д.15с2 в центре Москвы в 7 минутах пешком от метро Кропоткинская. Не является объектом культурного наследия. Земельный участок 202 кв.м.: пятно застройки + 0,5 метров по периметру в собственности. Отличная пешеходная и транспортная доступность. Внешняя и внутренняя отделка стен - исторический кирпич LOFT (ручная работа с использованием автоматических щеток). Здание расположено в окружении жилых домов, офисов и бизнес центров. Торговое окружение: Азбука Вкуса, бары и рестораны. В данный момент объект сдается под аренду ( шоу-рум).

Технические характеристики:
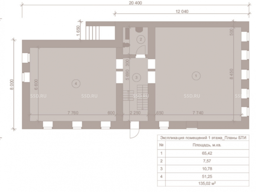
Общая площадь 286 кв.м. ( -1 этаж площадь 51 кв.м., высота потолков 3 м; 1-ый этаж площадь 135 кв.м., высота потолка 2,8 м; 2-ой этаж площадь 138 кв.м., высота потолка 3,2 м.) Электрическая мощность - 35 кВт. Возможна установка технологической вытяжки. 2 машиноместа во дворе. Центральные коммуникации: отопление, водоснабжение (холодная и горячая вода), канализация. На первом и втором этажах расположены санузлы. Интернет, телефония. Алюминиевые окна ALUMARK S70. Год постройки: 1917. Земля в собственности.
Земельный участок:
- разрешенное использование: для объектов общественно-делового значения.
- по документам: участки смешанного размещения общественно-деловых и производственных объектов ( 1.2.3/1.2.9/1.2.17).

Коммерческие условия:
Стоимость объекта – 650 000 000 рублей.
Стоимость за 1 кв. м. – 2 272 727 рублей.
Продажа по ДКП

Технические характеристики

Тип здания: Особняк/здание

Общая площадь: 286  м2

Этаж: 1

Всего этажей: 2

Электрическая мощность: 35

Высота потолков: 3.5

Парковка: Городская

Коммерческие условия

Цена за все: 650 000 000 RUB

ФОРМА ВЛАДЕНИЯ: Физ.лицо

карта

Расположение

Адрес: Москва, Пожарский переулок 15с2

Округ: Центральный административный округ

Близость метро: Кропоткинская

Транспортная доступность: в 7 минутах пешком от метро Кропоткинская.

Окружение

Торговое окружение: Азбука Вкуса, бары и рестораны.

Адрес:

Москва, Пожарский переулок 15с2

Округ:

Центральный административный округ

Близость метро:

Кропоткинская

Транспортная доступность:

в 7 минутах пешком от метро Кропоткинская.

карта

Торговое окружение:

Азбука Вкуса, бары и рестораны.

Общая площадь:

286  м2

Этаж:

1

Всего этажей:

2

Тип:

Особняк/здание

Электрическая мощность:

35

Высота потолков:

3.5

Парковка:

Городская

ФОРМА ВЛАДЕНИЯ:

Физ.лицо

Цена за все:

650 000 000 RUB

Планировка

Степанов Анатолий

Ваш брокер по работе с клиентами

Найдите лучшее место
для жизни, бизнеса, инвестиций

Оставьте свои контакты — с вами свяжется руководитель отдела для презентации нужного вам объекта

Похожие объекты