Id 160968

Москва, 6-й квартал, 12к2, ЖК Остров 54 м² / Аренда помещения свободного назначения

адрес Москва, 6-й квартал, 12к2

С отдельным входом
Торговая
Жилой комплекс (мфк)

425 000 RUB | в месяц

(за 1 м2 — 7 870 RUB)

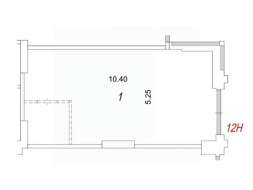
площадь 54.0 м2

QR код Qr код

Предлагается в аренду помещение свободного назначения на 1-м этаже жилого дома, в ЖК "Остров-2", квартал 6., по адресу: город Москва, СЗАО, район Хорошёво-Мнёвники, улица Нижние Мневники 12к2. Первая линия. Напротив станция метро "Терехово" - 50 метров, прямая видимость. Ввод эксплуатацию - сентябрь 2025 года. Ключи на руках.


Технические характеристики:
1-й этаж жилого дома. Общая площадь - 54 м². Отдельный вход с улицы. Витринное остекление. Высота потолком 3.5 м. Эл. мощность 20 кВт. Все центральные коммуникации. 2-х уровневый паркинг на 867 мм. Помещение правильной прямоугольной формы. Приточно-вытяжная система вентиляции. Помещение номер 012. Возможность размещения вывески.


Коммерческие условия:
Ставка аренды в месяц - 425 000 руб.
Ставка аренды за м² в месяц - 7 870 руб.
Ставка аренды за м² в год - 9 444 руб.
Ежегодная индексация 7% со второго года.
Коммунальные и эксплуатационные платежи оплачиваются отдельно.
Форма владения - ИП. УСН.

Технические характеристики

Тип здания: С отдельным входом,Торговая,Жилой комплекс (мфк)

Общая площадь: 54  м2

Этаж: 1

Всего этажей: 21

Электрическая мощность: 20 кВт.

Высота потолков: 3.5 м.

Парковка: Подземный паркинг.

Коммерческие условия

Цена в месяц: 425 000 RUB

ФОРМА ВЛАДЕНИЯ: ИП на УСН.

карта

Расположение

Адрес: Москва, 6-й квартал, 12к2

Округ: Северо-Западный административный округ

Близость метро: Терехово

Транспортная доступность: 50 метров от станции метро Терехово

Окружение

Торговое окружение: Аптека 36.6, напротив торговая галерея Острова

Адрес:

Москва, 6-й квартал, 12к2

Округ:

Северо-Западный административный округ

Близость метро:

Терехово

Транспортная доступность:

50 метров от станции метро Терехово

карта

Торговое окружение:

Аптека 36.6, напротив торговая галерея Острова

Общая площадь:

54  м2

Этаж:

1

Всего этажей:

21

Тип:

С отдельным входом,Торговая,Жилой комплекс (мфк)

Электрическая мощность:

20 кВт.

Высота потолков:

3.5 м.

Парковка:

Подземный паркинг.

ФОРМА ВЛАДЕНИЯ:

ИП на УСН.

Цена в месяц:

425 000 RUB

Планировка

Лев

Ваш брокер по работе с клиентами

Найдите лучшее место
для жизни, бизнеса, инвестиций

Оставьте свои контакты — с вами свяжется руководитель отдела для презентации нужного вам объекта

Похожие объекты