Id 160748

3-я Хорошёвская ул., 17А - 60 кв.м / Аренда ПСН / Торговая площадь / Общепит

адрес Москва, 3-я Хорошёвская улица, 17А

С отдельным входом
Торговая
Общепит
Новостройка

174 000 RUB | в месяц

(за 1 м2 — 2 900 RUB)

площадь 60.0 м2

QR код Qr код

Предлагается в аренду помещение свободного назначения, по адресу: 3-я Хорошевская ул., 17А.
Помещение расположено на 1 этаже элитного 20 этажного жилого дома в готовом корпусе в жилом комплексе бизнес-класса "Вереск".
В 10 мин. пешком от м. "Октябрьское поле" и шаговой доступности от МЦК "Зорге".
ЖК представляет собой 2 жилых корпуса высотой 20 этажей, 957 квартир. Есть плоскостной паркинг на 112 м/мест и подземный паркинг на 301 м/мест.

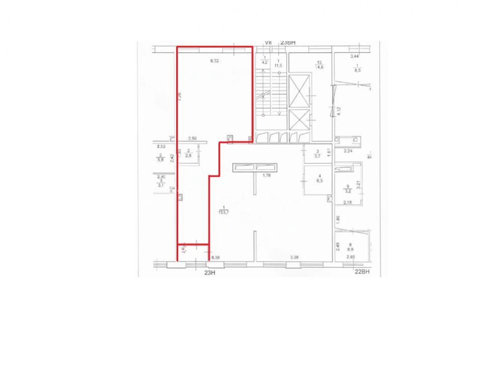
Технические характеристики: Площадь - 60 кв.м, 1-й этаж жилого дома. Несколько входных групп (со двора и с первой линии), высота потолков - 3,8 м, электрическая мощность - 20 кВт.
Витринное остекление, центральные коммуникации, возможность установки вытяжки, приточно‑вытяжная вентиляция.

Коммерческие условия:
Арендная ставка- 174 000 рублей
Ставка за кв.м/мес - 2 900 рублей
Льготный период, каникулы - обсуждаются. ДДА - возможен.
УСН.

Технические характеристики

Тип здания: С отдельным входом,Торговая,Общепит,Новостройка

Общая площадь: 60  м2

Этаж: 1

Всего этажей: 20

Электрическая мощность: 20 кВт

Высота потолков: 3,8 м

Парковка: плоскостной паркинг на 112 м/мест и подземный паркинг на 301 м/мест.

Коммерческие условия

Цена в месяц: 174 000 RUB

ФОРМА ВЛАДЕНИЯ: Частная

карта

Расположение

Адрес: Москва, 3-я Хорошёвская улица, 17А

Округ: Северо-Западный административный округ

Близость метро: Зорге,Народное Ополчение,Полежаевская,Хорошёво

Транспортная доступность: В 10 мин. пешком от м. Октябрьское поле и шаговой доступности от МЦК Зорге.

Окружение

Торговое окружение: Развитое торговое окружение

Адрес:

Москва, 3-я Хорошёвская улица, 17А

Округ:

Северо-Западный административный округ

Близость метро:

Зорге,Народное Ополчение,Полежаевская,Хорошёво

Транспортная доступность:

В 10 мин. пешком от м. Октябрьское поле и шаговой доступности от МЦК Зорге.

карта

Торговое окружение:

Развитое торговое окружение

Общая площадь:

60  м2

Этаж:

1

Всего этажей:

20

Тип:

С отдельным входом,Торговая,Общепит,Новостройка

Электрическая мощность:

20 кВт

Высота потолков:

3,8 м

Парковка:

плоскостной паркинг на 112 м/мест и подземный паркинг на 301 м/мест.

ФОРМА ВЛАДЕНИЯ:

Частная

Цена в месяц:

174 000 RUB

Планировка

Наталья

Ваш брокер по работе с клиентами

Найдите лучшее место
для жизни, бизнеса, инвестиций

Оставьте свои контакты — с вами свяжется руководитель отдела для презентации нужного вам объекта

Похожие объекты