Id 160485

г. Москва, НАО, п-кт Куприна, 3к6 (ЖК Скандинавия корпус 36.2.2) - 363.3 м² / Аренда ПСН

адрес проспект Куприна, 3к6

Торговая

1 345 000 RUB | за все

(за 1 м2 — 3 702 RUB)

площадь 363.3 м2

QR код Qr код

Аренда помещения свободного назначения в стилобатной части монолитного 16и этажного жилого дома 2025 года постойки по адресу: г. Москва, НАО, п-кт Куприна, 3к6 (ЖК Скандинавия корпус 36.2.2)
Жилой Комплекс «Скандинавия» в Новой Москве - это 79 корпусов от 7 до 17 этажей.
Первое жилые площади сдали в 2020 году, а последние строят рядом со станцией метро «Потапово». Население порядка 70 тыс. жителей.
На юге комплекса ГК «А101» создаёт район бизнес-класса – со своей инфраструктурой, пешеходными пространствами и точками притяжения.
Дом сдан в 2025 году.

Транспортная доступность:
5 минут пешим ходом до станции метро «Потапово»
2 км – станция метро «Коммунарка»
2,5 км – станция метро «Бачуринская»
1,7 км – станция метро «Бунинская аллея»
6,4 км до МКАД
Удобный выезд на трассу СБВ (Солнцево – Бутово – Варшавское шоссе)

Технические характеристики:
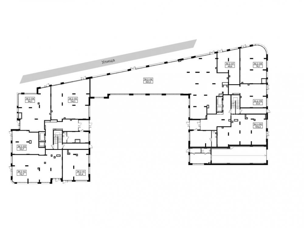
1 этаж 16-ти этажного жилого дома, общей площадью 363.3 м², высота потолков 4,38 - 4.7 - 5.05м, электрическая мощность 91.5 кВт, Две отдельные входные группы, витринное остекление, параметры верниляции: 450x350, 160 диаметр. Нагрузка на пол 600 кг/м².

Коммерческие условия:
Стоимость аренды в месяц: 1 345 000 ₽
Стоимость аренды за м²/мес.: 3 702₽
Арендные каникулы обсуждаются.

Технические характеристики

Тип здания: Торговая

Общая площадь: 363.3  м2

Этаж: 1

Всего этажей: 16

Электрическая мощность: 91.5 кВт

Высота потолков: 4.3-4.5-5.05м

Парковка: бесплатная

Коммерческие условия

Цена за все: 1 345 000 RUB

ФОРМА ВЛАДЕНИЯ: Собственность

карта

Расположение

Адрес: проспект Куприна, 3к6

Близость метро: Новомосковская,Потапово

Транспортная доступность: 5 минут пешим ходом до станции метро «Потапово» 2 км – станция метро «Коммунарка»

Окружение

Торговое окружение: --

Адрес:

проспект Куприна, 3к6

Округ:

Близость метро:

Новомосковская,Потапово

Транспортная доступность:

5 минут пешим ходом до станции метро «Потапово» 2 км – станция метро «Коммунарка»

карта

Торговое окружение:

--

Общая площадь:

363.3  м2

Этаж:

1

Всего этажей:

16

Тип:

Торговая

Электрическая мощность:

91.5 кВт

Высота потолков:

4.3-4.5-5.05м

Парковка:

бесплатная

ФОРМА ВЛАДЕНИЯ:

Собственность

Цена за все:

1 345 000 RUB

Планировка

Никифоров Андрей

Ваш брокер по работе с клиентами

Найдите лучшее место
для жизни, бизнеса, инвестиций

Оставьте свои контакты — с вами свяжется руководитель отдела для презентации нужного вам объекта

Похожие объекты