Id 160481

Москва, ЗАО, р-н Раменки, Мичуринский просп., 3 / Продажа / Помещение свободного назначения / 332.3 кв.м.

адрес Москва, Мичуринский проспект, 3

Многофункциональный
С отдельным входом
Торговая
Проект

199 000 000 RUB | за все

(за 1 м2 — 598 856 RUB)

площадь 332.3 м2

QR код Qr код

Предлагается к продаже эксклюзивное нежилое помещение в одном из самых престижных районов Москвы — Раменках. Объект расположен в премиальном ЖК Шуваловский по адресу: Мичуринский проспект, д. 3.

У локации высокая проходимость, есть парковка, подъезд, до ближайшей станции Ломоносовский проспект 50 м — около минуты пешком, вывеску видно от выхода из метро. Окна помещения выходят на пешеходную аллею и прогулочные зоны с активным потоком как жителей жилого комплекса, так и идущих от метро людей.

Характеристики объекта:
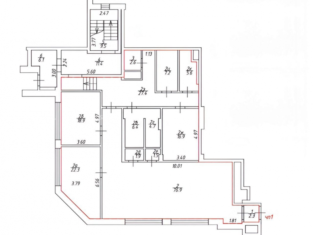
Общая площадь: 332,3 м².
2 помещения (1 этаж — 221,4 м² и антресоль — 110,9 м²).
Электрическая мощность 127 кВт
Все центральные коммуникации в отличном состоянии.
Большие витринные окна и качественный ремонт внутренних помещений.

Коммерческие условия:
Стоимость: 199 000 000 рублей.
Стоимость за кв.м: 598 857 рублей.

Технические характеристики

Тип здания: Многофункциональный,С отдельным входом,Торговая,Проект

Общая площадь: 332.3  м2

Этаж: 1

Всего этажей: 24

Электрическая мощность: 127 кВт.

Высота потолков: 2.9 м.

Парковка: Есть.

Коммерческие условия

Цена за все: 199 000 000 RUB

ФОРМА ВЛАДЕНИЯ: Физ. лицо

карта

Расположение

Адрес: Москва, Мичуринский проспект, 3

Округ: Юго-Западный административный округ

Близость метро: Ломоносовский проспект,Профсоюзная,Университет

Транспортная доступность: Метро 1 минута.

Окружение

Торговое окружение: Большое.

Адрес:

Москва, Мичуринский проспект, 3

Округ:

Юго-Западный административный округ

Близость метро:

Ломоносовский проспект,Профсоюзная,Университет

Транспортная доступность:

Метро 1 минута.

карта

Торговое окружение:

Большое.

Общая площадь:

332.3  м2

Этаж:

1

Всего этажей:

24

Тип:

Многофункциональный,С отдельным входом,Торговая,Проект

Электрическая мощность:

127 кВт.

Высота потолков:

2.9 м.

Парковка:

Есть.

ФОРМА ВЛАДЕНИЯ:

Физ. лицо

Цена за все:

199 000 000 RUB

Планировка

Павел

Ваш брокер по работе с клиентами

Найдите лучшее место
для жизни, бизнеса, инвестиций

Оставьте свои контакты — с вами свяжется руководитель отдела для презентации нужного вам объекта

Похожие объекты