Id 160411

Москва, НАО, р-н Щербинка, ЖК Алхимово, Алхимовская улица, 1к6 / 108 кв.м. / Аренда ПСН

адрес Алхимовская улица, 1к6

Многофункциональный
С отдельным входом
Торговая

270 000 RUB | в месяц

(за 1 м2 — 2 500 RUB)

площадь 108.0 м2

QR код Qr код

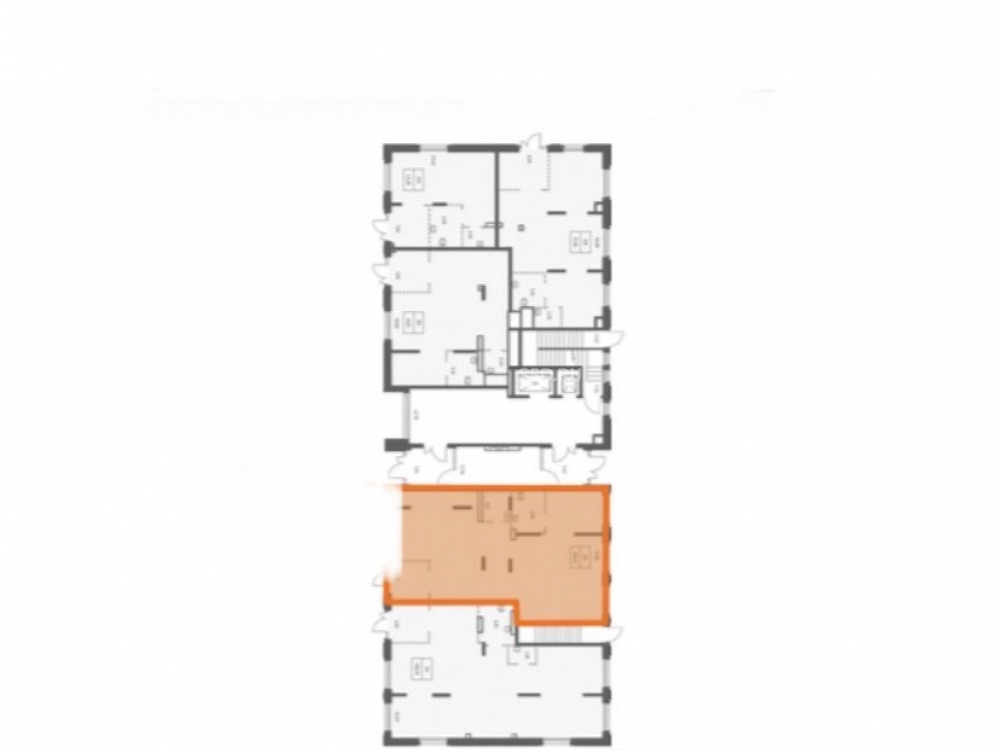
Предлагается в аренду помещение свободного назначения в ЖК Алхимово. Объект расположен по адресу: Москва, НАО, р-н Щербинка, ЖК Алхимово, Алхимовская улица, 1к6. Угловое помещение правильной прямоугольной формы, расположено на трафике. Данный ЖК находится в 16 кв от МКАД по Варшавскому шоссе. До станции МЦД-2 Силикатная можно добраться за 20 минут пешком или за 4 минуты на автомобиле.
ЖК Aлxимoво, заключительная oчередь стpoительствa, пeрвыe 8 кoрпуcoв ЖК ужe зaселены, в пepвой половинe 2025 годa сдаются и заceляются ещe 3 коpпуcа. Вcего в ЖК 16 корпусов, 5800 квартир, более 15 000 жителей. Все корпуса передаются жителям с уже готовой отделкой квартир.


Технические характеристики:
1-ый этаж 13-ти этажного жилого дома. Помещение площадью - 108 кв.м, отдельный вход с улицы. Высота потолков - 4 м, электрическая мощность по запросу. Центральные коммуникации. Витринное остекление, размещение рекламной вывески на фасаде.

Коммерческие условия:
Стоимость аренды: 270 000 рублей в месяц.
Стоимость аренды за 1 кв.м.: 2 500 в месяц.
Готовы к выдачи ключей.

Технические характеристики

Тип здания: Многофункциональный,С отдельным входом,Торговая

Общая площадь: 108  м2

Этаж: 1

Всего этажей: 12

Электрическая мощность: -

Высота потолков: 4

Парковка: У входа

Коммерческие условия

Цена в месяц: 270 000 RUB

ФОРМА ВЛАДЕНИЯ: ИП

карта

Расположение

Адрес: Алхимовская улица, 1к6

Близость метро: Силикатная

Транспортная доступность: До станции МЦД-2 Силикатная можно добраться за 20 минут пешком или за 4 минуты на автомобиле.

Окружение

Торговое окружение: рядом в соседнем помещении будет супер маркет Магнит

Адрес:

Алхимовская улица, 1к6

Округ:

Близость метро:

Силикатная

Транспортная доступность:

До станции МЦД-2 Силикатная можно добраться за 20 минут пешком или за 4 минуты на автомобиле.

карта

Торговое окружение:

рядом в соседнем помещении будет супер маркет Магнит

Общая площадь:

108  м2

Этаж:

1

Всего этажей:

12

Тип:

Многофункциональный,С отдельным входом,Торговая

Электрическая мощность:

-

Высота потолков:

4

Парковка:

У входа

ФОРМА ВЛАДЕНИЯ:

ИП

Цена в месяц:

270 000 RUB

Планировка

Степанов Анатолий

Ваш брокер по работе с клиентами

Найдите лучшее место
для жизни, бизнеса, инвестиций

Оставьте свои контакты — с вами свяжется руководитель отдела для презентации нужного вам объекта

Похожие объекты