Id 160065

р. п. Томилино, Птицефабрика, д. 35к1 - 105 кв. м. - Продажа Торгового помещения / 1 этаж

адрес р. п. Томилино, Птицефабрика, д. 35к1

С отдельным входом
Торговая
Общепит
Жилой комплекс (мфк)
Новостройка
Медицина

199 500 RUB | за все

(за 1 м2 — 1 900 RUB)

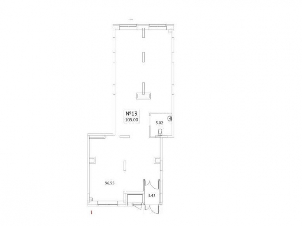
площадь 105.0 м2

QR код Qr код

Предлагается в аренду помещение в ЖК «Новотомилино» по адресу: г. Люберцы, р. п. Томилино, Птицефабрика, д. 35к1. Ближайшие станции метро: Котельники – 25 мин. транспортом. Первая линия Рязанского шоссе. ЖК «Новотомилино» - комплексная жилая застройка из четырех многоэтажных жилых домов переменной этажности (до 17 этажей). Более 2 200 квартир. Жилой комплекс со стильной архитектурой, современными общественными пространствами, расположен в районе с развитой инфраструктурой. Объект находится на пересечении Егорьевского и Рязанского шоссе. Вокруг жилого комплекса расположен густонаселенный фонд, в котором отсутствуют коммерческие помещения. Интенсивный автомобильный и пешеходный трафик. Рядом остановки общественного транспорта.

Торговое окружение:
Рядом расположены супермаркет Дикси, Пятерочка, пекарня Буханка, аптека Здравсити, строительный магазин, магазин алкогольной продукции Винлаб, кафе быстрого питания Бургер Кинг, магазин пива Пенки & Гренки, магазин кулинарии Милти, зоомагазин Четыре Лапы, магазин парфюмерии и косметики Улыбка Радуги, магазин продуктов ВкусВилл, химчистка Леда, барбершоп, кондитерская Фантик, магазин сухофруктов.

Технические характеристики
Помещение общей площадью – 105 кв. м., 1 этаж. Отдельный вход. Высота потолков – 3,2 м. Электрическая мощность – 21 кВт. Большая парковочная зона.

Коммерческие условия:
Стоимость объекта в аренду – 199 500 рублей.
Стоимость аренды за 1 кв. м. – 1 900 рублей.

Технические характеристики

Тип здания: С отдельным входом,Торговая,Общепит,Жилой комплекс (мфк),Новостройка,Медицина

Общая площадь: 105  м2

Этаж: 1

Всего этажей: 17

Электрическая мощность: 21

Высота потолков: 3

Парковка: Стихийная

Коммерческие условия

Цена за все: 199 500 RUB

ФОРМА ВЛАДЕНИЯ: Физическое лицо.

карта

Расположение

Адрес: р. п. Томилино, Птицефабрика, д. 35к1

Близость метро: Котельники

Транспортная доступность: 20 мин. транспортом м. Котельники

Окружение

Торговое окружение: супермаркет Дикси, Пятерочка, пекарня Буханка, аптека Здравсити

Адрес:

р. п. Томилино, Птицефабрика, д. 35к1

Округ:

Близость метро:

Котельники

Транспортная доступность:

20 мин. транспортом м. Котельники

карта

Торговое окружение:

супермаркет Дикси, Пятерочка, пекарня Буханка, аптека Здравсити

Общая площадь:

105  м2

Этаж:

1

Всего этажей:

17

Тип:

С отдельным входом,Торговая,Общепит,Жилой комплекс (мфк),Новостройка,Медицина

Электрическая мощность:

21

Высота потолков:

3

Парковка:

Стихийная

ФОРМА ВЛАДЕНИЯ:

Физическое лицо.

Цена за все:

199 500 RUB

Планировка

Орлов Иван

Ваш брокер по работе с клиентами

Найдите лучшее место
для жизни, бизнеса, инвестиций

Оставьте свои контакты — с вами свяжется руководитель отдела для презентации нужного вам объекта

Похожие объекты