Id 160019

Солянка ул., 1/2с1 - 220 кв.м. / Аренда/ Помещение свободного назначения/ Общепит

адрес Москва, Солянка ул., 1/2с1

С отдельным входом
Торговая
Общепит

1 400 000 RUB | в месяц

(за 1 м2 — 6 364 RUB)

площадь 220.0 м2

QR код Qr код

Предлагается в аренду помещение свободного назначения, находящееся на первом этаже бизнес центра Соляной Двор, расположенного на первой линии домов улицы Солянка в центральном округе г. Москвы, в шаговой доступности от станции метро Китай-город. Высокий пешеходный трафик, отличная визуализация объекта, высокий рекламный потенциал.

Технические характеристики:
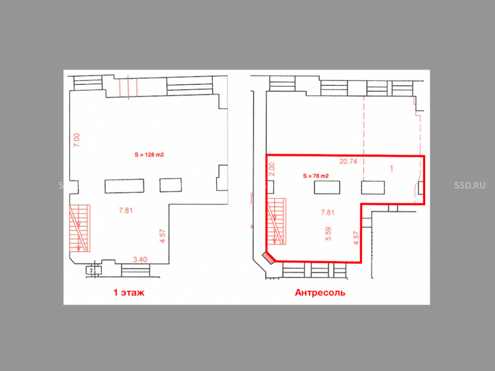
-Размещается на двух уровнях: первый этаж - 145 м² и антресоль, общей площадью 75 м².
- Имеет отдельный вход со стороны улицы Солянка,
- зона разгрузки осуществляется с внутреннего двора, заезд с улицы Забелена.
- Высокие витринные окна и стены из исторического красного кирпича.
- Арендные каникулы 3 месяца, срoк аpенды - oт 7 лет.
- Коммунальные, эксплуатационные расходы оплачиваются отдельно.

Рядом находятся административные здания, бизнес-центры, заведения общепита: Black Swan pub&shop, Грабли, Пицца 22 см, Zotman pizza, Экспромт, Bambule, Surf Coffee, Хлеб насущный, JohnCalliano Lounge, Silencio, Винная Глубина, Хачапури и Вино, Тайная Комната, Соль, Botafogo, Zindan, Party Hard, Буше, RockStar Dogs.

Коммерческие условия:
Ставка аренды – 1 400 000 рублей в месяц
Ставка аренды за 1 кв.м в месяц – 6 364 рублей;
Ставка аренды в год – 76 364 рублей;
Коммунальные платежи по факту потребления.
Каникулы до 6 месяцев.
НДС 22%

Технические характеристики

Тип здания: С отдельным входом,Торговая,Общепит

Общая площадь: 220  м2

Этаж: 1

Всего этажей: 6

Электрическая мощность: 70 кВт (Возможно увеличение)

Высота потолков: от3-6 м.

Парковка: да / на улице

Коммерческие условия

Цена в месяц: 1 400 000 RUB

ФОРМА ВЛАДЕНИЯ: ООО НДС

карта

Расположение

Адрес: Москва, Солянка ул., 1/2с1

Округ: Центральный административный округ

Близость метро: Китай-город

Транспортная доступность: 1 минута от станции метро

Окружение

Торговое окружение: Рядом находятся административные здания, бизнес-центры, заведения общепита: Black Swan pub&shop, Грабли, Пицца 22 см, Zotman pizza, Экспромт, Bambule, Surf Coffee, Хлеб насущный, JohnCalliano Lounge, Silencio, Винная Глубина, Хачапури и Вино, Тайная Комната, Соль, Botafogo, Zindan, Party Hard, Буше, RockStar Dogs.

Адрес:

Москва, Солянка ул., 1/2с1

Округ:

Центральный административный округ

Близость метро:

Китай-город

Транспортная доступность:

1 минута от станции метро

карта

Торговое окружение:

Рядом находятся административные здания, бизнес-центры, заведения общепита: Black Swan pub&shop, Грабли, Пицца 22 см, Zotman pizza, Экспромт, Bambule, Surf Coffee, Хлеб насущный, JohnCalliano Lounge, Silencio, Винная Глубина, Хачапури и Вино, Тайная Комната, Соль, Botafogo, Zindan, Party Hard, Буше, RockStar Dogs.

Общая площадь:

220  м2

Этаж:

1

Всего этажей:

6

Тип:

С отдельным входом,Торговая,Общепит

Электрическая мощность:

70 кВт (Возможно увеличение)

Высота потолков:

от3-6 м.

Парковка:

да / на улице

ФОРМА ВЛАДЕНИЯ:

ООО НДС

Цена в месяц:

1 400 000 RUB

Планировка

Инна Васильева

Ваш брокер по работе с клиентами

Найдите лучшее место
для жизни, бизнеса, инвестиций

Оставьте свои контакты — с вами свяжется руководитель отдела для презентации нужного вам объекта

Похожие объекты