Id 159912

Кавказский бульвар, 51к2 - 67.2 кв. м. - Продажа / ПСН

адрес Москва, Кавказский бульвар, 51к2

Многофункциональный
С отдельным входом
Торговая
Общепит

30 000 000 RUB | за все

(за 1 м2 — 446 429 RUB)

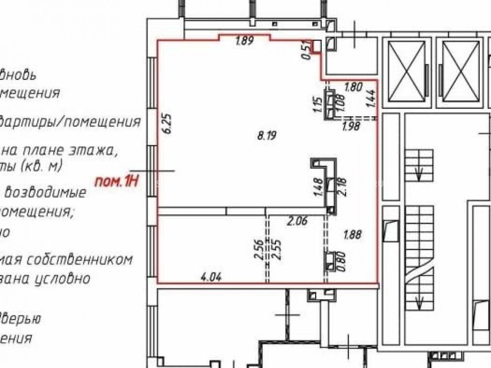
площадь 67.2 м2

QR код Qr код

Продажа помещения свободного назначения от собственника в районе Царицыно (ЮАО).
Адрес: г. Москва, Кавказский бульвар, 51к2. Первая линия. Плотная жилая застройка вокруг. Ближайшие станции метро: Кантемировская (17 мин. пешком), Царицыно (4 мин. на транспорте). Высокий пешеходный трафик обеспечивается близостью остановок и жилых домов.

Технические характеристики:
Площадь: 67.2 м². Просторное помещение с высокими потолками (3.2 м).
Отдельный вход с улицы, возможность размещения яркой вывески.
2 больших витринных окна.
Электрическая мощность: 13,5 кВт (с возможностью увеличения), центральное водоснабжение (ХВС и ГВС), канализация. Есть возможность оборудовать вытяжку (подходит для общепита).
Состояние: Бетон. Помещение требует ремонта.

Идеально подойдет под аптеку, продуктовый магазин, стоматологию, офис или пункт выдачи заказов.

Коммерческие условия:
Стоимость объекта: 30 000 000 рублей (НДС не включен).
Стоимость за 1 кв. м.: 442 000 рублей.
Форма продажи: Договор купли-продажи (ДКП).

Технические характеристики

Тип здания: Многофункциональный,С отдельным входом,Торговая,Общепит

Общая площадь: 67.2  м2

Этаж: 1

Всего этажей: 33

Электрическая мощность: 13.5 кВт с возможностью увеличения

Высота потолков: 3.2 м

Парковка: наземная

Коммерческие условия

Цена за все: 30 000 000 RUB

ФОРМА ВЛАДЕНИЯ: собственность

карта

Расположение

Адрес: Москва, Кавказский бульвар, 51к2

Округ: Южный административный округ

Близость метро: Кантемировская,Царицыно

Транспортная доступность: в пешей доступности (17 минут1 км)

Окружение

Торговое окружение: развитая инфраструктура района

Адрес:

Москва, Кавказский бульвар, 51к2

Округ:

Южный административный округ

Близость метро:

Кантемировская,Царицыно

Транспортная доступность:

в пешей доступности (17 минут1 км)

карта

Торговое окружение:

развитая инфраструктура района

Общая площадь:

67.2  м2

Этаж:

1

Всего этажей:

33

Тип:

Многофункциональный,С отдельным входом,Торговая,Общепит

Электрическая мощность:

13.5 кВт с возможностью увеличения

Высота потолков:

3.2 м

Парковка:

наземная

ФОРМА ВЛАДЕНИЯ:

собственность

Цена за все:

30 000 000 RUB

Планировка

Виталий

Ваш брокер по работе с клиентами

Найдите лучшее место
для жизни, бизнеса, инвестиций

Оставьте свои контакты — с вами свяжется руководитель отдела для презентации нужного вам объекта

Похожие объекты