Id 159439

Бульвар Эйнштейна 3- 30кв.м / Аренда торгового помещения

адрес посёлок городского типа Новоивановское, бульвар Эйнштейна, 3

Торговая

135 000 RUB | в месяц

(за 1 м2 — 4 500 RUB)

площадь 30.0 м2

QR код Qr код

Сдается нежилое помещение свободного назначения в ЖК "Инновация" по адресу: Одинцовский городской округ, ул. бульвар Эйнштейна 3, площадью 30.5 кв.м. Помещение расположено в центре жилого массива ,население составляет более 20 тыс. жителей. ЖК полностью заселён

Торговое окружение: Пятерочка , аптека, Ароматный мир,4Hands,Яндекс маркет и др.

Технические характеристики:
Первый этаж 20 - ти этажного жилого дома, общей площадью 30.5 м2. Высота потолков 3.3 м. Окна по фасаду.
Электрическая мощность 10 кВт . Парковка перед объектом, размещение вывески на фасаде. Высокий рекламный потенциал.


Коммерческие условия:
Общая площадь: 30.5 кв.м .;
Месячная арендная ставка: 135 000 рублей;
Арендная ставка за 1 кв.м. в месяц: 4 426 рублей;
Страховой депозит 1 месяц;

Технические характеристики

Тип здания: Торговая

Общая площадь: 30  м2

Этаж: 1

Всего этажей: 20

Электрическая мощность: 10 кВт

Высота потолков: 3.3 м

Парковка: У помещения

Коммерческие условия

Цена в месяц: 135 000 RUB

ФОРМА ВЛАДЕНИЯ: Собственность

карта

Расположение

Адрес: посёлок городского типа Новоивановское, бульвар Эйнштейна, 3

Округ: Западный административный округ

Близость метро: Говорово,Озёрная,Сколково

Транспортная доступность: Сколково

Окружение

Торговое окружение: Пятерочка, Ароматный мир,4Hands,Яндекс маркет и др.

Адрес:

посёлок городского типа Новоивановское, бульвар Эйнштейна, 3

Округ:

Западный административный округ

Близость метро:

Говорово,Озёрная,Сколково

Транспортная доступность:

Сколково

карта

Торговое окружение:

Пятерочка, Ароматный мир,4Hands,Яндекс маркет и др.

Общая площадь:

30  м2

Этаж:

1

Всего этажей:

20

Тип:

Торговая

Электрическая мощность:

10 кВт

Высота потолков:

3.3 м

Парковка:

У помещения

ФОРМА ВЛАДЕНИЯ:

Собственность

Цена в месяц:

135 000 RUB

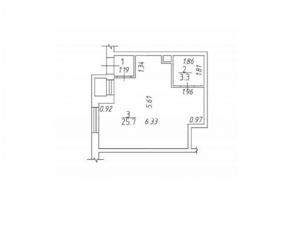
Планировка

Гринь Алексей

Ваш брокер по работе с клиентами

Найдите лучшее место
для жизни, бизнеса, инвестиций

Оставьте свои контакты — с вами свяжется руководитель отдела для презентации нужного вам объекта

Похожие объекты