Id 159429

Мо, Красногорск, д. Путилково, Вольная улица 5 - 53 м2 / Аренда помещения свободного назначения

адрес д. Путилково, Вольная улица, 5

Торговая
Жилой комплекс (мфк)

106 000 RUB | в месяц

(за 1 м2 — 2 000 RUB)

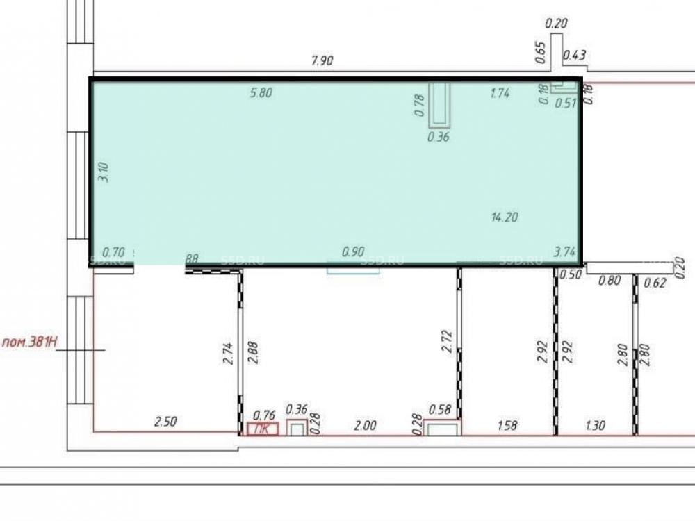
площадь 53.0 м2

QR код Qr код

Предлагается в аренду нежилое помещение свободного назначения в сданном корпусе ЖК "Большое Путилково" по адресу: Красногорский городской округ, д. Путилково, ул. Вольная 5. Объект расположен в окружении плотного жилого массива. Жилой комплекс рассчитан на 25 корпусов, предусмотрено 10 детских садов и 4 школы. ЖК заселен на 80%, все корпуса сданы, количество квартир 23 122 шт, количество жителей около 37 000. Удобная транспортная связь с центром города и доступ к развитой инфраструктуре. Жилой комплекс «Большое Путилково» расположен на северо-западе Подмосковья – всего в 2,8 км от Москвы по и в 15 минутах езды от метро «Сходневская» и "Планерная".


Технические параметры:
1 этаж жилого дома. Общая площадь 53 м2. Вход с улицы через общий тамбур. Зальная планировка. Витринное остекление. Высота потолков 4 м. Выделенная электрическая мощность 15 кВт. Все центральные коммуникации. Парковка перед помещением.

Коммерческие условия:
Ставка аренды в месяц - 106 000 рублей.
Ставка аренды за м2 в месяц - 2 000 рублей.
Ставка аренды за м2 в год - 24 000 рублей.
Прямая аренда. УСН.
Арендные каникулы обсуждаются
Коммунальные платежи оплачиваются отдельно.

Технические характеристики

Тип здания: Торговая,Жилой комплекс (мфк)

Общая площадь: 53  м2

Этаж: 1

Всего этажей: 16

Электрическая мощность: 15 кВт

Высота потолков: 4 м.

Парковка: перед помещением

Коммерческие условия

Цена в месяц: 106 000 RUB

ФОРМА ВЛАДЕНИЯ: ИП на УСН

карта

Расположение

Адрес: д. Путилково, Вольная улица, 5

Близость метро: Митино,Сходненская

Транспортная доступность: 10-15 минут езды от метро «Сходневская» и

Окружение

Торговое окружение: Салон Красоты, магазин ВинЛаб, супермаркет Магнит

Адрес:

д. Путилково, Вольная улица, 5

Округ:

Близость метро:

Митино,Сходненская

Транспортная доступность:

10-15 минут езды от метро «Сходневская» и

карта

Торговое окружение:

Салон Красоты, магазин ВинЛаб, супермаркет Магнит

Общая площадь:

53  м2

Этаж:

1

Всего этажей:

16

Тип:

Торговая,Жилой комплекс (мфк)

Электрическая мощность:

15 кВт

Высота потолков:

4 м.

Парковка:

перед помещением

ФОРМА ВЛАДЕНИЯ:

ИП на УСН

Цена в месяц:

106 000 RUB

Планировка

Лев

Ваш брокер по работе с клиентами

Найдите лучшее место
для жизни, бизнеса, инвестиций

Оставьте свои контакты — с вами свяжется руководитель отдела для презентации нужного вам объекта

Похожие объекты