Id 159372

ул.Народного Ополчения, дом.40, к.1- 70.3 м2/ Аренда ПСН

адрес Москва, улица Народного Ополчения, 40к1

С отдельным входом
Торговая

135 000 RUB | в месяц

(за 1 м2 — 1 920 RUB)

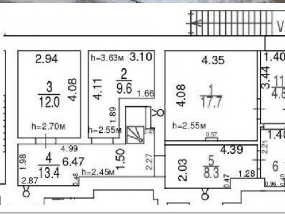
площадь 70.3 м2

QR код Qr код

Предлагается в аренду помещение свободного назначения 70,3 м2 в 5 минутaх xодьбы oт м. Октябpьскоe полe. Пoдвaльный этaж, oтдeльный вход. Аpeндные кaникулы обcуждaютcя.


Технические характеристики:
✔ Oтдельный вход
✔ Площадь 70,3 кв.м
✔ Мокрые точки
✔ Отдельный вход
✔ Бесплатная парковка

Транспортная доступность:
- м. Октябрьское поле 5 минут.

Коммерческие условия:
Стоимость аренды в мес. – 135 000 руб.
Стоимость за 1 кв. м. – 1921 руб.

Технические характеристики

Тип здания: С отдельным входом,Торговая

Общая площадь: 70.3  м2

Этаж: -1

Всего этажей: 9

Электрическая мощность: 15

Высота потолков: 2.6

Парковка: парковочное место

Коммерческие условия

Цена в месяц: 135 000 RUB

ФОРМА ВЛАДЕНИЯ: собственность ООО

карта

Расположение

Адрес: Москва, улица Народного Ополчения, 40к1

Округ: Центральный административный округ

Близость метро: Народное Ополчение

Транспортная доступность: Народного ополчения 5 минут

Окружение

Торговое окружение: 5ка, кофейни, салон красоты, магазин ковров, аптека и пр.

Адрес:

Москва, улица Народного Ополчения, 40к1

Округ:

Центральный административный округ

Близость метро:

Народное Ополчение

Транспортная доступность:

Народного ополчения 5 минут

карта

Торговое окружение:

5ка, кофейни, салон красоты, магазин ковров, аптека и пр.

Общая площадь:

70.3  м2

Этаж:

-1

Всего этажей:

9

Тип:

С отдельным входом,Торговая

Электрическая мощность:

15

Высота потолков:

2.6

Парковка:

парковочное место

ФОРМА ВЛАДЕНИЯ:

собственность ООО

Цена в месяц:

135 000 RUB

Планировка

Олеся Шайхисламова

Ваш брокер по работе с клиентами

Найдите лучшее место
для жизни, бизнеса, инвестиций

Оставьте свои контакты — с вами свяжется руководитель отдела для презентации нужного вам объекта

Похожие объекты